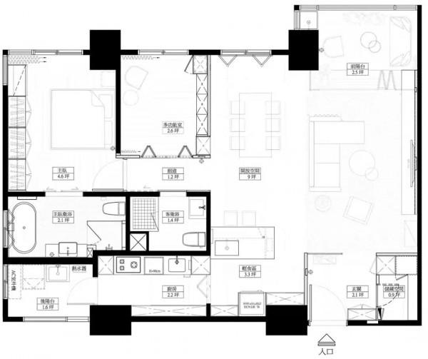
這是裝修平面圖
考慮到居住人數只有1人,只保留了一間臥室功能,剩餘一間打造成多功能房。除了餐廳之外,還加入了中島臺設計,提升居家情調感。此外,還擁有寬敞休憩的大陽臺,養花種草親近自然。
玄關設計
步入玄關,就給人驚豔之感。入戶正對面採用格狀玻璃鐵件屏風隔斷,提高客廳私密又不影響空間通透效果。條凳搭配花器、石塊、壁燈和手工花藝裝飾,構築玄關端景。
玄關地面鋪陳仿水泥石英磚,並沿著牆面結構打造L型儲物空間,深色木質與淺色竹編交錯,別有一番既視感。
客廳設計
由地面材質的變換,實現空間的過渡。客廳以木地板裝飾,人字拼接,擺脫了常見的橫平豎直,多了幾分活潑。客廳帶有個性的復古混搭,棕色皮質提升空間溫度,石紋檯面的茶几和邊幾,金屬桌腳和玫瑰金支架,帶來輕奢氣質。
電視牆以水泥灰打造,為了整體效果和降低視覺干擾,簡化了牆面複雜程度,呈現簡約素雅的氣質。
陽臺設計
寬敞休閒的陽臺空間,輕鬆愜意讓人很是羨慕。接續了電視牆的材質,輔助綠植規劃牆面,搭配藤編椅子和桌几,變成居家休閒好去處。遠眺窗外山景,日光灑落在身上,感受生活的閒適。
陽臺採用玻璃摺疊門設計,給予了更寬鬆的空間感。摺疊門開合之間,對於客廳採光效果影響並不是很大。
餐廳設計
客餐廳開放式格局,沒有明顯的隔斷設計,利用地面材質和橫樑,作為空間分割槽界定的元素。簡易的木紋桌椅,不僅滿足了日常用餐和家庭聚會需求,還方便屋主在家進行花藝創造。背景牆以灰藍色著手空間溫度感,同時也可以成為花藝拍攝背景。
廚房設計
與餐桌齊平視角,推出一道深色島臺,作為西廚房空間,仿鑄鐵金屬檯面,搭配深色層架與吊燈,串接復古韻味。島臺以磁性黑板牆作為背景裝飾,可塗鴉、可吸附照片等,是個不錯的選擇。
中式廚房,利用長虹玻璃門隔斷,阻隔油煙,增加空間通透性。廚房採用雙排設計,左右兩側均規劃了上下儲物櫃,以保證廚房儲物空間的充足。為了更好地收納廚房器具,右側加入了洞洞板設計,讓物件收歸於前面保持檯面整潔,也有利於日常使用便利。
多功能房設計
多功能房設計,透過摺疊門設計,保持開闊通透的空間感。目前只設計了落地層櫃,留有足夠的空間,為後期佈置提供更彈性的空間。
臥室設計
臥室採用灰綠色為床頭背景,搭配花藝和造型別致的床頭櫃,帶來精緻愜意的溫馨感。床位打造木質衣櫃,無門把手設計,平面整潔光滑,加上半掩梳妝檯設計,定格成臥室端景。
衛生間設計
衛生間整潔有序,雖然同處一個空間,但功能分割槽明確。整體採用深灰石紋磚搭配仿石紋石英磚,整潔明亮又營造色階層次。
懸掛式浴室櫃,搭配長型銀邊浴室鏡,作為淋浴和浴缸的分割槽,讓空間從容不迫。拋開淋浴區,剩餘的空間採用分層設計,整體效果還是不錯的。
以上就是我們天津裝修這期分享的案例,108㎡文藝復古,驚豔由玄關開始。每個裝飾品和燈具的選擇,不僅考量了空間體量,還有屋主的喜愛之美,再結合空間色彩運用,讓空間處處皆有柔情詩意~#天津裝修隊##天津家居裝飾##裝修案例#

















 
			 
			 
			 
			 
			 
			 
			 
			 
			 
			 
			 
			 
			 
			 
			 
			 
			