座標四川成都,這是一套330㎡的別墅。
裝修時,女主還帶著倆娃,算是不折不扣的寶媽。
本以為這樣的狀態,會因為精力分散,裝出一個普普通通的效果。
但沒有想到的是,儘管中間出了岔子,即裝修裝到一半,發現不是自己想要的,遂決定推翻,再找人從頭開始,還能把家裝修得復古優雅,難怪一進屋就令人心動不已,真的太美了!不信我們一起來看看這四口之家的幸福生活吧。
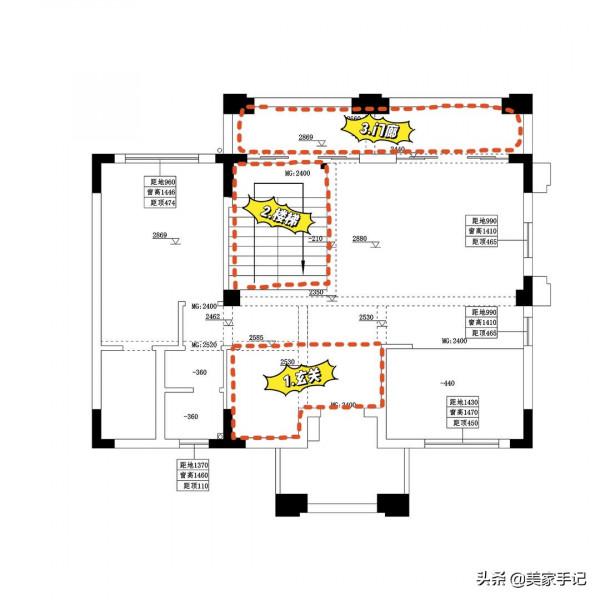
平面圖
存在問題有,門廳空間大而不當,雖然差不多有7.5㎡,但是整個格局是敞開著的,而且正對著,客餐廳這樣的起居室,如此毫無隱私可言。
另外就是樓梯居中,且體量相對較大,會造成底部和側面的空間被浪費。
第三是對面的門廊空間,類似普通平層的陽臺,長7.9米,寬1.3米,按理來說應該採光視野絕佳,但由於介於起居室和花園之間,不僅沒有任何銜接,顯得突兀,反而讓空間也變得昏暗起來。
一樓平面佈置圖
改造後,不僅玄關加裝隔斷,做了緩衝最佳化,而且起居室把門廊納入,這樣空間顯得敞亮不少;再就是樓梯側面和底部,透過定製書櫃的方式,將空間極致利用。不信我們一起來看看吧。
入戶
現在看實景。推門而入是玄關,為保護隱私,對門方向加裝了,類似紅磚樣式的隔斷牆,來起到緩衝作用,同時隔斷開窗,又不會過於影響採光,還能便於門廳和起居室之間的聯絡和互動。
右側的話,擺放了一款鴕鳥樣式的邊桌,一個是烘托氛圍,顯得溫馨,另一個是作為端景牆,讓回家充滿儀式感。當然,放些諸如手包,和鑰匙類的臨時小物件都可以。
門廳往左做了L型換鞋區,不僅有大面積的櫃子,來滿足基本的收納需求,而且換鞋凳加上櫃底留空的鞋槽,也讓生活變得方便了不少。
(地面鋪花磚不僅看著復古,重要的是,可以作為落塵區,便於清潔打理衛生;當然用來和客廳的木地板,劃分不同的功能區也是可以的,所以說一進屋,這復古優雅又實用的效果便令人心動不已,太美了)
起居室&樓梯
拉長視野,可以看到左側玄關和整個空間的格局關係。至於門廳進來後,就是原來的樓梯,只不過改造後,變得更加驚豔了。
具體可以看細節。如前所述,樓梯側面和底部的空間,為提高利用率,定製了大量的書櫃,如此作為閱讀區,可以滿足全家人的學習需求。
重要的是,還能薰陶出一股書香雅韻的氛圍,從而讓兩孩子,在潛移默化和耳濡目染的環境影響下,養成愛閱讀、愛學習的良好的習慣。
繼續拉長視野,可以發現樓梯是建在這麼一個黑色的地臺上的,此時再加上相應的木作造型,猶如一個盒子,既顯得童趣活潑,也劃分了不同的空間。
當然,最重要的還是配上右側的攀巖牆,可以作為孩子的活動天地。另外就是靠窗而設的卡座,讓父母陪伴孩子用來閱讀什麼的,無疑能增進親子之間的感情。
起居室&客廳
客廳部分直接在左側,擺放精緻的棕色皮沙發,而對面打通將門廊納入後,不僅顯得空間敞亮,而且能夠實現最大程度上的引光入室,此時再加上柔美的窗簾,頓時有了一種歲月靜好的幸福氛圍。
按理來說這個應該是沙發對面的電視牆,但女主好像沒有這方面的需求,許是佈局在其他樓層,或者受制於建築結構有扇窗的緣故,就直接在點綴了鐵藝掛鐘,加上底部懸空的置物隔板,效果倒也兼具了美觀和實用的雙重屬性。
補充一下左圖,也就是原門廊右側的空間,直接定製一組藍色的櫃體,從而為室內增添了更多的收納機能。
起居室&餐廚
為女主量身定製做了高低臺
從平面佈置圖來看,廚房佈局為U形結構,這樣利用率高的同時,整個動線轉換也非常的流暢。
至於裝修本身,因為空間足夠大,就沒有做吊櫃,而是以置物隔板為主,配上藍色帶有扣狀把手的簡約地櫃,效果看著要優雅不少。
這個是餐廳,直接擺放結構輕巧的木質餐桌椅就可以了,而且據設計師介紹,女主的大兒子放學後,就可以在這做功課,如此這種餐廚結合的開放式設計,不僅顯得敞亮大方,而且便於兩個空間的交流和互動。
試想一下,媽媽在這做飯,兩兒子在這幫忙打下手,或者寫作業,家人間閒聊和日常瑣事由此展開,豈不顯得特別富有人間煙火味?
一樓客衛
一樓客衛沒有浴室,不過女主還是將洗漱臺挪出衛浴門外,從而佈置出一個雙分離結構,這樣洗臉刷牙和上廁所,就可以做到兩不耽誤,如此使用效率高。
一樓臥室
一樓房間是為屋主雙方父母準備的,畢竟上了年紀腿腳多有不便。裝修本身的話,除了床頭牆做了分色設計,來豐富空間效果,其他都很簡潔。(一樓臥室有配套的衛生間)
二樓平面圖
二樓以兒童房、次臥和親子空間為主。(兩間兒童房都有專屬的衛生間和陽臺)
親子空間&活動區
二樓的公共區差不多有20㎡左右,女主將其佈局為親子空間活動區,希望倆孩子能夠在這自由“撒歡”,以此度過一個快樂成長的童年。
因此我們可以看到,藍色樹屋做成的“秘密基地”,還有收納玩具的地方,加上樓梯邊的休閒區,無處不體現著這位寶媽,對於孩子們深沉的愛。
要知道,男主工作比較忙,所以整個裝修,幾乎都是這位寶媽,帶著倆孩子操持完成的。
兒童房
兩間兒童房的裝修雖說都比較簡約,但色調不錯,從而營造了一個童趣活潑的氛圍,難怪孩子喜歡極了。不止如此,除了滿足最基本的休息需求以外,還佈置了相應的書桌學習區,如此高的利用率,功能不可謂不強大。
二樓衛生間一隅,採用橙色搭配灰藍色,看著非常陽光,有活力。
三樓
樓梯
沿樓梯拾級而上,我們去三樓,可以發現由於是頂層,就開了天窗,所以採光非常好。
書房
原來的露臺改成了現在的書房,因為女主希望有個能夠實現輕辦公,和無器械運動的地方。
同時,兩孩子也可以在這繪畫,或者是做手工,進而找到自己的興趣點,培養動手能力和藝術審美水平。
主臥
主臥選用了深藍色的絲絨靠背床,搭配質感溫潤的魚骨拼地板,還有簡潔的硬裝、柔美窗簾和其他元素等等,相互映襯烘托下,整個氛圍變得非常的復古高階。
另一面是衣帽間。
主衛
最後是主衛,不僅帶有浴缸和淋浴房,而且洗漱臺設定了雙臺盆來提高使用效率,如此功能委實強大。
至此本案就分享到了這裡,感謝大家閱讀。(注:本案文字原創,圖片來源於@吾隅設計,如有侵權,請聯絡刪除)
想了解更多精彩內容,快來關注@美家手記
