建築尺寸:面寬 20.0米 進深 16.9米
建築面積:182.0㎡
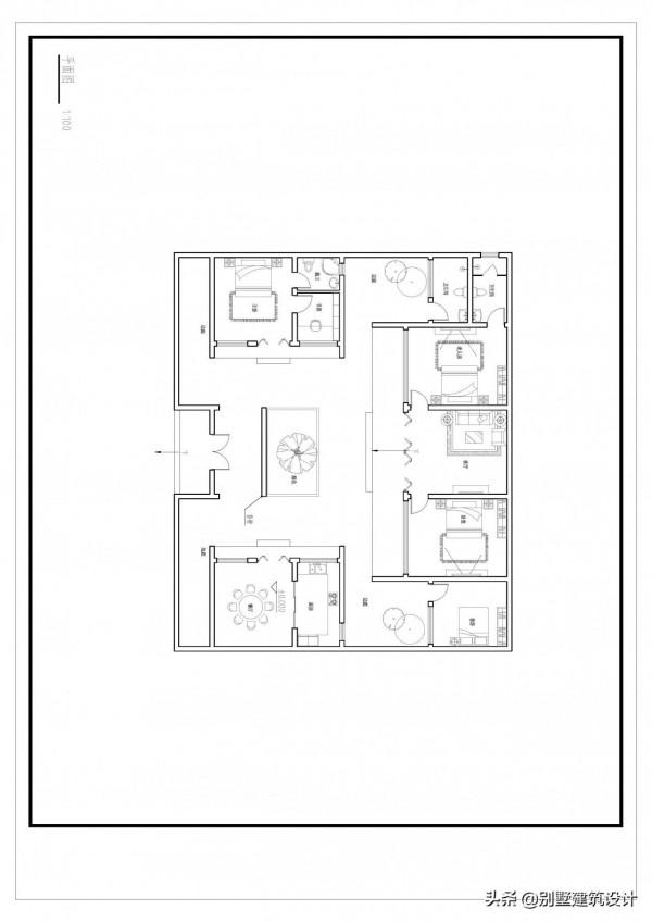
戶型概況:
1層 / 4室 1廳 3衛 1廚 1書房
平面設計
平面圖
一層主要作為公共活動空間,除了常規的餐、廚、客廳外,還搭配臥室、書房等空間豐富休閒居住功能。中部預留綠植景觀空間,採用影壁的方式與玄關相隔開。除此之外,還設定了老人房和客臥供家裡長輩及客人居住。
造型設計
△東南側效果圖
建築整體為中式風格,立面造型層次十分豐富,同時運用多種傳統裝飾手法,使得建築在整體設計風格上顯得更加莊嚴。
△西南側效果圖
三合院分為正房、東西廂房和東西耳房五個部分,所有房間採用仿古建的“徹上明造”,屋內可以看到裸露的屋面板和椽子樑架。
△西北側效果圖
△東北側效果圖
△南側效果圖
△門頭效果圖
△俯檢視
△區域性效果圖











 
			 
			 
			 
			 
			 
			 
			 
			 
			 
			 
			 
			 
			 
			 
			 
			