北京密雲湯河口村李家別墅(953)
- 建築地址:北京密雲湯河口村
- 建築風格:新中式,高階定製,現代
- 建築尺寸:16.1*17m
- 結構形式:磚混結構
- 建築面積:264㎡
- 土建造價:39.6萬
專案概況該專案位於北京市密雲區湯河口村,再往北是司馬臺長城,當地旅遊專案吸引眾多外來遊玩人員,所以該專案定位設計特色民宿,以接待遊客為主。
【效果△】
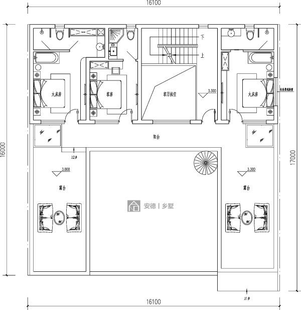
戶型設計【一層戶型圖△】
一層東南入戶,整體佈局形似三合院,主房以迴廊形式連通各個主要房間,考慮民宿性質,每個房間設計定位不同,並配有有單獨衛生間。
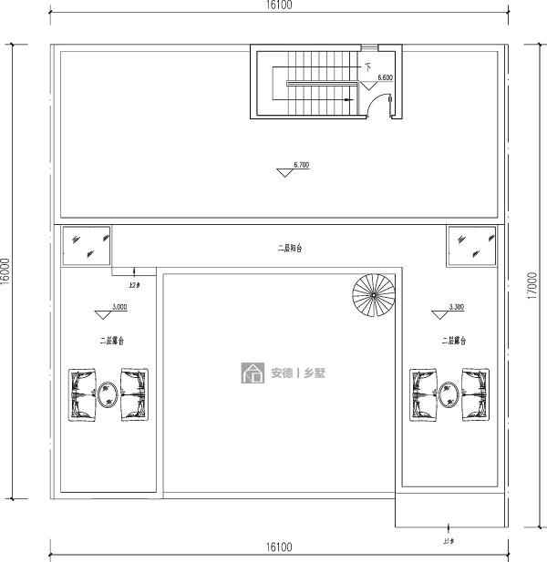
【二層戶型圖△】
二層客廳整個挑空設計整個室外陽臺連線所有房間,東西廂房設計兩個上人露臺,東西陽臺兩側設計有玻璃頂,考慮一層東西兩個房間採光用。
【屋頂層戶型圖△】
效果設計建築整體為現代風格,整體色調以灰白為主,以乾淨利落的線條勾勒出主體輪廓。區域性採用文化石和木質紋豐富立面色彩,材質轉變使得造型更加完整。
【效果1△】
【效果2△】
主房陽臺設計與廂房中間平臺採光井設計,既可以用來做茶餘飯後的休憩,亦解決的主房的採光問題。
【效果3△】
入院大門鏤空設計與格柵設計同圍牆形成虛實對比,視覺上虛虛實實相結合。
【效果4△】
透過南院來到內庭院,防腐木平臺的設計讓院子更加豐富,同時為室外活動增加了休憩空間。
【效果5△】
【效果6△】
【效果7△】
主立面的大開窗設計,極大地提升室內的採光效果,開闊、通透的空間提升居住品質,並增加室內外交流。
【效果8△】
【效果9△】
【效果10△】
















 
			 
			 
			 
			 
			 
			 
			 
			 
			 
			 
			 
			 
			 
			 
			 
			 
			