本案是在現代風格設計的基礎上,完美的詮釋了木材與大理石的互襯之美。設計簡潔大氣、前衛時尚,無處不彰顯屋主的品位。與每個人都熟悉的現代輕奢風相比,具有更好的品質和設計感,同時又融合了奢華與內涵的氣質。
專案地址丨滿京華喜悅裡
專案風格丨現代輕奢
專案面積丨200㎡
專案設計丨林江源
施工主管丨孫延明
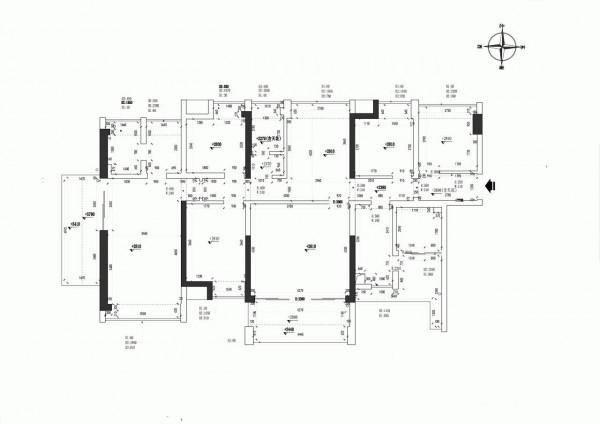
平面佈置圖
屋主購買的二手房,原屋主用來出租。所以,拿到房子後設計師在戶型上做了些許調整,使公共空間儘可能的開闊。從空間上,打造出大宅的入戶體驗。
①入戶原本只有1.2m的空間,設計師將門口的兩個房間改為餐廳,入戶的視野一下子開闊起來;
②入戶保姆房改為公衛,同時讓出一部分面積給廚房與過道,使每個空間得到合理的分配;
③原餐廳、公衛的位置改為一件套房,使客廳成為一個完整的空間;
④主臥套房的設計也規劃的十分舒適,將原來的大陽臺,改造為衣帽間+書房的空間,充分利用空間。
玄關
玄關與餐廳相連,紅銅色的入戶門,彰顯著屋主的闊氣。側面的鞋櫃、換鞋凳、穿衣鏡為一體設計,也相應的節省了不少空間。
餐廳
餐廳省去了原本設計的水吧檯,看似常規的設計卻藏著小心思。首先是窗邊,弧線的過度讓兩個高低不同的窗戶很自然的銜接在一起。餐邊櫃的設計,既可精緻陳設,同時也隱蔽和收納了不少瑣碎的生活用品。
平頂無主燈的設計讓空間簡潔不少,以燈帶的形式劃分區域,也增添了幾分輕奢質感。正面的收納櫃後還有一間小小的儲物間,滿足日常大件的收納需求。
客廳
客廳的硬裝近乎100%的還原,深海核桃色的護牆板及柵格,與灰色大理石相呼應,構築了簡潔卻奢華的感覺。
電視背景牆及側面的過道,同樣採用木飾面與大理石的結合。元素之間相呼應,讓空間極具現代風的時尚與高階感。
隱形門的設計,讓空間看起來更加的簡潔、統一。點綴金屬線條,大理石的天然紋路,呈現出自然的不對稱美,成就一場探索美的冒險。
過道
主臥
牆面與公共空間保持一致,地面選擇木地板,讓臥室不僅有了都市質感,還保留住了溫馨的感覺。橘色的皮質床,無主燈暗藏燈光,營造臥室雅緻、祥和的氛圍。
床尾的木柵格在燈帶的對映下,大理石的白底水墨紋,氛圍感十足。
次臥
次臥的氛圍不輸主臥,營造出和諧舒適的感覺。在周圍大理石的烘托下,軟包的床頭顯得格外舒適。
效果圖,是設計師與屋主對於家的最終構想,硬裝配置也是由此敲定。初見之歡,百看不厭。足夠簡約,卻充斥著奢華的氣息。感興趣的話,可以發您看一下喲~
