家是溫暖的港灣,所以舒適度對居住者來說很重要。
而舒適度的實現,需要根據我們的生活習慣和所需功能而設計。本案就是這樣一件舒適度100%的作品,一起來欣賞一下。
在整個裝修程序中,女主人親力親為,與設計師完美配合。保持對生活的愛與熱忱,一點一點實現著一家人的理想生活,這大概就是裝修帶來的最大滿足感。
案例簡介
座標丨杭州·西溪麗晶居
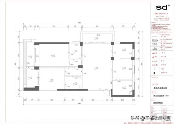
戶型丨4室2廳1廚2衛
面積丨123平方米
風格丨混搭
設計師丨聖都家裝佔芸姣
全包費用丨32萬
房屋戶型圖↓↓↓
設計圖↓↓↓
案例裝修需求:
本案的戶主是幸福的一家三口,他們偏好輕鬆閒適的家居氛圍,對居住的舒適度和空間的收納力要求比較高。另外,女主人希望改善廚房偏小、收納不足的現狀。
設計亮點↓↓↓
①廚房設計成開放式,並與餐廳融為一體,形成以餐廳為中心形成環繞動線,提高空間互動性。
②將原餐廳改成鞋櫃和衣帽間,方便出門進行衣帽搭配,讓出入戶更便捷。
③主衛牆體往主臥移動60cm,方便設計成雙臺盆,能夠同時滿足兩人洗漱。
④空間隔斷多用長虹玻璃,透光不透視,完美實現光線與隱私的共存。
收納滿分
說起女主人最滿意的空間設計,當屬這個逆天收納的開放式廚房。
尋常的煙火氣,要在廚房裡的柴米油鹽裡尋到。
櫥櫃特意用了女主人喜愛的豆綠色,並挑選了同色系冰箱,讓視覺趨於統一的清爽潔淨。
作為一枚精緻的家居達人,女主人擁有各式各樣的碗碟。為了收納下這些寶貝,廚房必須得有一套完美的收納體系:收納離滿滿的櫥櫃+嵌入式家電+掛杆+隔板。
餐廚一體
餐廚一體的設計能夠最大化縮短動線,讓菜餚一秒上桌,即刻就能與家人共享美食。
一家人一起圍桌吃飯,不理屋外的煩擾,共享生活的趣聞,是平凡生活裡最簡單、最質樸的幸福。
簡化傢俱
客廳簡化了傢俱,讓空間處於一個自由、開放的狀態,提高了空間的互動性。
客廳與陽臺、衣帽間均以玻璃門作為隔斷,既能保證各空間的獨立性,又提高了空間的通透性,讓客廳的採光變得更好。
原木的溫暖交織牛乳白的雅緻,簡單配色賦予客廳以溫馨自然的家居環境,是業主一家鍾情的舒適氛圍。
拼色牆超吸睛
步入主臥,一眼就被拼色牆給吸引住了。床頭背景牆沒有做複雜的裝飾,只是用簡單的雙色加以填充,延伸了臥室空間視覺效果,更具設計感。
原木+白色打底,奠定下宜居的舒適氛圍;紳士灰皮質床,用愛馬仕橙床品進行撞色,提升了空間的品質感和高階感;兩豆床頭燈遙遙相對,為空間帶來幾分精緻美感。
小配飾加分
素雅簡潔的色調,一應俱全的各式傢俱,為小主人打造出一個舒適的成長環境。
為了迎合小主人的喜好,也為了讓兒童房多幾分童趣元素,特意在小配飾上下了很多功夫:花球狀吊燈、Q版玩偶床頭燈、粉嘟嘟的懶人沙發...
雙臺盆設計
衛生間規劃雙臺盆設計,可以同時滿足兩人洗漱,大大提高使用效率。
如果螢幕前的你也喜歡混搭風,趕緊收藏這個案例吧~
