01
作品資訊
專案地址 | 合肥·禹洲郎溪上裡
專案面積 | 98㎡
專案戶型 | 三室兩廳
專案風格 | 現代簡約
作品名稱 | 破與立
設計施工 | 安徽華然裝飾集團
【原創宣告】本文中裝修專案為華然裝飾設計施工並現場實拍,圖文原創,請勿轉載。
02
寫在前面
建築面積98㎡套內76㎡的小三居是高層住宅中最常見的中間戶型,兩房朝南廚衛朝北,雖足夠滿足一家三口的居住需求,但總是有些空間遺憾。例如北邊採光不夠,廚房不明亮,缺少玄關鞋櫃等原生缺憾。從客戶需求出發,設身處地的為客戶解決問題,是一個專業家裝公司應該做到的。
本案業主是幸福的一家三口,夫妻二人都是教師,這套房子距離父母家不遠,既可以兼顧照顧父母孩子,又可以有獨立的生活空間,因此二人計劃依據自己的審美好好裝一下。身為90後的他們自然很善於利用網路,做了很多功課,收集了很多裝修美圖,並透過華然實現他們對新居的美好追求。
03
結識華然
夫妻倆之前的婚房是由父母裝修的,這套房則完全可以根據自己的想法來裝修,業主夫婦在網上看了幾家裝修機構,也去門店實地考察了好幾家,但提出的方案都很尋常,“沒有超出我們想象之外的東西,也沒有解決我家廚房光線的問題”。最後一站,他們來到華然,被設計師的方案所吸引,“張工考慮問題很仔細,他提出的改造方式讓我們豁然開朗”,由此開始了業主一家三口與華然的“交集”。
在拍攝新房竣工照的時候,業主劉女士告訴我們:“新屋裝修是件非常重要的事情,一定要找家靠譜的家裝公司,再三對比之下我選擇了華然,果然沒有讓我失望。從設計團隊到施工團隊都非常的靠譜,張工和陳部長認真負責,只要一個資訊發過去他們都是第一時間回覆,選擇華然我真的很放心。”
04
客戶需求
1、功能上滿足一家三口的日常居住,空調暖氣都要配置,用材品質要健康。
2、視覺上要符合女主人的審美,要好看時尚,也要耐看經用,給女兒一個溫馨的兒童房。
3、原戶型入口不夠寬敞,沒有地方放置鞋櫃,需要最佳化。
4、原戶型廚房採光不足,有點黑暗不通透。
5、希望多一些收納空間。
05
設計解析
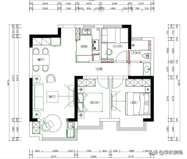
-原始結構圖-
-平面佈置圖-
在功能上首先要解決的是原戶型結構的問題,這是一套典型二梯四戶裡的中間戶型,首先要解決玄關、廚房等問題,同時儘可能擴大空間視覺效果、增加收納功能。
1、將入戶門左邊的廚房非承重牆拆除,做成背靠廚房的鞋櫃玄關,保留入戶門區域的寬敞通道,也幾乎不佔用廚房空間。
2、原廚房只有一扇朝北的窗戶透光,設計師將南邊L形牆體全部拆除,改用長虹玻璃取代原有牆體,廚房門用吊軌移門,最大化提高了廚房的採光度,同時還讓客廳、餐廳、廚房的公共空間更加通透、寬敞。
3、拆除原衛生間入口的牆垛,將洗漱區外置於過道盡頭,實現衛生間乾溼分離。
4、拆除客廳與陽臺的非承重牆體,擴充客廳空間,實現陽臺與客廳全貫通。
5、拆除書房輕體牆,增設嵌入式收納櫃,增加屋內收納空間。
在色調方面,屋主希望自己的房子溫暖簡單,用原木色、白色系做出輕快的色調。同時在不同的區域內用調色乳膠漆、矽藻泥、區域性花磚等方式,讓每個空間各有特色。
玄 關
PORCH
原戶型入口不夠寬敞,沒有地方放置鞋櫃,於是我們將入戶門左邊的廚房非承重牆拆除,做成背靠廚房的鞋櫃玄關,保留入戶門區域的寬敞通道,也幾乎不佔用廚房空間。
通頂底部留空的收納櫃,中間留有開放格,方便回家後放置鑰匙等小物件。收納櫃底部留空方便擺放鞋子更容易清潔。
入戶後左邊通向廚房和臥室,右邊通向餐廳和客廳,居家動線更合理。
廚 房
KITCHEN
原廚房因戶型問題採光不足且空間感較低,因此設計師砸掉非承重牆體改用長虹玻璃取代牆體,解決廚房採光問題,進一步提高空間通透性。廚房採用黑色吊軌門,地面沒有軌道也沒有凹槽不會藏汙納垢,更容易清掃。
U型廚房,給下廚者盡情發揮的空間;和愛人一起做一個簡單的晚飯,一個擇菜洗菜,一個只管掌勺,聆聽鍋碗瓢盆碰撞出的美妙聲音,享受愛人相伴的人間幸事。
高顏值的移動玻璃門,給人帶來開放式的空間感,讓人產生一種空間擴容的感覺,帶給屋主意想不到的舒適與愉悅。
設計師根據改造後的廚房結構在原牆體處設定定製櫥櫃,可以擺放一些小家電。每次逛完超市回到家,僅需兩三步就可以“解放雙手”,簡單利用起小空間就可以收穫滿滿的幸福。
餐 廳
DINING ROOM
餐廳的現代感,不僅體現在兩邊定製餐邊櫃上,還在配色和設計上,注重留白和灰度的利用,視覺上簡約而素雅。
灰色大理石餐桌搭配皮質餐椅,凸顯出強烈的現代氣息。客戶鍾愛的髒粉色背景與銅質水晶燈相搭配,餐廳溫馨而有活力。依靠牆體增設餐邊櫃,一側方便儲存家居用品,一側嵌入冰箱,完美解決小戶型冰箱無處可放的難題,同時空間感更強。
客 廳
LIVING ROOM
△效果圖
△實景圖
客餐廳背景採用飽和度低的髒粉色與高階灰進行搭配,沒有喧賓奪主,也沒有豔冠群芳!讓整個客餐廳多了一絲跳動與靈性。女業主喜歡金屬元素的物件,所以配上金屬燈具,客餐廳整體高階感爆棚!
△效果圖
△實景圖
別緻造型的茶几,用黑色和米灰色搭配,與沙發、背景牆相呼應,時尚美觀,寬大舒適的沙發L型空間擺放,將整體客廳的格調,以一種高貴典雅的氣息蔓延開來。
沙發背景牆,設計師別出心裁地將石膏線鋪到牆上,用粉色和灰色搭配,這種活潑靈動的延伸感,確實很有範兒,又新鮮又有情調。業主的朋友們來了都點贊。
△效果圖
△實景圖
電視背景牆完全照效果圖實施,選用白色大理石和木質牆板結合,這也是業主最滿意的效果,簡潔時尚。搭配黑色烤漆電視櫃,黑白色永不過時的高階格調,不言不語就成一道美麗的風景。跳色窗簾讓空間逐漸遞進,視覺效果更立體。客廳一角,安靜擺放的虎皮蘭,帶來一抹綠意,送來自然生機。
漸變藍冷水壺作為點綴跳入客廳,驚豔了時光,打破客廳的寧靜,為沉穩的氛圍跳出一方輕盈節奏。
盤著腿坐在地毯上,和家裡的位愛人依偎在一起,刷一部心儀好久的熱播劇,再喝一杯摻了冰塊兒的可樂,就這樣懶洋洋地度過一個冒著涼氣的下午,好舒服。
臥 室
BEDROOM
主臥以簡單舒適為主,設計師結合屋主的生活習慣及本身需求,在衣櫃設計方面選用頂天立地的白色衣櫃,充分利用空間,不留衛生死角,提高整體色調及質感。
雅緻的裸粉色與淺灰是臥室的主旋律,屋內採用無主燈,隱藏燈帶簡約又具神秘感,透過窗簾光影在不同的層次中漸進,以暈染以聚焦,輕重緩急,襯托出空間氣氛。
主臥擁有敞亮窗戶,採光良好,選用裸粉色與淺灰牆布修飾牆面,營造整體高階質感與氛圍。地面選取淺色木地板,來調和居室氛圍。各居床頭一側的床頭櫃簡約大方,它們用自己的方式為空間領主加持。
與其他空間不同的是,兒童房更顯設計的人性化需求,專為孩子設計的矽藻泥圖案讓房間充滿童趣。整個房間都體現了設計師在色彩上照顧孩子的情感需要,在空間上貼合孩子的成長需求。
溫馨兒童房,設計師合理依據窗戶位置定製書桌,讓家居設計溫暖孩子的每一次成長。
衛 生 間
BATH ROOM
衛生間一直是屋主夫婦很在意的難題,設計師直接建議他們用洗手檯外接的方案,一方面緩解了衛生間的空間壓力,另一方面也兼顧了衛生間乾溼分離的設計,方便家庭成員的使用,節省不少時間。
幾何圖案的瓷磚給沉靜的洗漱區域帶來一絲活力,設計師根據女業主的需求設定了感應梳妝鏡,讓裝扮的過程也更加從容。
書 房
STUDY
家庭的第三間房往往寄託很多功能,既要收納、又要辦公、又要當客房,還需要考慮新加入一個家庭成員。因此設計師與屋主充分溝通後,決定將書房左側多餘牆體敲掉,定製嵌入式收納櫃和書櫃,同時定製榻榻米擴大空間功能,滿足多樣化的需求。
06
主要用材
牆面(牆紙/牆布/乳膠漆/矽藻泥):乳膠漆調色、百色熊藝術塗料、綠森林矽藻泥
地面(瓷磚/地板):馬可波羅瓷磚、聖象地板
頂面(吊頂/整合吊頂):鉑雅吊頂
櫥櫃(櫥櫃、電器):志邦廚櫃
木作(櫃體、木門):志邦衣櫃、TATA木門
衛浴:恆潔衛浴
【歡迎互動】喜歡這篇作品,就點個【贊】再走哦!也歡迎在評論區留下你的想法。
【私信諮詢】如果您有住宅裝修需求,請私信留言,我們會及時與您聯絡。
