我們知道在繁忙的都市中生活久了,總是有點渴望鄉下的青山綠水,或是稻穀飄香以及蛙叫蟲鳴,但世間安得雙全法,想要工作就不得不背井離鄉,來到大城市。
那就真的沒有其它辦法啦?我看未必,因為很多時候,我們只要轉變一下思路,或許就能擁有不一樣的結果。
像本期要分享的案例就是如此,屋主是一對成都夫妻,渴望逃離都市喧囂的她們,到市郊買下了這套360㎡的別墅,如此既能享受大城市帶來的便利,也能坐擁綠水青山,過上慢節奏的生活。
至於裝修,這對夫妻太有遠見,儘管是別墅這樣的大宅,但全屋化繁為簡,不做任何豪華的裝飾,如此一入戶反而令人心動不已,畢竟處處都彰顯著高階,不信我們一起來看看吧。
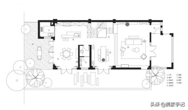
平面圖
一共三層,一樓室內以客餐廚這樣的公共區為主,室內則是用來放鬆休閒的院子。
入戶
推門而入是玄關,不得不說面積大就是好,結合窗戶帶來的優渥採光和廣闊視野,一入戶便能令人感受到回家的美好,顯然這不是普通平層那種兩面都是牆,沒有自然採光的房子所能比的。同時,別墅門廳的窗戶對著院子裡的樹木,還能做到引景入室的效果。至於左側是滿足基本收納而定製的鞋櫃。
拱形的走廊門洞在視覺上,表現得更為柔和自然,要知道四四方方的門洞,由於轉角呈90度的關係,而看著冰冷生硬,這裡則不然。
其它方面是高顏值的成品櫃,加上擺放的花瓶和點綴的裝飾畫,效果無疑兼具了美觀和實用的雙重屬性。
客廳
和其它別墅拼命堆砌造型,做加法來突出豪華感相比,女主直接做起減法,那就是全屋化繁為簡,輕硬裝、重軟裝,所以客廳看不到什麼造型,不過在白牆、木地板,還有柔美的窗簾,相互映襯烘托下,就有了個簡約而不簡單的效果,置身其中,無不令人感受到舒適解壓,重要的是,還充斥著一股歲月靜好的氛圍。
另一面是電視牆,除了右側凸出的部分,受制於空間結構的關係無法弄平整,正好來突出層次感以外,還設定了黑褐色的壁爐地臺,一方面有了色調上的對比,讓空間效果顯得更豐富,另一方面壁爐在開啟時,既能取暖,也能烘托氛圍。
傢俱方面,客廳選用了棕色的真皮沙發,不僅看著精緻上檔次,重要的是打理非常方便。此時再結合木質的雙拼茶几,還有柔軟舒適的地毯,席地而坐,看書閱讀,或是觀影嘮嗑,都是一種不可多得的享受。
這個是電視牆左側的一隅,作為閱讀角,慵懶的午後,看看書,或是打盹神遊,都有一種偷得浮生半日閒的悠閒愜意之感。
茶室
茶室將地面抬高,做了三級臺階的同時,鋪了相應的瓷磚,如此既能劃分空間,也便於清潔打理衛生。右側的話,依次能看到通往二樓的樓梯,還有角落的綠植盆栽,和沙發背面的櫃體,後兩者,一個為室內注入了源源不斷的生機與活力,另一個則為室內增添了更多的收納機能。
來看茶室具體效果。由於天花板下乾淨利索的平頂顯得有些單調,屋主就用木樑來豐富空間效果。傢俱方面的話,直接擺放長2.4米的大尺寸茶桌就可以了,配上長條凳和簡約的椅子,效果其實也不錯。整體有了一種乾淨澄明的氛圍。
試想一下,在繁忙的市中心累了、倦了,那麼週末就可以開車來到這,再邀請三五好友,喝喝茶,或者望著室外樹木蔥蘢的院子發呆,都能令人感受到特別的心安。
另一面是質感溫潤的成品櫃,除了用來收納茶具,配上牆面花磚,看著還非常的漂亮,甚至還有些復古。
餐廳
餐廳是透過將一樓臥室改來的,並敲掉對面的牆體改為側門,加上右側的落地窗並結合兩者垂落而下的窗簾,整個氛圍非常棒。硬裝的話,延續了之前的風格,以化繁為簡的減法為主,沒什麼造型,只有為避免單調的裝飾畫,基於此就不多講了。
至於傢俱,圓形的餐桌配上圓柱形的腿,加上六把餐椅,足以滿足一家三口的使用需求。哪怕來了雙方父母和親朋鄰里都沒有問題。再就是左側的餐邊櫃,除了滿足基本的收納,這樣式還挺好看的。
細節。透過以上我們可以發現,無論是入戶門廳,還是客餐廳和茶室,都透過開窗的形式做到了引景入室的目的。如此,無論是在哪個空間,說什麼幹什麼,都能令人身心愉悅。
廚房
廚房分西廚和中廚,之所以這麼設計,在於原來的廚房實在太小,就把原餐廳改為現在的西廚,如此左側就能設定相應的操作檯和嵌入冰箱和烤箱的電器櫃,加上右側帶有水槽的島臺吧檯,無論是用來烹製簡單糕點,還是作為水吧檯用來燒水泡茶、研磨咖啡,都能提高生活的便利性和幸福感。
同時,我們也能夠發現西廚和餐廳之間,形成了一個開放式結構,從而便於家人間的互動和交流。
二樓原始結構圖
二樓平面佈置圖
二樓為書房、客房和女兒房,結構上沒什麼太大的改動,基於此就不多講了。
兒童房
女兒房在床頭牆塗刷了,山坡狀的乳膠漆,一方面做拼色設計,讓效果顯得更加豐富細膩,另一方面結合簡約的傢俱和舒適的床品,就有了非常童趣活潑的氛圍。
另一面是床尾的衣櫃。
書房
書房一角,擺放懶人沙發用來放鬆休閒再合適不過了。
三樓進行空間重組,變為一個兼有衣帽間、衛生間、浴室(主要用來泡澡)和露臺的主臥。另外,三樓之上還有一個閣樓。
主臥
主臥在硬裝上延續了之前一貫化繁為簡的簡約風格,基於此就不多講了。值得一提的是頂面造型,採用木作製品弄成了人字形的屋頂,如此頗有種在鄉下度假的感覺。
細節。檯燈暖黃的燈光,對烘托溫馨的氛圍非常有幫助。
衛浴
最後是衛生間,乾淨整潔的效果不僅帶有幾分小清新,而且還有一絲輕奢精緻的質感。至此本文就分享到了這裡,感謝大家閱讀。(注:本案文字原創,圖片來源於@桐裡設計,如有侵權,請聯絡刪除)
想了解更多精彩內容,快來關注@美家手記
