把青山綠水帶進室內裝修是怎麼樣的呢?生活在山水之中又是什麼樣的一種體驗呢?那麼今天就把這樣的新房裝修設計分享給大家。設計師把千山丘壑化作水墨畫,以剛勁的筆墨糅入虎頭山闊景,連綿層疊若隱若現於室,遠水孤雲亦逐一繪成詩詞。話不多說,一起往下看!
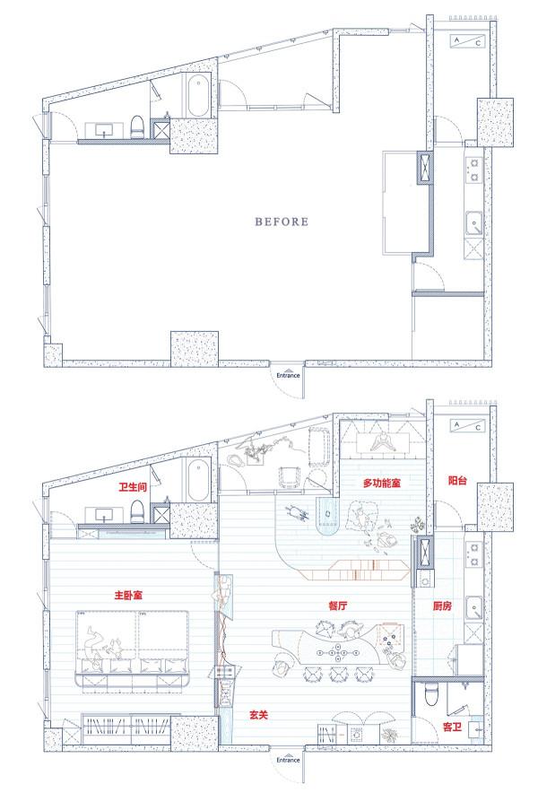
    平面戶型圖
房子面積:125㎡
房屋格局:3房2廳2衛
專案設計:古云山水空間設計
本案有許多山林海潮的意象,闡述著一種人與自然的和諧發展?每天面對著層疊山巒,一攬鬱鬱蔥蔥之景,去感受出生命力的本質,便是這次山林海潮主題設計底蘊和真諦。
    玄關設計
一入門,遠方即是虎頭山巒,灰白色的牆體面採用的是樂土鏝刀細磨,啞光質感,構成了一面山體在浮光瞬變間的形態。
左側換鞋座位延伸至丘壑的窗洞坐榻,在水平線上一氣呵成,樂土為立面、桃花心木為水平面,使一介丘壑的漣漪,與實木坐塌裸現出自然之美。
玄關右側是多功能收納櫃,中間隱藏著一個實木柱,隱身於櫃體中間,選以原木剩料打造,意味著木料不盡完美,卻有適用的歸所,屋子主人親自手工鐫刻兩字「家族」草書字型,象徵著家族每一個人都安其自所。
    餐廳設計
海潮彷佛在此掀起陣陣波瀾,矗立於此的是海潮侵蝕的太湖石,這也是廚房的設計的原形態。
廚房帶有親子烘焙的場域,並在廚房中島下方置入一大型烤箱,滿足女主人的日常使用習慣。
    多功能室
另一側全牆的磁性黑板塗鴉牆,成為孩子盡情揮灑創作之地,從地面、牆面、天花覆以清香撲鼻的日本香杉。
特意架高臥榻,形似貴妃椅,選了一幅藍染畫作與窗外虎頭山相互呼應,採用傳統的藍染工藝,需反覆 20-30 次的浸染才能出最佳的色澤。
    臥室設計
乍看有兩道門,其實一個是窗景一個才是門戶,為了保留視野的通透,便於時時照看家裡的小孩,開鑿一處窗洞,不僅增加了通風性,也別有一番特色。
主臥室帶有一個小型的彩電,兩邊做了收納櫃,電視居中擺放,方便夫妻倆躺在床上就能觀看電視節目。
對稱的雙開窗設計,保證了臥室內的採光的和通風性,左右兩個窗戶設計也方便了我們開合調整光源,來營造出一個溫馨舒適的臥室環境。
臥室雖然不大,但是臥室收納空間做得非常到位,絲毫不敢浪費一絲收納空間,就如在床頭上設計了隱藏式的收納櫃,把日常能吊掛的衣物歸納到了收納櫃內,使得整個更加的臥室整潔乾淨,減少了女主人的日常家務。
    衛生間設計
衛生間內依然採用的是灰白色主色調,材料依然是樂土搭配瓷磚,而盥洗區的立面瓷磚互動延伸至客廳;此處以一道實木作為水平軸,用來增設了收納儲物空間作用,也分離出了乾溼區域。



















 
			 
			 
			 
			 
			 
			 
			 
			 
			 
			 
			 
			 
			 
			 
			