前言
家應該是什麼樣子?它該具備哪些功能?空間應如何取捨?如果我們對所需之物瞭然於胸,一切井井有條,足以直面生活,成為修為的一部分,也表達了對人世的理解。
空間展示
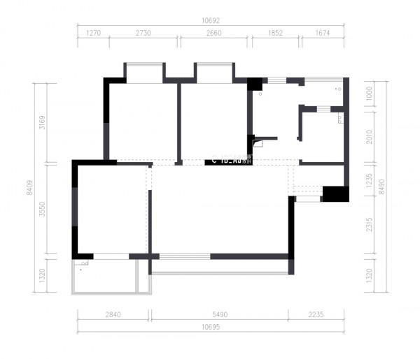
戶型圖
本案是方正戶型,三室一廳,明廚明衛,沒有特別硬傷。如果是三口之家,這樣的平面格局住起來不會有太大問題。但是,業主全家三代同堂,夫妻2人,2個娃,2位老人,一共6口人需要同住一個屋簷下,只有一個很小的衛生間,對日常生活使用是很大的挑戰。
如果我們犧牲玄關,將衛生間與生活陽臺打通,入口改變方向,對著入戶門,雖然面積擴大了,但是如果兩個人同時需要如廁,還是很不方便,而且沒有玄關,生活沒有儀式感,此想法不可取。
我們將玄關保留,設定寬敞的儲藏櫃與鞋櫃,入戶從容便利。為了解決可能兩個人同時需如廁,不能等待的問題,將衛生間幹區通道設定在廚房內側面。透過相對乾淨整潔的通道,進入溼區。將淋浴與蹲便器設計於原生活陽臺,下水管道的改造不超過1米。馬桶設計於幹區的另一邊,同時在保證使用無阻礙的尺度下,利用牆體凹陷嵌入冰箱。我們變換出洗臉、浴室、如廁三分離式衛生間,互不影響,獨立分開供人同時使用,完全滿足了一家6口人的需求。
擴充套件廚房面積,餐邊櫃設計在廚房門口兩側,餐廳採用收縮式活動餐桌,平時不使用時可以縮短減少佔地面積,儘可能保證相對寬敞的客廳。
兒童房的設計採用了高低床架,長條書桌,利用牆面變化增加衣櫃。主臥與老人房都是1.5米雙人床。在主臥陽臺設計家政櫃,乾衣機洗衣機等裝置,滿足晾曬需求。因戶型面積有限,居住人口眾多,所以必須把每一寸空間利用到極致,對於空間走道尺寸與傢俱尺寸,我們經過了反覆計算與調整。為了保證6口人生活便利從容,在收納設計時,我們進行了全屋必備物品的統計分類與歸納,櫃體內部進行嚴謹精細地分隔。
玄關
玄關採用白色櫃門、白色踢腳板、白色門套線、黑色波打磚、黑白花片,明快輕鬆。
玄關雖小,生活也要有儀式感,過道門洞處理成圓弧形,柔和大方。
從玄關門廳步入起居室,右轉即是廚房,左邊是餐廳。
客廳
客廳雖小,也要明亮整潔。主燈天鵝曲線造型,柔化空間直線結構。布藝沙發溫暖親和。白色加原木色點綴的茶几與電視櫃輕巧清爽。
水洗布藝的灰白色沙發、胡桃色系的木作,簡斂且舒適的營造空間感。月光白的牆面,色彩、傢俱、窗簾、木製品、抱枕的協調搭配,一切讓空間是如此的簡單,沒有絲毫遮掩的做作,極致返璞的味道。
客廳一角為居心之地。
餐廳
餐廳選用不同色餐桌椅,恬淡樸素。牆面選用淡藍色乳膠漆,更顯空間清爽。
壁掛藝術盤,幾何鐵藝吊燈,提升空間藝術氣質。
廚房門口的餐邊櫃,做開放格,深色邊框與餐桌呼應。
廚房
經過玄關門廳右轉進入廚房。黑白格地面明快簡潔。白色田園風格櫥櫃,米黃色檯面石。水槽下方櫃門採用交錯十字格柵,增加空間進深。
灶臺牆面磚選用花片,讓小小的空間更有趣味。
衛生間幹區藏在廚房內面走道。選用鏡櫃與懸掛式洗手檯,讓空間更顯輕巧,便於清潔。衛生間溼區採用雙層磨砂玻璃夾白線條,保證採光效果。
臥室
從客廳向前走就進入主臥室。
明快顏色的床品、窗簾布藝更顯空間活潑整潔。
走廊
經過客廳電視牆右轉,進入走道。左邊是兒童房,右邊是老人房。
走道盡頭設計了圓形月亮窗,除了增加走道採光,還方便在室外的大人觀察室內寶寶的動態。等孩子大了在背後增加布簾,保護隱私。草綠色的牆壁在走道盡頭,搭配白色室內門、淺灰色地板,空間更有層次,更顯明快活潑。
走道吊頂與高處月亮窗近景,小猴子玩偶彷彿在迎接小主人。
兒童房
推開兒童房的門,映入眼簾的是明黃色書桌與書架。
深綠色木椅,深棕色座板,檸檬黃色桌臺,白色衣櫃與牆壁。
兒童房的配色以鮮明跳躍的顏色為主,白色背景為輔。空間活波明快,又不顯得太過於喧鬧。
橙色氣球燈與橙色床架,還有橙色窗簾,互為呼應,小小軟裝點綴,讓空間更添幾分柔和。
(圖文來源:武漢C-IDEAS陳放設計)
