現在大部分櫥櫃商都提供廚房水電佈局參考,但是作為業主也應該學會設計一個最適合自己的廚房格局,希望透過通俗的表達和圖示,能讓大家對自己的廚房更好地進行規劃。
注:文章提到的都是一般使用尺寸,為大家提供設計的思路,各位業主可以根據自己實際需求來進行細節的調整以達到最佳設計。
整體佈局
首先確定公共煙道的位置及方向。燃氣灶儘量靠在公共煙道,縮短管道減少拐彎,對提高油煙機排煙效率有重要影響。
水槽位置儘可能靠近主排水管,儘可能減少拐彎,降低排水管堵塞機率。
各種型別的廚房佈局參考,先有個大概的印象。
一般建議根據洗菜(水槽)→切菜(檯面)→炒菜(爐灶)按順序進行排列,可以順時針,也可以逆時針。
如果位置充裕,可以升級成:擇菜(檯面)→洗菜(水槽)→切菜(檯面)→炒菜(爐灶)→熟菜(檯面)
擇菜和熟菜的檯面建議在400mm以上,否則使用起來不夠舒適。
尺寸細節規劃
分割槽所需尺寸參考
水槽區:800mm;
切菜區:600mm;
爐灶區:900mm;
櫃立柱:25mm/根;
其他區:400mm;
檯面深度:520mm~650mm;
吊櫃深度:320~350mm。
櫥櫃長度大於2.4米,才能滿足一般家庭使用
檯面高度是尺寸規劃中的重點,基本上可以說是時刻
如果家裡煮飯的人不固定,可以統一臺面高度800mm,可能會產生下面的不足。
改善方案
檯面高度:洗菜的檯面高度設計比炒菜檯面高,這樣更符合人體工程學,具體尺寸參考下表。
注:高低檯面的設計。也有不足,當你想用水清洗燃氣灶檯面周邊,不能痛快地把水推向水槽。另外可能也會在選購的時候遇到一些阻力,例如櫥櫃商家或者師傅的不理解、不配合甚至要求加錢等。
水電規劃相關
水路規劃分為給水和排水。給水裡面走的是乾淨的自來水,排水裡面走的是生活汙水。
給水(PPR管):一般進戶水閥開發商都會預留在廚房,用三通分出水槽和其他地方用水管道,左熱右冷間距200mm,有吊頂的話水管可以走天。相關專題:水電走地還是走頂?
排水(UPVC管):在公共排水管道利用彎頭和水管接出到水槽下方。
如果有吊櫃,建議預留燈帶的插座在吊櫃內
廚房三件套電器中,爐灶和油煙機房肯定是一起的,消毒櫃建議不要放在爐灶底下。
注:燃氣灶下方有進氣口開關,不能被消毒櫃遮擋,現在很多廚房設計圖為了美觀都把消毒櫃設計在爐灶下方,把氣閥放在另一側,如果條件允許,實際規劃應該儘量避免。
不過消毒櫃越來越多地被淪為碗籃或者抽屜,幫助大家飯後解放雙手的洗碗機越來越獲得市場的肯定,相信將來的普及度越來越高。
洗碗機需要預留好進水口和排水口,建議在選購櫥櫃之前選購(尤其購嵌入式的產品需要納入),並且仔細閱讀安裝說明。一般來說建議靠著水槽來安裝,方便進水和排水。
另外水槽下方還可能需要預留出插座,用於淨水器、垃圾處理器、小廚寶等等。
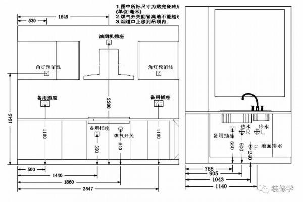
根據商家提供的安裝示意圖,進行水電和放置空間預留。
油煙機安裝高度建議
側吸式:870~920mm;
非側吸式:650~700mm。
擺放電器的檯面插座數量預留多點,儘量帶開關。
五金配件
拉籃和碗籃、吊櫃的升降籃等都是廚房提高利用率高的利器,但並非必需品,需要結合自身使用習慣選購。
拉籃碗籃的尺寸,不同品牌型號略有不同,需要和櫥櫃尺寸匹配,最晚在櫥櫃門安裝之前選購好。
進階探討
關於提高吊櫃利用率的方法探討,透過加寬檯面,降低吊櫃,可以在使用櫥櫃的時候更加舒適,前提是需要廚房寬度足夠大能讓檯面延展到75mm,有得有失,當然這個除了個人喜好,還需要廚房有足夠的空間。
