大家好,我是本設家居,為大家帶來不同風格的家居方案,分享裝修的各種經驗和知識。關注我,或許可以在家居裝修這件事上,提供一些建議和參考。
業主是位非常陽光的女青年,個性獨立,做著喜歡的工作,空閒之餘到處旅遊,活得恣意妄然。買下這套小戶型是因為離單位近,又經常加班,能夠減少通勤時間。小宅雖然只有45㎡,但是經過細緻的設計,再花費25W裝修後也是五臟俱全,應有盡有。小戶型與大面積留白最配,再加上實木傢俱和飾品點綴,色調簡單,整個空間顯得溫馨又精緻,非常滿意。雖然一個人住,有時會覺得有點孤單,但是不打擾和不被打擾的日子,自由自在,也可以把生活過得很舒適。
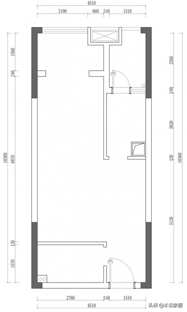
原始結構圖
公寓型的房子面積小,總價低,成為很多年輕人的選擇。而一室一廳一廚一衛長條戶型,專門為單身人士打造,硬傷是單面採光,空氣無法對流。
平面佈置圖
根據業主的生活習慣和需求,平面佈局上做了一些改動,在入戶門處打造了一個獨立玄關,以及大大的儲物空間,改變原有衛生間方向,採用乾溼分離,這個設計值得借鑑。同時結合餐廳打造開放式廚房,靠窗做了一個大大的榻榻米和飄窗,相當完美。
玄關
玄關地面鋪貼六角形防滑地磚,在入戶門左邊牆上安裝實木框鏡子,承擔穿衣鏡的同時延伸視覺空間,不會讓人覺得擁擠。定製一組L型換鞋凳和儲物結合的櫃子,原木色搭配白色櫃門,看起來很清爽,拐彎就是洗手檯,在這個方寸之地便能完成換鞋-更衣-洗手-再進屋動作,在這個細菌橫行的年月,顯得尤為重要。
客廳
客廳、餐廳、廚房和臥室,不會嚴格意義上的獨立空間,都是通透的。業主為了讓空間看起來更加完整,與通往衛生間的走道堅持採用布簾隔開,其實有點多餘,畢竟不是正對著入戶門,這樣反而讓走道覺得昏暗。
客廳沒有繁雜的造型,無吊頂,牆面大面積留白,搭配同色系的皮革沙發、原木茶几、米黃地毯,以及落地燈和裝飾畫,乾淨清透。開啟懸掛的暖光源吊燈,瞬間提升了空間的藝術氣質,同時保證了視覺上的舒適感。定製的儲物櫃電視牆與玄關櫃同色的,儘量增加儲物空間。空閒之餘,窩在柔軟的沙發看會電視,放鬆一下。
餐廳
橢圓形的實木餐桌椅,搭配白色卡座,可坐可收納,極致利用每平米的價值。悠閒的清晨,為自己做一份豐盛的早餐,充滿能量,才能賺得盆滿缽滿。
廚房
工作再忙也不能在飲食上虧待自己,堅持自律,不吃外面,電器裝置齊全,成為很多單身人士的榜樣。在廚房的設計相當講究,暖灰色的六角形地磚、原木色櫥櫃和白色牆磚,把開放式的廚房營造得寬敞明亮,連插座都選擇原木色,一個人的生活可以更自由隨意,完全按自己的喜好來,滿滿的幸福感。
臥室
超大的榻榻米是業主的最愛,鋪上墊被就能睡覺,床頭是衣櫃,大大的收納空間滿足女孩子愛買買買的喜好。拉開白色紗簾,陽光直射進來,採光豁然開朗,溫暖而舒適。週末或空閒之餘,坐在飄窗上看看書,喝杯咖啡,享受慵懶時光。
衛生間
洗手檯外接,馬桶區和淋浴區採用玻璃隔斷,再加上整體的白色調,看起來更加通透明亮,減少壓抑感。
看完全文,你喜歡這樣佈置的家居嗎?請在評論區留下你獨特的見解,謝謝!如果文章對你有所幫助,請關注我,關注本設家居,後續將有更多的精彩內容為你呈現!
