我是雲棲建築小編,每日分享鄉村建房精美案例,點選上方“關注”,每日獲取最新精美案例呦~
專案概括:
專案位置丨北京房山十渡
建築尺寸丨22.90*14.00m
佔地面積丨276.06㎡
建築面積丨701.12㎡
專案用途丨民宿
建築風格丨現代
結構形式丨磚混結構
——
每個都市人都有一個田園夢,越來越多的人出行選擇入住民宿,遠離城市喧囂,在沒有世俗紛擾的地方,感知自己最真實的狀態。
正是這種隱居的情懷讓民宿大熱,隨著近幾年民宿的快速發展人們對民宿的要求也變得越來越高,到底怎樣設計民宿呢?
建築效果圖
該專案位於北京房山十渡,主體為三層現代民宿。
場地位於十渡村落的北側,和周邊的場地存在一定的高差, 東側、南側和西側都是鄰居,北側是護坡牆體,比場地大概高3.6m左右。二層設計了連廊用於銜接北側空間,可用作戶外活動露臺。
場地絕不只是場地本身,周圍的樹木、相鄰的房舍、遠處的山屏都是場地的一部分。人融入在其中,建築的空間和視野也圍繞其展開。
建築以形體作為主導,透過材質的區分進行強化。簡潔硬朗的線條勾勒整體輪廓,達到均衡、富有造型的立面效果。
入口處存在高差,做了樓梯設計,透過牆燈氛圍的營造,即使夜晚,依然格外醒目。院門背景牆做圓洞鏤空處理,增加對景,避免門廳過於壓抑。
建築的西側透過形體和材質進行體量刻畫,達到均衡質感。外挑陽臺造型受限於西側和鄰居的間距,並未有實際功能,做裝飾,豐富細節。
庭院內還配備了小型的娛樂水池,主要用於孩子嬉戲,成為孩子最喜歡的戶外戲水空間。
鳥瞰效果圖
一間好的民宿,一定需要一個點睛吸引人的地方。一個佔據著最佳視野的陽臺或露臺,是必備的。很多人來到這裡,坐下來看看風景看看書,那些安靜的沉默獨屬於自己的的時光彷彿回來了,很多人為了遠離大城市的喧囂來到這裡,歸根到底也許就是在尋找這樣一份平靜。
三層除去兩間套房和樓梯間,全部用作露臺,其中劃分出兩個私密露臺歸屬於給套房,其他部分則用作公共娛樂空間。
建築面南向儘量的擴大視窗,把遠處山景更多地收入房間,也讓充沛的日光照射進來。
在這兒無不襯托了空間與人及自然的協調與自然,讓城市中疲憊的人們真正地放下心靈,感悟大自然的美好。
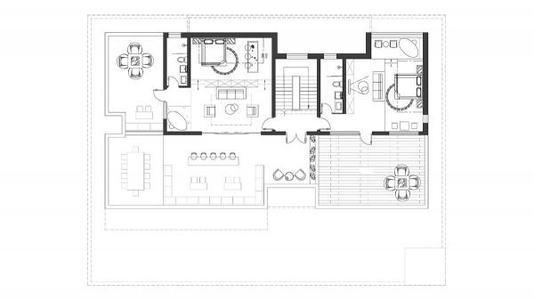
平面詳圖
民宿講究的是接近自然、貼近生活,不能一味地追求設計感而忽略了實用性。實用性和設計感需要被分別安排在不同的體驗維度上。
一層將功能分割槽進行動靜分離,整個西側空間用作共享互動空間,東側用作居住區,共設定了兩間大床房和一間員工房。
二層在臨近北側區域做了一處兒童娛樂區,同時作為和戶外平臺銜接的緩衝空間,其餘的部分則是以套房為主,不同的規格和配置滿足不同人群的使用需求。
三層總計做了兩間大型情侶套房,屋頂部分做了大面積的天窗設計,可用於晚上觀星,營造浪漫氛圍。兩個情侶套房都有自己私密的露臺活動空間,保護其隱私。
每一位來到這裡的遊客,都將“甘心”迷失於這純粹的自然秘境,去感受萬物的神奇與奧妙,每一秒都是歲月靜好。
【重磅訊息!!!】該專案已經投入運營使用了,如果大家去十渡遊玩,歡迎前去打卡,提【雲棲建築】有優惠呦~
願我們每個人心有所屬,奮鬥有標
蓋房子是大事,一生只一次
我們建的不僅是房子,更是生活
雲棲建築
設計改變生活、讓一切從美好出發
建築丨室內丨景觀丨規劃
