在這套150平米的房子中,整體空間以簡潔大方的現代風為設計基調,透過現代簡雅的設計手法,再加入綠植的點綴裝飾,讓空間顯得充滿自然舒適的輕鬆氣息;而玄關的鏡子牆面、臥室的粉色搭配,也讓空間顯得更加精緻舒適而時尚,居住在這個空間,你能感受到的是一種無比輕鬆的體驗。
玄關
▲過道式的玄關。空間感比較狹窄,左邊與天花都以鏡面材質設計,擴大了空間的視覺感;右邊佈置換鞋凳+壁燈組合,也讓空間顯得更加優雅華麗而大氣。
客廳
▲客廳天花采取無主燈的設計,在四周裝上了燈帶,佈置上現代風的米白色布藝沙發,為主人帶來了一種現代舒適的體驗。
▲整體空間簡潔舒適為主,牆面淺淡色為主,也讓空間顯得更加自然愜意。
▲天花上暗藏燈帶+巧妙的筒燈佈局,也使得空間更加現代大氣而有趣。
▲暖灰色的沙發牆,加入一幅灰色調的裝飾畫,並在天花上加入了筒燈裝飾,也讓空間顯得更加有層次感。
餐廳
▲餐廳背景牆掛一面帶背光的鏡子,佈置上現代輕奢風的餐桌椅,金屬腳架、石材檯面,還有暗粉色的布藝座位,後方一排白色的收納櫃,帶來實用收納的同時,也顯得格外的現代大氣。
▲餐桌上精緻的茶具,與暗粉色餐椅相呼應,也烘托出一種時尚舒適的氣息。
廚房
▲廚房在L字形的操作檯空間基礎,定製上現代簡潔的白色櫥櫃,也為主人提供了一個舒適實用的廚房操作空間。
▲冰箱與洗衣機都嵌入到廚房櫥櫃裡,在實用的基礎上實現現代大方的視覺設計。
臥室
▲臥室天花以無主燈的設計、床頭上方裝了一個燈槽暗藏燈帶;床頭牆的牆腳區域加入了白色的護牆板裝飾,上方是粉色的乳膠漆牆面,掛上三幅黑白色的墨意裝飾畫,整體灰粉色的床單佈置,讓臥室顯得格外的現代優雅。
衛生間
▲衛生間佈置白色洗手盆、馬桶與浴缸,中間加入玻璃隔斷,並以綠蘿的裝飾點綴,也讓空間顯得格外的清新唯美。
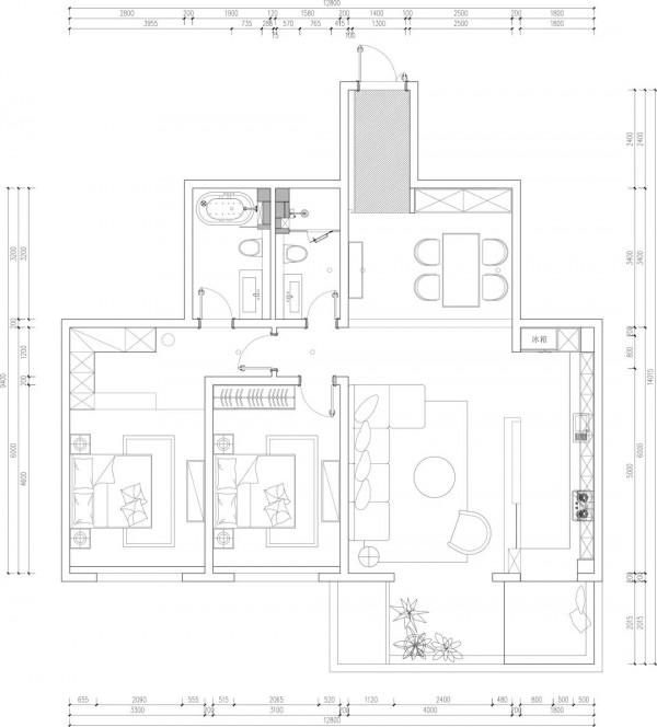
平面佈置圖
設計:何浚鳴 ,點評:設計館
