人生忽如寄,莫負茶、湯、好天氣。
01作品資訊
專案地址:合肥·新地中心
專案戶型:三室兩廳一衛
專案面積:96㎡
專案風格:極簡原木風
作品名稱:《三分之二》
設計施工:安徽華然裝飾集團
02寫在前面
千篇一律還不是精裝房最大的槽點,更糟心的是粗製濫造的質量,以及跟不上業主審美的細節。精裝房到底是將就入住or局改or重灌?面對這個大雞肋,很多業主糾結彷徨。
這最終還是取決於對居住的要求,在本案中,業主一家三口計劃居住至少8年以上,每一天舒適、愉悅的居住,是他們生活中最為重要的事。“人生有三分之二的時間是在家裡度過,我們希望不要辜負每一刻”業主說。因此他們決定親手裝出自己喜歡的家。
03結識華然
年輕的業主夫婦考慮通勤效率和方便照顧孩子,在寸土寸金的單位附近購置了這套面積96平米的小三居。原房屋是精裝房,不夠美觀質量也不太好,這與他們對新家的期待有著強烈的衝突。所以整體重灌的計劃提上了日程,這也成為和華然邂逅的開端。
他們是透過自己的親戚——華然的老客戶瞭解到華然裝飾的,但他們並沒有因為是熟人的推薦盲目確定,而是比較了好幾家裝修機構。最終也是因為設計師周全的方案和華然的工程質量而選定了華然。
04客戶需求
⒈常住人口是一家三口,業主對房間的舒適感和寬敞度要求明確,喜歡簡約又有品質的家居環境;
⒉業主希望透過設計改善廚房及餐廳面積較小的問題;
⒊女業主希望三樓是一個私密的空間,並且能有一個單獨的衣帽間;
⒋業主夫婦希望孩子的臥室較大,能夠滿足休閒、娛樂、學習的需求。
05設計解析
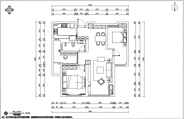
1、設計師在與業主溝通後保留原戶型兩間臥室的格局,在區域性空間上進行改造;
2、拆除主臥與衛生間之間的窗戶,將裝置平臺擴入室內,作為書房空間;
3、改變兒童房門洞位置,空出足夠的區域作為餐廳空間;
4、主臥門洞位置後移,空出主臥、書房、衛生間之間的通道距離;
5、陽臺擴入客廳,增強客廳空間視覺感;
6、整個風格以原木色為主,裝修之初業主也擔心把握不好就成了簡裝出租風,好在整個過程中業主非常信賴我們,完全按照設計方案來配色選材,因此最終的效果得以呈現。
入戶即可看到高顏值高實用性玄關櫃,大面積白色減輕櫃子的體量感和厚重感。中部留空設計,解放滿載而歸的雙手。
櫃體底部懸空處理,讓室內拖鞋有屬於自己的位置,再加上燈帶增加通透感,簡直完美!同時也充分利用上晾衣區,結合換鞋凳設計,多個步驟在玄關即可一步搞定!
客廳電視背景牆造型簡約,木色懸空電視櫃與電視背景牆穿插相連,中間部分留白設計,搭配大幅的落地窗,輕盈飄逸的百葉窗,整個空間看上去格外的寬敞透亮。
陽臺區域納入客廳,埡口與收納櫃齊平。靠近電視背景牆一側定製木色收納櫃,頂天立地式櫃體搭配黑色長條金屬把手,視覺上與客廳空間融為一體。
考慮到孩子還小,因此公共區域選擇地板而不是瓷磚,讓孩子可以隨時脫掉鞋子撒歡。客廳採用了一字型沙發和簡潔的小邊幾,儘量將空間留給家人活動。
客廳採用無主燈設計,吊頂配合燈帶、筒燈、磁吸軌道燈,在自然時序變化下,恰到好處烘托出獨有的一份精緻。
白色和木色是原木風格的經典搭配,讓客廳傢俱顯得不那麼分散,提升整體性兩種顏色就能做到。
沙發背景牆只用到了莫蘭迪色乳膠漆進行裝飾,流線型摺紙落地燈照亮點點微光。沙發背景牆過渡到兒童房暗藏隱形門,營造與牆融為一體的視覺假象,增加客廳的整體感以及兒童房的私密性。
設計師為了滿足業主對燈光氛圍的追求,將吊頂重新設計,融入中央空調系統,賦予空間現代感。
電視牆大面積留空,藝術想象在留白中恣意張揚。大白牆難免單調,用原木邊框飾品裝飾牆面,有趣實用。一旁擺放一株綠植,綠與白之間鮮活對比,碰撞出蓬勃生長的自由力量。
在改造前只有兩間臥室,但因為男業主需要一個單獨的書房空間,便拆除主臥衣帽間的窗戶,將裝置平臺納入室內改造為男業主的專屬辦公區域。
同時依靠書房牆體定製收納櫃提升空間儲物量,補足原戶型儲物功能較弱的缺陷,方便一家人一年四季的衣物更換,減輕臥室儲物壓力。書房白色無軌移門與牆體顏色保持一致,視覺效果更佳。
陽光從疏密有致的白色百葉窗照進來,盡顯清新明亮。熠熠日光,傾瀉而下,透過百葉鱗次櫛比灑在牆上、地板上。將閒適與時尚巧妙糅合於此,讓人置身其中倍感輕鬆愜意。
陽臺靠牆設計洗衣機+收納櫃的一體設計,增加了陽臺的功能性。
U型廚房設計,將洗滌區、烹飪區及操作檯、冷藏區等空間劃分極其明確,功能配置充足,動線無縫銜接,既滿足了使用空間的需求,又減少物品拿取往復的時間。
餐廳左側白色的餐邊櫃利落簡潔,中間部分留空設計增加空間收納能力,原木質感的餐桌,體現著主人質樸的日常生活。
餐廳被白色、灰色、木色這些獨特的材質肌理安放進煙火氣裡,將就餐時的體驗感瞬間拉滿,橙色裝飾鍾更是十足吸睛。
臥室的設計以舒適為主,臥室右側定製頂天立地式衣櫃,櫃門側邊留出凹槽作為把手,無外把手設計簡潔乾淨。整體軟裝上沒有多餘的佈置,在寧靜悠然的燈光氛圍中,靜享休息時光,擁抱夜晚的治癒力,在星光低語中安然入眠,進入酣甜夢境。
業主和設計師在色彩、材質和傢俱的選配上,完全還原效果圖,這也是“設計價值”的真正體現。
優雅莫蘭迪灰奠定了臥室主景,雅緻而靜謐。貫穿全屋的魚骨拼木地板,以優雅而細膩的木紋理,錯落有致的圖形細節等,賦予空間更強烈的立體感。
簡歐床具復古而優雅,營造恬靜氛圍,搭配蘑菇造型的梳妝凳,整個臥室彷彿就是一間奶油小窩。
造型簡約的壁燈摒棄繁雜的裝飾,只留素雅一面,燈光散發出來的暖色調使整個臥室看起來更加明亮通透。
除了有頂天立地的大衣櫃外,兒童房還是寶寶的童心“博物館”。業主夫婦考慮到以後孩子學習會需要更多的書櫃空間,因此在定製衣櫃時特地騰出“書櫃”空間的。
兒童房右側也留出了足夠的空間作為寶寶的休閒區,閒暇之時,坐在窗邊悠閒地看書,還有一堆玩具陪在身邊。
一字型佈局最適合面積較小的衛生間,把洗漱區、馬桶區和沐浴區三大功能區靠牆一字排開,緊湊佈局,最大程度地釋放空間。
淋浴區透過玻璃淋浴房進行隔斷,輕鬆實現乾溼分離。白色瓷磚不僅能反射更多的光線到室內,還能使衛浴空間看起來更大。懸空浴室櫃留出足夠的底部空間,方便擺放其他物品。
