誰說有個院子就得住郊區,大都市北京的核兒就是院子堆起來的。
今兒個要講的這個房子,就在北京東城的衚衕裡。夫妻倆住膩了大高樓,就買下了這套一百多平的小雜院。地方雖小,卻讓設計師給切出來三個小院,屋裡屋外、從下到上四處都能觀景,在裡面過日子如同遊山玩水了。
看膩了公寓大平層,今天三維家的小編就帶您看看這個老北京的小院如何藏下三處小花園。
面積:100㎡
戶型:一居室
裝修花費:45W(加建+硬裝)
房屋座標:北京東城
認識TA
設計師:Baptiste BRET 和 尉然
Baptiste BRET是一個非常熱愛中國文化和傳統建築的法國人,對空間有的獨特的品味和見解。他追求自然與環境融合,設計要不留痕跡。
尉然在設計開始前,會先對空間的前世今生以及周圍環境做充分的瞭解,尋找每一個空間的氣質。
#01
還真不是四合院
地方小需求多隻能讓院子裂開
夫妻倆人想在這個雜院中體現老北京人的閒散生活氛圍。最好能做個四合院,開啟門就得看見景兒,院兒裡還得敞亮。而且,喝茶、會友和藏書這些地兒都得要頂好的舒服。
雖說小院子坐落在老北京胡同中,佈局卻和四合院毫不相干。
△ 改造前房屋佈局
這個院子早已被之前的主人改的面目全非,只留下了一明兩暗的北房還是傳統結構。
院外兩個連著的坡屋頂山牆是之前的主人改的,好像要做中國傳統勾連搭結構但又做得不合規範。
院外兩個屋頂,院裡只有一間屋子,這個外立面就是個擺設,又不符合傳統又沒有什麼實用價值。
院子只有100㎡,還是一個直角梯形,南側牆是一個向內偏的斜邊,根本沒有辦法放入一個四合院。
既要滿足屋主的生活需求,又要傳統院落的風格,還要不破壞傳統建築和城市肌理,設計師詢問古建專家後決定使用元代的“工字型”佈局。
保留北房,並在南邊加入一個倒T字建築,連廊讓院子裂開,分出了一前一後兩進院,建築也分出了一動一靜兩間房和一個可以聊天議事的過廊。
除此之外,南邊新房利用限高規範,在屋頂做了觀景平臺,讓主人可以登高望景,打破平房無陽臺的限制。
#02
門口就得改
迎接歸家人的大門要溫馨
規劃好了佈局,首先要規整的就是院子不倫不類的外牆,兩座山牆本身就有很多問題,更重要的是它們壓在本來就矮小的如意門上,像門口站了兩個孔武有力的保安,把人拒之門外。
將南側假屋頂拆掉,如意門換上淺色老榆木,再用淺灰的水刷石做傳統西洋門樓的門框,搭配門前左右的兩個傳統門墩。
新的外牆,透過更加細長的深色青磚、淺灰色的水刷石門樓和不加修飾的老榆木門板,在保留傳統同時,又讓大門多出了迎接歸家人的溫暖感受。
#03
傳統建築北房
同一黑色的不同感受
推門進入外院,從正對的玻璃房茶室可以隱約看到對面的內院,空間通透首先可以讓人感到寬敞,其次就是有傳統院落的層次。沿著草地上的青石板,右轉進入客廳。
客廳是院子經歷史後唯一保留下來的傳統建築,設計師將中國傳統的木結構全部漏出來,提升空間的古樸色彩。天花板上安置兩排天窗,解決困擾衚衕平房已久的採光問題。
進門右側一面的黑色煙燻橡木書架牆,既能放書又能放鞋,還能放入中央空調。
黑色書架上收藏屋主的藏書和陶罐,顏色豐富又能形成對比,光照下讓木紋若隱若現,很有設計細節。休閒沙發的大塊黑色,讓空間材質豐富同時保持配色的完整。
再往裡面走是開放式廚房。
牆面煙燻橡木茶壺架和對面的書架呼應,背面的銀箔材質又讓北房的兩面牆相似卻又不單調。
銀箔的反光可以達到展櫃效果,如果使用金屬板不僅會晃眼,還會和傳統的古建築有格格不入的反差。
隨著每天太陽的東昇西落,銀箔也會反射出不同的色彩。檯面使用同樣反光的黑色大理石,同樣增強了質感的豐富性。
△ 銀箔材質反光顏色變化
黑色巖板打造的島臺上安置了水池和灶臺,隱藏式的油煙機讓島臺保持最大的簡約。
帶有紋理的木材、啞光的皮革、亮面的大理石和規整有力的巖板,整個北房就是用不同材質的黑色給人似曾相識又初次相見的感受。
而且在細節上設計師也強調了這個顏色,踢腳、射燈軌道、把手和門窗框也用黑色達到統一。
#04
加建一個倒T字
玻璃連廊顯層次,屋頂平臺看風景
南北房之間的連廊滿足主人的待客需求,三面玻璃讓人在這裡可以將前院、後院收眼底,抬頭還能看見天上的雲和飛舞的鳥雀。
廚房、客廳和餐區之間沒有門和牆的阻攔,動線簡單帶來使用方便。
4米長的條案完全滿足屋主會客談天、飲茶吃飯等多種用途。閒時,屋主在這個桌子上練字作畫,也不會因為光線昏暗影響心情。
走廊盡頭就是屋主的私人空間,一邊是衛生間,另一邊是臥室。
衛生間做了乾溼分離,雙臺盆讓夫妻倆人擁有各自的空間,木質檯面可以隨手收納洗漱用品。
淋浴間面對著前院,增加了採光。牆面通長的壁龕,用來放置洗浴用品。
為了保持色彩的一致,衛生間用了暖色的大理石瓷磚。淋浴間地面做了防滑切線處理。
臥室的床是一個抬起的榻榻米,床下和側牆都可以用來儲物。
臥室窗外是後院。後院中間的水泥石臺上種了一棵楓樹,隨著楓葉的顏色變化,在家中既可以感受四季的色彩。
水泥臺盆地四周鋪滿黑色石子,有傳統山水園林的意境。
夜晚,燈帶勾出院子的邊際,四周點綴的壁燈讓氛圍更加安逸。
新建後的南屋屋頂被做成一處觀景平臺,主人可以在這裡體驗《邪不壓正》中老北京屋頂錯落的城市景觀。
#05
開放很重要
室內室外無界限,全屋配色要統一
在這座小院中開放是最重要的東西,開放不僅讓緊促的小院得到良好的採光,還可以打通各個功能區。
整個空間沒有硬隔斷,室內外全部用玻璃隔開,有四個門可以連線內外,隨意穿梭,室內外界限模糊。
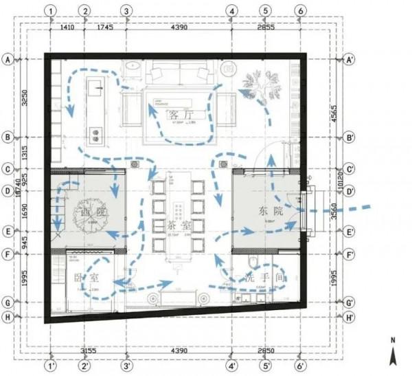
△ 空間動線圖
在北方大面積採用玻璃就會遇到保溫隔熱難的問題。設計師採用了隔溫效果好的玻璃,搭配室內的地暖和中央空調進行保溫。
同時在玻璃房的上方,設定了一個可遙控的遮光簾,在夏天隨時阻隔炎炎的烈日。
室內功能區域也沒有很強的分割,室內全部用同一種木地板鋪裝,就是為了達到統一的效果。
臥室和衛生間的門使用頂天的平開門,開啟時候會有一種屏風的感受,弱化門和牆的概念,同時也保證了私密性。
設計師說:“設計現代四合院依然要用傳統的方式,青石、青磚、灰瓦、老榆木等傳統材料和現代設計的搭配,才能讓沉寂的傳統建築煥發新生。”
文章轉自:在家
版權歸原作者所有






























 
			 
			 
			 
			 
			 
			 
			 
			 
			 
			 
			 
			 
			 
			 
			 
			 
			