粉·末
保利天悅
✕
Powder
Design concept
設計理念
整套設計圍繞粉色、金色、白色展開,金
色具有高貴成熟的氣質代表著女主人果敢
的性格;溫柔浪漫的粉色折射出女主人內
心的柔軟;白色與之形成強烈對比;而輕奢
風格是女主人追求高品質生活最好的詮釋。
Color oriengtation
色彩分析
請鎖屏橫向預覽
客廳
Livingroom
客廳採用無主燈的設計,整個空間利用顏色及材質做成大塊面區分;簡潔的配色呈現出空間的恬靜,金屬的質感又凸顯了低調的奢華,同時散發出高貴典雅的氣質。
餐廳
Restaurant
設計師將原有的生活陽臺打通,擴大了廚房及餐廳,使空間視野更開闊,光線也更充足。中廚做成了隱藏式推拉門,平時不做飯的時候就可以將門推往一側,解放整個空間,並在餐廳旁增設了西廚櫃,美觀與儲物功能兼具。
餐廳是全屋的亮點,玫瑰金的餐椅與餐桌上方波光粼粼的吊飾,將生活美學演繹得淋漓盡致。
主臥
Master bedroom
柔軟的粉色大床賦予了空間浪漫與詩意,床頭的圓形燈為空間注入滿滿的儀式感,金色的背景牆含蓄展現出空間尊貴的格調,陽光的介入,強化了通透明亮的視覺效果,讓空間變得如夢似幻,頗具意境。
設計師將洗手間的牆做成霧化玻璃的形式,延續空間通透性的同時保持了隱私性,霧面的衣帽間也與之呼應,用於儲存衣物的同時也與空間形成對話。
次臥
Second recumbent
整個空間以極簡的配色突出整體的溫馨與舒適,在區域性添置圓形吊燈作為點綴,藏在細節裡的藝術之美也被激發,陽光溫柔地散落;交織出一個安靜溫暖的休憩之所。
女兒房
Daughter's room
女兒房以粉色為基調,打造出一個少女心滿滿的臥室,隨處可見的玩偶是孩子的夥伴,也是童真的象徵。
書房
Study
書房採用大面積的玻璃櫃作為背景牆,每一格都井然有序,彰顯了主人的品位。一桌一椅一綠植,在此看書寫字都分外愜意與舒適。
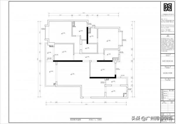
改造前
Before transformation
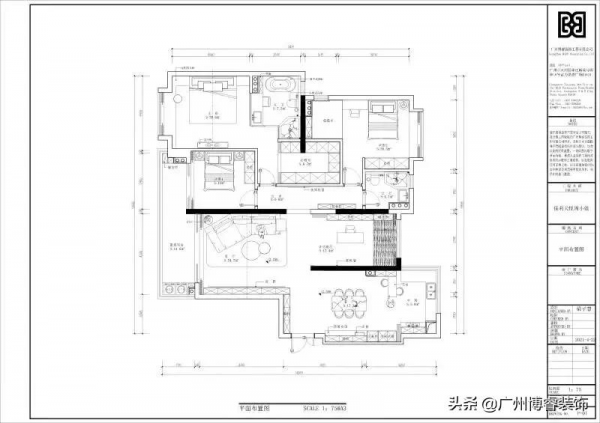
改造後
After transformation
最佳化方案
Optimization scheme
1.入戶將原有鞋櫃和客廳電視櫃做成一體,使兩個空間有個連貫及延伸
2.客廳採用無主燈設計,整個空間利用顏色及材質做成大塊面區分
3.將原有生活陽臺打通,擴大了廚房及餐廳,使空間視野更開闊
4.書房將原有臥室開啟,做成一個多功能房,兼備休閒辦公、客房功能,南北直接對流
專案詳情
Project details
專案名稱 | 粉·末
專案地址 | 保利天悅
專案面積 | 200m²
主案設計 | 樑子慧
設計風格 | 輕奢
