擁有一套屬於自己的漂亮新房,過上一家一日三餐的舒心生活,家不需要多大,但裝成自己喜歡的風格,配上自己喜愛的沙發,再養上一隻貓或一隻狗,這是生活在廣州這個大都市裡許多年輕新夫婦奮鬥的小目標!本案業主就是這樣的有清晰目標,對新家的裝修就是好看,顏值為上,驚豔鄰居親朋好友的那種!
專案:深業.江悅灣
風格:現代輕奢
面積:92㎡
戶型:平層
設計施工:華潯·廣州.黃娜
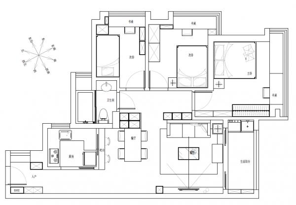
戶型設計
這是套緊湊的小三房,好在戶型本身就很方正,光線和通風都很好兼顧,於是,設計師就著重考慮收納的設計,每一寸空間都要合理利用上,除去房間的衣櫃外,房間的書桌,餐邊櫃,過道的收納櫃都安排上,顏值設計有保障的基礎上,日常生活的便利也得到了保障。
01#客餐廳
客廳的設計就定義了整個家的主基調,灰色的地磚配上天然紋路的大理石電視背景牆,簡潔白色的牆面、吊頂,全屋深棕色的櫃體顏色,這是輕奢風格經典耐看的色系搭配,大小戶型都會適合,再加上細節的設計,比如電視背景上、轉角處的柱體鏤空處理,恰到好處的射燈打出的光線,增加空間層次感,也讓不大的客廳時尚感滿滿,色系的搭配和光線氛圍的運用,點睛之筆的沙發、茶几、主燈、窗簾的選擇,造就了顏值報表的客廳設計!
02#餐廳
餐廳,也是設計師花了很多心思的地方哦,玻璃面板的時尚餐邊櫃的設定,既有了收納功能,又為就餐增加了空間位置,連著長方形餐桌一起,一氣呵成的感覺,最亮點的是那處吧檯,連線著客廳和廚房,留有小窗,方便傳菜,別出新意的用大理石鋪滿牆面,用石板做成薄薄的檯面,輔以過道燈光的照射,遠望去就像是一副高階的牆畫,真的是空間不大,顏值爆表!
03#主臥
主臥有面大大的窗戶,大大的飄窗,設計上,合理的用上定製衣櫃,書桌,轉角處還凹進去的設計了一處書櫃,視覺上的美感是足夠,實用性也非常到位,試想老公在辦公,老婆躺在飄窗上看書玩手機,小小的空間創造了和諧美好的生活場景!
04#兒童房
客戶家是位帥氣的小男孩,小朋友自己挑選了藍色作為房間的色調,兒童房戶型方正,也是同樣利用定製櫃,合理的設計了衣櫃和轉角的書櫃,還有落地窗邊的大書桌,看到效果圖,小朋友表示很喜歡哦!
05#書房
第三間房的面積不大,就設計成書房兼臨時客房,再小的面積,也沒有忘記要美觀和收納兼顧的設計理念,有衣櫃,有書櫃,還有大大的書桌,放置1.2米寬的一張小床,牆面掛上了個性的掛畫,空間再小,只要用心設計,也是會與眾不同!
什麼樣的設計才是好的設計,這是我們家裝行業永遠在思考的問題,本案就是小戶型好設計的代表,空間是有限的,生活需要的空間功能是很多的,引導客戶做好取捨就會有滿意的結果,視覺設計師的美感,卻是沒有上限的可能,在有限的預算和空間裡,設計出顏值爆表的效果,給予客戶滿滿的歡喜,讓每一個小家都驚豔於世,是我們設計師應該追求的小目標哦!
本案設計師
黃娜
擅長風格:現代、簡約、中式、歐式
代表作品:招商雍景灣、青龍坊、新世界雲逸、西關海
