實用性和輕奢達到完美平衡的165平米戶型是什麼體驗呢?出於這個好奇心,今天我們就來欣賞一下這款戶型。
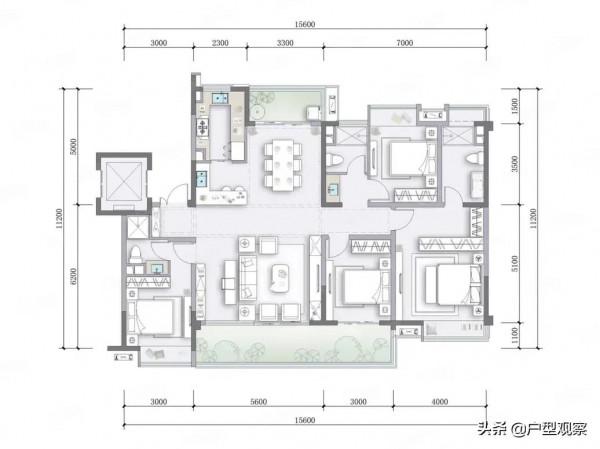
電梯採用雙向開門設計,有獨立門廳的效果,透過子母門入戶是一個迷你的玄關,旁邊可以做一排通頂衣帽架,非常便捷,可以儲存臨時的物品。玄關的半封閉設計,也讓尊貴儀式感緩緩體現。
曲徑通幽直達活動廳,沙發廳南向開間達到5.6m,外包圍的通體陽臺開間接近9米,非常愜意。雙面採光也可以保證充足的陽光和清風沁入心脾。沙發廳和餐廳南北通透,北側也有操作陽臺,中廚、西廚一應俱全。就餐烹飪氛圍達到極致。
入戶附近南向有一個帶獨立衛生間的老人房,南向配有通體的飄窗,可以放些綠植和書本,感受詩意的人生。
休息區有三個臥室。兩個次臥共用北側乾溼分離的明窗衛生間。主臥堪稱豪華,開間達到4m,配有通體的飄窗,中間是步入式的衣帽間,北側有乾溼分離的明窗衛生間,並且配有飄窗。實用性更上一層樓。您感覺這個戶型如何呢?


 
			 
			 
			 
			 
			 
			 
			 
			 
			 
			 
			 
			 
			 
			 
			 
			 
			