品牌:建房說
1、別墅圖紙編號:JF20620
2、主體毛坯參考造價:58-67萬
3、佔地面積:145.17平方米
4、建築面積:529.03平方米
5、開間16.38米,進深11米
6、框架結構,建築高14.75米
全景展示圖
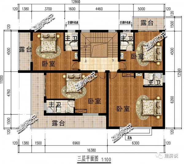
平面佈局圖
一層:客廳、臥室、2個洗手間、廚房、餐廳
二層:4個臥室、4個洗手間、陽臺
三層:4個臥室、4個洗手間、陽臺
四層:布草間、露臺
品牌:建房說
1、別墅圖紙編號:JF20620
2、主體毛坯參考造價:58-67萬
3、佔地面積:145.17平方米
4、建築面積:529.03平方米
5、開間16.38米,進深11米
6、框架結構,建築高14.75米
全景展示圖
平面佈局圖
一層:客廳、臥室、2個洗手間、廚房、餐廳
二層:4個臥室、4個洗手間、陽臺
三層:4個臥室、4個洗手間、陽臺
四層:布草間、露臺
 
			
						 
			
						 
			
						 
			
						 
			
						 
			
						 
			
						 
			
						 
			
						 
			
						 
			
						 
			
						 
			
						 
			
						 
			
						 
			
						 
			
						