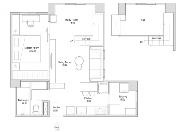
戶型圖
玄 關
木作櫃體替室內做部分遮掩、增添隱私感,使公領域和臥房處與玄關稍作區隔,有隱蔽之效。
客 廳
由於屋主主動提出不需要太多的收納空間,希望以整體的爽朗度來做設計,是故以最少的收束方式來放大視野,是設計最主要的考量點。
其次,搭配灰調軟裝,使物件和天地壁自然相合,予人溫和明亮感。
餐廚區
以輕盈不帶負擔之姿,悄然降臨於單純組構的傢俱軟裝,使全室風格一致、純淨無壓。
臥 室
與主張「這樣就好」的無印良品風相呼應,「在自然裡面,當然沒有印記」的想法被巧妙化用在煥然潔白的室內,平添簡單優雅。
樓 梯
樓梯間不僅被妥善規劃為書櫃及展覽層架,位居最高的梯間下區域更被設為具門片的收納場所,活用場域,也減去設定歸納用空間時的視覺效果過滿情形。
多功能區
夾層下原有一道牆將空間劃為三房,基於採光和劃大量體因素,通透的格局設定方式,敞亮場域的同時,結合夾層,為區塊的用途提供了更多元的選擇;屋主未來若需要將之作為他用,可將未設玻璃的夾層護欄加設霧玻,隔絕區間也不影響光線。
相較於一般將夾層鋪滿的設計方式,為使空間看起來更加寬闊,本案夾層在屋中佔比不高,除了減去可能帶來的壓迫感,也兼具小遊樂區以及未來彈性劃設區域用的兩種用途。
