大家好,我是一休,北京地產行業的一名深耕者,擅長多盤硬槓+深度測評+硬核爆料,堅持原創輸出,只想說點實話。
本文首發於【一休侃房】公眾號。
還是老樣子,直接上乾貨!一休將透過八個維度,來測評中海京叄號院;直擊問題,靈魂拷問!
1
地鐵交通,咋樣?
河西無地鐵,連規劃的謠言都沒有,就是這麼枯燥。
中海京叄號院專案,距離8號線4.2公里,距離亦莊線3.8公里,這還都是直線距離,咱就沒必要細說了吧?
唯一有些盼頭的是有軌電車T1線,從京叄號院走過去倒是挺舒服的距離,但目前使用體驗不是很棒,主要是慢。
再說公路,四周基本算是被南五環、南六環、京臺高速、京滬高速圍合起來,可選主幹路較多。
與亦莊的河東版塊聯絡最密切的兩條主路博興路和博興八路分列樓盤的左右兩側,交通便利。
一休大實話:
前幾天一個粉絲說:沒地鐵倒是無所謂,對中海京叄號院這批業主不會有任何影響,反正也不坐地鐵。
一休表示強烈不贊同,現如今北京達到千萬級的房源不在少數,業主們不至於這麼傲嬌吧?
就我身邊接觸的朋友和客戶來說,住著一千多萬的房子,擠地鐵的情況其實也並不少見,反正沒有那種敢說從來不坐地鐵的。
況且,您甭管我坐不坐地鐵,這和有沒有可是兩碼事。
有些收了收黑錢的小軟文,說河西的博興八路堪比河東榮華大道。what,這都行?
榮華大道那是國際形象大道,亦莊的最優先順序,最精華的一條路,北京的門臉級大道之一。
反觀博興八路是主路不假,街道兩側環境屬實也還可以,但不至於這麼誇張吧?
2
區域地段,咋樣?
看上圖,如你所見,中海京叄號院的位置在亦莊商務區和高階產業區的黃金交匯點。
高階產業區就是以北京賓士為首的這一片,實際上就在樓盤的東側。
所謂河東河西就是以涼水河為界,河東是商務辦公區,十幾年前也曾經叫做亦莊CBD。
河西是生活服務生態休閒配套區,高階居住。
亦莊這兩年的GDP增速領跑北京,企業落戶的標準越來越高,高新技術產業蓬勃發展,世界500強扎堆。因此整體的人群結構相比北京其他版塊來說更加優質,圈層調性較高。
而且和其他版塊不同,亦莊是先有產業再有住宅,產業結構合理,需求端是客觀存在的,泡沫和水分都是很小的。而且亦莊的建設很多都是先有系統規劃再逐步落地的這種,多少有點高屋建瓴的意思。
有了人流量以後,可以有各種配套,慢慢都會來。
但是產業這玩意還真不是你想引進來就來的,一句話:亦莊是真正有產業基礎的,一點不空不浮誇。
一休大實話:
亦莊在北京的東南側,國貿CBD在東側,兩者其實距離很近,互動頻繁聯動多元。亦莊有國際化的風采,但是格子襯衫和摩登女郎也都能共存。
尤其是亦莊新城內,北京地鐵17號線的建設,更是讓兩者聯絡更緊密了,好幾個樓盤都是喊出口號:7站/8站到國貿。
但講真,國貿的白領剛需購房群體大多在亦莊路東解決了需求,那邊距離地鐵近能通勤,最最重要的是那邊房子更便宜一點,這幫人不圖學區,兜裡預算優先,奔著學區的基本還是河西居多。
環線論依然是逃不過去的坎,中海京叄號院確實在5環和6環之間。
但現如今北京市場真的不能用環線論來一棒子打死,那真沒意思了啊。
說組資料吧,東南三環的方莊,現在房價5萬左右,這還是老富人區。東南四環,欠發達地段,又荒又破,肖村小紅門十八里店那個位置,住宅其實都不多,單價四萬多。
而東南五環的亦莊核心板塊,也基本保持在5萬6萬的水平,甚至紫禁壹號院、中海墅、楓丹壹號、亦莊金茂府、中信新城、棠頌別墅、贏海莊園,總價破千萬的也只是平均水平。
亦莊河西附近其實一直都是豪宅改善聚集,門檻並不低。最近兩年限競房確實拉低了均價,但這只是臨時過渡產物。
3
價格,值嗎?
有必要說一下這塊地皮的前世今生,去年8月,中海拿下的不限價地塊。
代價呢?
79億,總價地王,樓面價4萬左右,與華潤搏殺了66輪,溢價率23.44%。
講真,當時一休也沒想到中海最後會出京叄號院這樣一個產品。
不是剛需,不是改善,直接上豪宅。
沒有對比就沒有傷害,咱們得拉出來幾個參照系競品。
附近的限競房河西六君子新房基本都是在5W+這個水準。
二手房方面,周圍的回遷房大概4萬左右。
中海京叄號院預計單價區間6.8萬-7.4萬,直接把價格相比的話,確實要高出一塊。
而且入手門檻方面,京叄號院更是高了太多,預計是1200W起的,瞬間又沒了可比性。
難道就這樣收場了?
別急,且聽一休慢慢分析。
為啥中海新盤的起步價這麼傲嬌,有什麼底氣?
答:因為定位是頂豪,且周圍高階產品也不便宜,開發商也是做過調研的,尤其是中海這種常年銷冠的開發商。
次新房的金茂府、金茂逸墅、金茂悅等二手盤接近6.5萬的起價了。
金茂府的部分好房源都超過了8萬。對,你沒看錯,這就是東南五環的亦莊。
而且金茂的這三個盤中,只有旗艦產品金茂府能與中海的藏峰系抗衡一下。
金茂逸墅其實整體品質類似金茂府,但依然是有點虛胖,最小戶型面積段有點打臉啊,入門戶型是75平米,完全沒有豪宅的做派和那種拒人之外的價格。露怯太嚴重,沒辦法和京叄號院比。
一休大實話:
單就入門168㎡這事來說,差不多就可以稱之為頂級豪宅產品了。
況且保守來說,這是北京唯二的中海最高階的藏峰系旗艦樓盤。考慮到產品迭代,甚至可以說是中海在北京最高階的專案,沒之一。
所以,樓盤在產品端的定位無須懷疑,實打實的頂豪產品。既如此,就得和分鐘寺三專案相比才對,那是2020年北京的頂豪們。
相比分鐘寺的世茂北京天譽、東叄金茂府、合生縵雲,別看地段來說這仨是三環四環之間,但其實周圍的成熟程度真不如京叄號院呢,十號線分鐘寺出來真是荒的一批啊!
旁邊的十里河,4站就到國貿了,也同樣荒涼似農村。是不是很魔幻?
可這就是現實,北京發展不均衡典型例子。
就分鐘寺的學區來說,只有首師大附撐場面,亦莊河西完全不虛啊,人大附十一學校北京二中,也都是狠角色,而且全都是12年制的。
總結來說,河西質量上沒差,數量上還更多。分鐘寺要賣11萬左右,比京叄號院的7.2萬還是高了一截的。
再說宋家莊的北京金茂府二期,起步又是75兩居。。。
熟悉亦莊的朋友肯定知道,亦莊核心區的頂豪產品國銳金嵿,8年前的專案了,單價8萬,起步價格2000萬,就在大族廣場邊上,地標式建築,可找一休要詳細資料,買房多對比還是要的。中海的朋友告訴我,當時定價時候確實也參考了這個盤。
4
生活配套,方便嗎?
馬路之隔,50米就到亦莊實驗中學(十一學校分校)的東門。小區斜對角,依然是馬路之隔就能到達北京二中亦莊學校。
步行到亦莊公立幼兒園的天花板亦莊五幼和亦莊實驗小學就是600米的事情,開車都顯得太多餘了。
到人大附1.5km,小區還會配建一個幼兒園。
兩大國際學校中芯和耀華,開車3-5分鐘妥妥的。
依然是馬路之隔,河西最大的商業專案龍湖天街就在隔壁,現有小商場亦生活就在樓盤北側450米。
700米內倆公園,都是帶球場的那種,每天遛彎綽綽有餘,週末去南海子就是幾腳油門的事兒。
坐落在涼水河畔的同仁醫院南院區,開車5分鐘左右,這是南邊最大的綜合性三甲醫院了,基本算是一站式解決全部需求。而且同仁可不僅僅是眼科頂尖,綜合實力北京top8左右。同仁旁邊還有愛育華婦兒醫院三級專科,以及一個腫瘤醫院。
一休大實話:
一休認為:河西版塊最大最大的優勢,就是教育配套。
實屬南城最佳,放眼北京也是極為難得的。
不僅公立學校優勢大,私立學校優勢也大。畢竟開發區早就有這個需求,外籍高管不算少了。
試問西城比海淀強在哪呢?
那必須是學校均衡性啊,多校劃片影響相對小。
在亦莊河西,即使上不了最心儀的那個學校,其他的備選也都很強,無死角,可以稱其為“學區房原始股”,而且有西城那味啊。
河西的居住環境本來就好,加上小區的高門檻,圈層均一性很好,千金買房萬金買鄰。
坦誠的講,早些年的豪宅大多配備了保障性住房,太尷尬了,矛盾不斷,比如崑崙域和中國璽的時期。而京叄號院就沒這個問題,乾淨純粹。
地鐵的缺失,某種意義上其實有一點好處。租房的少了,入門級剛需少了,地鐵通勤族少了。
社群居民以家庭居多,穩定落戶的為主,大多對教育和生活品質有追求,這樣的環境不也挺香嗎?
5
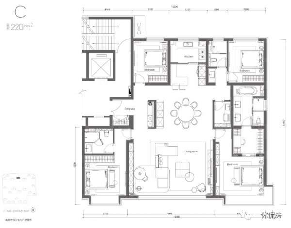
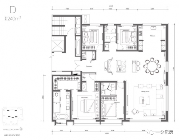
戶型,好嗎?
四個戶型,3+1準四居起步。
全部兩梯兩戶,一棟一單元,戶戶邊戶270°採光,全南北通透,這幾點真的很難得了。
168的戶型,面寬14.4米,進深9米。即便是入門戶型,也有6.6米大寬廳+60平米的活動區域。
主臥配備了獨立衣帽間,雙洗手池,主衛豪華五件套。
200㎡的純四居,南向面寬15.6米。LDK餐廚客一體化設計,U形大廚房,三衛,雙套房。
220㎡面寬15.9米,戶型方正,玄關講究。
240㎡的戶型,主衛也朝南,很是奢侈。
10個觀景窗三面環視,開發商表示高層可以看到中國尊、南海子、新機場。前兩個我倒是信,新機場我感覺是吹。
除了以上四種戶型以外,還有一些penthouse,更多私密資料私信找我,有驚喜。
一休大實話:
全部國際頂級品牌精裝,據說是1-1.2萬每平米的標準。
南向凸窗全附送,墅質巨廳。收納空間到位,有拆解圖,找我要。
3.15米的挑高著實不錯,但最值得一提的還得是採光和觀景面,可能做到了這兩年之最。全四面寬,大平層。
神戶型締造者中海,再次走向登峰造極的路上。真是累死自己,逼死同行啊。
6
樓盤設計,合理嗎?
21棟樓,均為21-26的高層建築,總計998戶。
容積率2.5,綠化率35%,預計2023年底交房。
大落地玻璃+金屬質感合金幕牆的組合。現代摩登,稜角分明,藝術感濃郁。
專案室內裝修風格參考的是華爾道夫酒店,就是《聞香識女人》景點探戈橋段那部分。
3000㎡的會所,其實很不一般,現在的豪宅都在減配,甚至很多盤沒會所,而且京叄號院是入戶雙層挑高大堂。
一休大實話:
中海拿這塊地的時候,周圍限競房全部歡呼雀躍,有一種“解套”的感覺,畢竟區域多了一個天花板。許多客戶驚呼,甚至一些業內人士也都無法理解,但中海這種超級穩健的開發商,怎會貿然下注?
中海再次以卓越的產品力亮相,這是其最高階的藏峰系產品,對於市場和客戶拿捏的一如既往的穩,中海不愧為行業引領者。
這次的藏峰系相比第一個盤又進行了一些最佳化,內部迭代還是有的。
第一個藏峰系是什麼專案呢?
豐臺的中海甲叄號院,那是打響了2020年北京豪宅迴歸第一槍的專案。在沒有樣板間的情況下,只靠圖紙就賣了20億。
7
五年後回看,價格會怎麼樣?
河西區域現在缺新盤嗎?不缺
但是放眼亦莊,缺純商品房,缺頂豪產品。
供需關係還是緊俏的,亦莊已經發展了20年了,優質土地殆盡,需求端的持續上升,一休是比較看好的。
不得不承認,亦莊金茂府相對還是把市場給稀釋了。但一休認為中旅亦府170㎡的戶型,雖然總價低了,但是客群還是有所區別的,影響不會很大。
5年內,起碼有兩波利好是會兌現的。
首先,學校逐步招生,成績一旦還不錯,那連帶著河西住宅整體上揚是必然的,這是學區房的基本邏輯。很多說法中,河西貴為南城第一學區,那成績自然不會差。
其次是商業的完備,也會給區域帶來實際利好。之前的河西商業狀況其實還是匱乏的,購物不是太方便。
總結來說,一休認為5年為期,礙於大環境,京叄號院起碼保持在平均水平線以上。假設10年為期,那妥妥的會躥升不少。
8
還有啥毛病?
優點咱也誇了不少,毛病咱也還是要說,希望開發商朋友們諒解。
先說學校啊,亦莊實驗目前回遷戶子女挺多的,而且是大興區政府也參與了,高中是面向大興拔尖錄取的,因此不見得一定能上。人大附劃片的話,確實是有這種可能性的,但是可能相比京華雅郡和中旅亦府的機率要低一點,畢竟那倆盤直接就挨著。
車位配比1.2,放在其他樓盤算是正常的。但對於河西本專案來說,一休認為偏少,畢竟這是豪宅,家裡都是一部車起步。況且河西本身就是有車家庭佔比很高,車位相對緊張,建議業主們早點買車位。
既然是高層,那得房率就不可能太高,這和開發商水平關係不是特大。京叄號院得房率在76%-78%,還算不錯,但是和洋房沒辦法比。
沒陽臺,這也算是一個遺憾。追求了外觀的統一和美觀,在實用性方面就得打點折扣。
最後就是地段了,其實還不錯,但對於老眼光和堅持環線論的朋友們思想的轉變太困難。尤其是外地朋友,回老家吹牛逼的資本無形降低了,沒有“我買在三環”殺傷力大。關鍵還是要看您是圖裡子還是面子,具體分析建議,還是私信問我吧,附贈你們房源採光分析!
終極問題,我會買嗎?
[666]如果我在亦莊多年,對河西比較喜愛,預算夠。京叄號院可入,沒毛病。
[666]如果我在國貿工作,對居住品質不是特別在意,接受二手房,對學區也較為佛系。那您備選方案其實很多,不必在這湊熱鬧。很適合做一個朝陽群眾,望京或者青年路版塊都值得考慮。
[666]如果我兩口子都在亦莊工作,之前一直住老房子,有錢了就像想改善一下,對學區無所謂,升值不看重。那您也可以對比一下楓丹壹號、紫禁壹號院、棠頌別墅。
[666]如果我預算沒頭,對教育問題極為看重。地鐵有沒有無所謂,工作位置也不用考慮,不上班的那種,一心為孩子學業,那您還是去海淀萬柳和中關村看看吧。
[666]如果我是企業高管,只考慮亦莊方圓10公里以內的居住位置,對學區也有講究,不考慮附近限競房,買東西很在意品牌,那中海京叄號院簡直太適合了。
還是那句話:買房是大事,每家情況不同,同一個樓盤適配性也差異很大。一休不想隨便敷衍兩句,不做批次化生產,想深入聊聊的,可加關注後點私信提問。
