北京經濟技術開發區開發建設局9月15日釋出,亦城亦禧家園共有產權住房專案現開放申購登記,登記時間為2021年9月16日10:00至2021年10月7日17:00。
亦城亦禧家園專案位於北京經濟技術開發區河西區,東至博興八路,南至宏一路,西至宏農路與X90S1地塊,北至興海路。
專案規劃總建築面積約139991.35平方米,其中共有產權住房專案地上住宅建築面積約86971.4平方米,容積率2.0。專案總套數994套,本次配售房源406套(以選房實際資料為準),均為單套建築面積約87-89平方米的二居室,銷售均價30000元/平方米,全裝修交房。
二、申購條件
(一)申請購買北京經濟技術開發區共有產權住房的家庭,應符合以下條件:
1.申請人應具有完全民事行為能力,申請家庭成員包括夫妻雙方及未成年子女。單身家庭申請購買的,申請人應當年滿30週歲。
2.申請家庭應符合本市住房限購條件且家庭成員在本市均無住房。一個家庭只能購買一套共有產權住房。
3.非京籍申請人在京連續繳納社保或個稅滿60個月。
4.申請人應在北京經濟技術開發區內就業。
(二)申請家庭符合上述規定條件,但有以下情形之一的,不得申請購買共有產權住房:
1.申請家庭已簽訂住房購買合同或徵收(拆遷)安置房補償協議的。
2.申請家庭在本市有住房轉出記錄的。
3.有住房家庭夫妻離異後單獨提出申請,申請時點距離婚年限不滿三年的。
4.申請家庭有違法建設行為,申請時未將違法建築物、構築物或設施等拆除的。
申請家庭承租公共租賃住房、公有住房(含直管和自管公房等)後又購買共有產權住房的,應在購房合同網籤前書面承諾騰退所租住房[注:已承租人才公租房(含白領公寓)的住戶,需預售合同網籤前與產權單位簽訂書面人才公租房退房承諾書後,方可進行網籤工作]。
三、銷售物件
本專案銷售物件為具備本市共有產權住房購買資格的北京經濟技術開發區內就業人員,分為以下五類:
1.為北京經濟技術開發區產業發展提供行政服務的管理機構在職在編且截止2021年8月試用期滿的職工。
2.為北京經濟技術開發區提供市政能源保障的國有公司在職在編且截止2021年8月試用期滿的職工。
3.北京經濟技術開發區內公辦非營利性醫院在職且截止2021年8月試用期滿的醫護人員,北京經濟技術開發區內公辦非營利性學校在職且截止2021年8月試用期滿的教師。
第1-3類認定標準:截止2021年8月,申請人在本單位試用期滿的工作證明或勞動合同。
4.北京經濟技術開發區組織人事部認定的亦城頂尖人才、亦城領軍人才、亦城傑出人才、亦城優秀人才。
第4類認定標準:以北京經濟技術開發區組織人事部認定檔案為準。
5.其他在北京經濟技術開發區內就業的申請家庭,包括經開區225平方公里範圍內,個人社保權益已劃入經開區的就業人員。
第5類認定標準:申請人所在企業在北京經濟技術開發區進行工商註冊或納稅。申請人2021年8月在北京市個人社保權益記錄中所載明的繳費區為北京經濟技術開發區。
以上五類申購家庭不分組別,統一進行搖號。
四、共有份額比例確定
根據《北京市共有產權住房管理暫行辦法》(京建法〔2017〕16號)的規定,該專案產權份額的確定情況如下:
(一)共有份額比例確定原則
該專案的房屋產權由購房人與政府按份共有,確定原則按照《北京市共有產權住房管理暫行辦法》(京建法〔2017〕16號)第十八、十九條執行,其中政府產權份額由北京博大新元房地產開發有限公司持有。
(二)共有份額比例評估及確定結果
該專案申購前已經委託房地產評估機構完成對購房人與政府共有份額比例的評估,根據《北京市共有產權住房管理暫行辦法》(京建法〔2017〕16號)及評估報告,該專案單套住房的購房人產權份額比例為60%,北京博大新元房地產開發有限公司(政府產權份額代持機構)持有剩餘40%份額。
舉例:若購房家庭選擇了一套建築面積為88平方米,銷售價格為30000元/平方米的房屋,則該家庭需支付的購房款為88平方米×30000元/平方米=2640000元,該家庭所佔該套房屋產權份額比例為60%。
五、申請流程
(一)申請人員在政府網上申購公告發布時間起,登入北京市住房和城鄉建設委員會網站http://gycq.zjw.beijing.gov.cn共有產權住房申購板塊進行線上申購。
(二)第1-4類申請人在完成線上申請後,由申請人登記成功後將相關材料於2021年9月16日至2021年10月10日9:00-17:00期間報送至開發區共有產權住房接待中心(北京經濟技術開發區部落格雅苑小區西側9號商業樓)。
(三)有下列情形之一的,不納入搖號範圍
1.第1-4類申請人未在2021年10月10日17:00前向開發區共有產權住房接待中心申報遞交資料或資料不齊的;
2.申報資料有誤或與網申資訊不一致的。
(四)第1-3類申請人員需提交以下材料
1.申請人身份證影印件加蓋公章;
2.申請人在本單位工作證明(原件加蓋公章)或勞動合同(影印件加蓋公章),需體現截止2021年8月,申請人在本單位試用期滿的工作證明或勞動合同;
(五)第4類申請人員需提交以下材料
1.申請人身份證影印件加蓋公章;
2.北京經濟技術開發區組織人事部提供的人才認定檔案。
六、資格稽核
(一)網上申購結束後,市住房城鄉建設委會同公安、地稅、人力社保、民政、不動產登記等部門透過本市共有產權住房資格稽核系統對申請家庭的購房資格進行稽核;北京經濟技術開發區社會保險保障中心負責對申請人社會保險繳納情況進行稽核;北京經濟技術開發區行政審批局、稅務局對申請人員所在企業工商註冊、納稅等情況進行稽核;北京經濟技術開發區組織人事部對申請人員為亦城頂尖人才、亦城領軍人才、亦城傑出人才、亦城優秀人才和為北京經濟技術開發區產業發展提供行政服務的管理機構的員工的情況進行稽核;北京經濟技術開發區城市執行局對申請人員為市政能源保障公司員工的情況進行稽核;北京經濟技術開發區社會事業局對申請人員為醫院醫護人員和學校教師的情況進行稽核。
經稽核,申請家庭資訊不符合本專案申購條件或與承諾不符的,不納入搖號範圍。
(二)稽核工作結束後,稽核結果將在北京經濟技術開發區官方網站進行公示。如經稽核,申購家庭資訊不符合條件或申請家庭因填報家庭資訊與實際家庭資訊不一致而未稽核透過的,不得參與搖號、選房。
(三)對稽核結果有異議的申購家庭,可在稽核結果公告規定的時間內,向開發區共有產權住房接待中心遞交資料申請複核,因個人原因網申資訊填報錯誤導致稽核未透過的不予複核。
(四)在申請家庭選房後,正式簽約前,開發企業將再次組織對選房家庭進行購房資格稽核,凡不符合要求的家庭,不得簽約,取消本專案購買資格。
七、銷售監管
(一)為確保共有產權住房銷售工作公開、公平、公正,共有產權住房搖號、選房過程由公證機關全程公證。北京經濟技術開發區開發建設局將對銷售工作全程進行監管。
(二)申購家庭應在申購階段如實填寫家庭資訊,並據實承諾符合本次申購相關條件。選房前提交的紙質材料應與網申家庭資訊保持一致。對透過隱瞞家庭住房狀況、偽造相關證明等方式,弄虛作假,騙購共有產權住房的家庭,一經查實,嚴格按照《北京市共有產權住房管理暫行辦法》取消其資格,禁止其十年內再次申請本市各類保障性和政策性住房;由開發企業與其解除合同、並由購房家庭承擔相應的違約責任和法律責任。
(三)對有關單位和開發企業工作人員在共有產權住房資格申請、稽核、公示、搖號、銷售、退出等過程中,翫忽職守、濫用職權、徇私舞弊的,依法追究行政責任;構成犯罪的,移交司法機關依法追究刑事責任。
八、需要說明的問題
(一)根據北京市政府常務會議審議透過的《關於加快發展裝配式建築的實施意見》要求,本專案採用裝配式建築。
(二)根據國家相關政策及本專案設計方案稽核意見要求,本專案採用開放式街區設計。
(三)申請人及家庭全體共同申請人名下有集體土地上合法住房又購買共有產權住房的,如涉及集體土地上房屋拆遷,在補償安置時,不得選取房屋安置補償方式,或將已購共有產權住房予以騰退後再選取房屋安置補償方式。
(四)申請家庭放棄選定住房或選定住房後未簽訂購房合同,累計兩次及以上的,3年內不得再次申購共有產權住房。
(五)政府份額代持機構(出賣方)為北京博大新元房地產開發有限公司。
(六)購房人取得的房屋產權性質為:“共有產權住房”,房屋再上市等後續管理按照共有產權住房相關規定執行,轉讓物件應為其他符合共有產權住房購買條件的家庭,且申請人在北京經濟技術開發區內就業。
(七)本專案支援公積金貸款、商業貸款、組合貸。
(八)亦城亦禧家園專案房源、戶型及合同等資訊由北京博大新元房地產開發有限公司提供,僅供參考。
(九)本公告由北京經濟技術開發區開發建設局負責解釋。
專案《北京市共有產權住房預售合同》已在網上公示。合同連結:https://pan.baidu.com/s/1FzAbD7gBCATPAMlAygCmIw提取碼:4tge,如對預售合同有修改意見,請於2021年10月7日17:00前反饋至[email protected]
網申地址:http://gycq.zjw.beijing.gov.cn
-5778229957782345(早9:00—晚17:00)
監督電話:010-6788018767888929(早9:00—晚17:00)
北京經濟技術開發區開發建設局
2021年9月15日
亦城亦禧家園共有產權住房專案概況
亦城亦禧家園專案位於北京經濟技術開發區河西區,東至博興八路,南至宏一路,西至宏農路與X90S1地塊,北至興海路。
專案規劃總建築面積約139991.35平方米,其中共有產權住房專案地上住宅建築面積約86971.4平方米,容積率2.0。專案總套數994套,均為單套建築面積約87-89平方米的二居室,銷售均價30000元/平方米,全裝修交房。
(一)交通路網
軌道交通:亦莊地鐵線榮昌東街站,亦莊地鐵線榮京東街站。
公交路線:興31路、興59路金茂悅南區站。
(二)周邊配套
醫院:首都醫科大學附屬北京同仁醫院,大興區中西醫結合醫院,北京中醫藥大學東方醫院(南區)。
商場:龍湖天街(在建)、大族廣場、亦莊創意生活廣場,城鄉世紀廣場、華聯力寶購物中心。
學校:幼兒園:亦莊第五幼兒園、亦莊第二中心幼兒園、東方蒙特梭利幼兒園。小學:亦莊第二中心小學、中芯國際小學、北京亦莊實驗小學。中學:北京亦莊實驗中學、北京二中亦莊學校、人大附中亦莊新城學校。
超市:首航超市,世紀華聯超市,物美超市等。
銀行:中國光大銀行,中國建設銀行,興業銀行,北京市農村商業銀行,中國工商銀行。
公園:南海子公園,亦莊濱河森林公園。
(三)基礎資料
亦城亦禧家園共有產權住房地上住宅建築面積約86971.4平方米,容積率為2.0,綠地率為30%,建築密度為17.77%。
亦城亦禧家園共有產權住宅樓共8棟樓,分別為1號樓、2號樓、3號樓、4號樓、5號樓、6號樓、7號樓、8號樓;單建汽車庫1棟。各住宅樓每單元均為兩部電梯四戶。
1號住宅樓共3個單元,建築層數為地下2層,地上12層,建築高度35.7米,層高為2.9米,地上全部為共有產權住房,144套。地下設腳踏車庫。
2號住宅樓共2個單元。建築層數為地下2層,地上12層,建築高度35.7米,層高為2.9米,地上大部分為共有產權住房,94套,在首層建有物業用房、裝置用房。
3號住宅樓共3個單元。建築層數為地下3層,地上12層,建築高度35.7米,層高為2.9米,地上大部分為共有產權住房,144套;地下設有地下設腳踏車庫、公共配套(圖書館、健身館、咖啡館);屋面層建有裝置用房。
4號住宅樓共2個單元。建築層數為地下3層,地上12層,建築高度35.7米,層高為2.9米,地上全部為共有產權住房,96套。
5號住宅樓共3個單元。建築層數為地下3層,地上11層,建築高度32.8米,層高為2.9米,地上全部為共有產權住房,132套。地下設腳踏車庫。
6號住宅樓共3個單元。建築層數為地下3層,地上12層,建築高度35.7米,層高為2.9米,地上全部為共有產權住房,144套。地下設腳踏車庫。
7號住宅樓共2個單元。建築層數為地下3層,地上12層,建築高度35.7米,層高為2.9米,地上全部為共有產權住房,96套。
8號住宅樓共3個單元。建築層數為地下3層,地上12層,建築高度35.7米,層高為2.9米,地上全部為共有產權住房,144套。
汽車庫,地下三層,區域性地下二層,建築埋深12.65米,層高地下一層3.5米、地下二層3.4、地下三層3.5。裝置用房主要功能為變配電室、鍋爐房、水泵房、固定通訊裝置間等,其餘為汽車庫。
戶型情況:
A戶型(二居室):約89平方米,共93戶,位於1號樓三單元1-12層、2號樓二單元1-12層、3號樓三單元2-12層、4號樓二單元1-12層、5號樓三單元1-11層、6號樓三單元2-12層、7#樓二單元1-12層、8號樓三單元1-12層。
A反戶型(二居室):約89平方米,共93戶,位於1號樓一單元2-12層、2號樓一單元1-12層、3號樓一單元1-12層、4號樓一單元1-12層、5號樓一單元2-11層、6號樓一單元1-12層、7#樓一單元1-12層、8號樓一單元1-12層。
客廳為北向,主臥室為南向,次臥室為北向,衛生間為明衛。外窗材質為斷橋鋁合金,起居室窗洞寬約1.8米,高約1.7米;主臥窗寬約1.8米,高約1.7米;次臥窗洞寬約1.6米,高約1.4米;廚房北側設陽臺,陽臺窗洞寬約0.8米,高約1.4米;衛生間窗洞寬約0.8米,高約1.4米。
A-1戶型(二居室):約89平米,共154戶,位於1號樓一單元、二單元1-12層,2號樓一單元1-12層,3號樓一單元、二單元1-12層,4號樓一單元1-12層,5號樓一單元、二單元1-11層,6號樓一單元、二單元1-12層,7號樓一單元1-12層,8號樓一單元、二單元1-12層。
A-1反戶型(二居室):約89平米,共154戶,位於1號樓二單元、三單元1-12層,2號樓二單元1-12層,3號樓二單元、三單元1-12層,4號樓二單元1-12層,5號樓二單元、三單元1-11層,6號樓二單元、三單元1-12層,7號樓二單元1-12層,8號樓二單元、三單元1-12層。
客廳為北向,主臥室為南向,次臥室為北向,衛生間為暗衛。外窗材質為斷橋鋁合金,起居室窗洞寬約1.8米,高約1.7米;主臥窗寬約1.8米,高約1.7米;次臥窗洞寬約1.6米,高約1.4米;廚房北側設陽臺,陽臺窗洞寬約0.8米,高約1.4米;暗衛無窗。
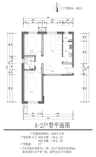
A-2戶型(二居室):約89平米,共2戶,位於3號樓三單元首層,6號樓三單元首層。
A-2反戶型(二居室):約89平米,共2戶,位於1號樓一單元首層,5號樓一單元首層。
客廳為北向,主臥室為南向,次臥室為北向,衛生間為明衛。外窗材質為斷橋鋁合金,起居室窗洞寬約1.8米,高約1.7米;主臥窗洞寬約1.8米,高約1.7米;次臥窗洞寬約1.6米,高約1.4米;廚房北側設陽臺,陽臺窗洞寬約0.8米,高約1.4米;衛生間窗洞寬約0.8米,高約1.2米,窗臺高度約為1.1米。
B戶型(二居室):約87平方米,共248戶,位於1號樓一單元、二單元、三單元1-12層,2號樓一單元1-12層、二單元2-12層,3號樓一單元、二單元、三單元1-12層,4號樓一單元、二單元1-12層,5號樓一單元、二單元、三單元1-12層,6號樓一單元、二單元、三單元1-12層,7號樓一單元、二單元1-12層,8號樓一單元、二單元、三單元1-12層。
B反戶型(二居室):約87平方米,共248戶,位於1號樓一單元、二單元、三單元1-12層,2號樓一單元1-12層、二單元2-12層,3號樓一單元、二單元、三單元1-12層,4號樓一單元、二單元1-12層,5號樓一單元、二單元、三單元1-12層,6號樓一單元、二單元、三單元1-12層,7號樓一單元、二單元1-12層,8號樓一單元、二單元、三單元1-12層。
客廳為南向,主臥室、次臥室為南向,衛生間為暗衛。外窗材質為斷橋鋁合金,客廳外陽臺窗洞寬約1.8米,高約1.7米;主臥窗洞寬約1.8米,高約1.7米;次臥窗洞寬約1.5米,高約1.4米;廚房窗洞寬約0.8米,高約1.4米;衛生間無窗為暗衛;
注:以上資料最終以規劃部門審批結果為準,如有變更開發單位將及時公告。
戶型圖示例
編輯/既明
