@千家萬家來杭十年了,之前一直租房住。18年7月打算買房,本已看上一套89㎡的戶型,但趕上了搖號政策的出臺,結果可想而知。
綜合考量,她選擇了拱宸橋周邊的這套53㎡小戶型。
一方面,這裡周邊配套設施完善;另一方面,這套戶型不僅是他喜歡的全明戶型,而且樓層不高,甚至還解決了停車問題。
從個人生活角度來講,可以說十分方便了。
業主|@千家萬家
面積|53㎡
設計|墨緣裝飾
內容採訪自19樓APP家居網友@千家萬家
部分圖片素材由墨緣裝飾提供
01
戶型改造
/
爆改手槍戶型,兩房變一房
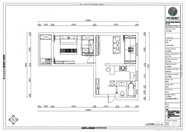
這套房子建造於上世紀80年代,是經典的「手槍型」老戶型。
▲原始戶型圖
入手的時候,這套房子有一南一北兩個臥室,廚房和衛生間都很小,進門看到的是一個很小的客廳兼餐廳,角落裡放了一張餐桌,基本上沒有生活區域,好在戶型方正,是全明的開間。
▲原始戶型缺陷很多
因為平時是一個人生活為主,所以把朝北的臥室改成了客廳,靠窗設計一張榻榻米,用落地窗簾隔開,有客人來的時候兼做客臥。
廚房做成開放式廚房,衛生間也擴大了很多。原來的客廳變成了通道,空間感和採光都好了許多。
小戶型也有小的好處,@千家萬家 的妻子和孩子都在上海,平時一個人做衛生也省了很多事。
02
玄關&衛生間
/
高顏值玄關極致收納,小衛生間塞下大浴缸
進門玄關用兩扇玻璃屏風作了隔檔,既美觀又實用,很好的把空間進行分割。
玄關背後的冰箱既起到了廚房跟衛生間之間空間區隔的作用,又靠著吧檯和廚房,取用非常方便。
玄關櫃具有多重功能,也是方便實用的設計之一。
頂上櫃子裡面是個弱電箱,連線入戶的光纖和網線,邊上是鞋櫃,鏤空的地方,進門可以隨手掛衣服和包包,還能坐著換鞋。
底下原本預留了空間放掃地機的,現在用吸塵器也很方便,所以就沒裝掃地機了。
玄關的右側是衛生間。原有衛生間非常窄,只放得下一個馬桶,寬度擴了大約0.8米後,可以放下一個浴缸。
@千家萬家 是土生土長的揚州人,對泡澡這件事有很深的執念。所以對他來說,泡澡生活中必不可少的一件事。
睡覺之前,撒上薰衣草的浴鹽,泡上一池熱水,可以洗去一天的疲憊,睡得舒服踏實。
03
廚房
/
開放式廚房,合理規劃小空間也能很寬敞
關於廚房,他選擇了開放式廚房,因為這樣空間才顯得比較大。
目前的抽油煙機效果很好,另外他也不是經常做飯,所以就沒覺得有啥油煙問題。
靠窗的水槽選擇了臺下盆設計,不僅看上去十分清爽,而且使用起來也很方便。
水槽下方接了廚餘垃圾處理器,再也不用為一點點殘羹剩飯瓜皮果屑,跑來跑去倒垃圾了,吃完就處理,既輕鬆又衛生。
屋主對溫度比較敏感,所以在裝修時他就堅持給家裡裝上了地暖,從此便可以再也不用畏懼杭州陰冷的冬天,進門就能感受到溫暖。
櫥櫃邊上做了個吧檯,這是家裡使用率最高的地方了,兼具了辦公和用餐的功能。
在吧檯下方的櫃子裡面,放一些小零食,想吃的話取用很方便。吧檯上面裝了颱風管機,就算是在炎熱的夏天也可以呆在涼爽的廚房烹飪。
04
客廳&餐廳
/
次臥改客廳,隱藏式餐桌幫大忙
客廳是由原先的次臥改的,靠朝北窗戶的一側做成了榻榻米。榻榻米下方有很大的儲物空間,可以放墊子之類的。
平時在榻榻米上面放一張茶桌,可以看書喝茶;挪開茶桌,又可以當成瑜伽墊使用。
假如有親朋好友來家裡做客、借宿一宿,拉上落地窗簾,在晚上榻榻米又可以當成臨時的客臥。
客廳中間正好可以放下一張2米的沙發,地上鋪的是從網上淘來的的地毯,顏色跟整個格局很搭。
因為客廳本身不大,天花板放主燈感覺會有點累贅,所以就沒有設計主燈,既節約了金錢,也節省了空間。
在地臺和櫃子那裡,@千家萬家 買了一些充電式感應式燈帶,拍照效果很贊,顏值爆表。
因為面積小的緣故,沒有專門的餐廳,也就沒有地方擺放餐桌、餐椅。於是他便在客廳做了個帶隱藏式的餐桌的餐邊櫃。
餐桌收起時不佔空間,可以放放裝飾品,客人來了,便把餐桌展開。是可以坐下4-5個人一起吃飯的,非常實用。
▲餐桌展開
05
臥室&陽臺
/
小戶型也能有步入式衣帽間和休閒陽臺
因為主臥的空間比較小,所以就放了張只有1.8米的床。
@千家萬家 在背景牆上放了一張其妻子幾年前從宜家淘來的一幅畫,大小正好,非常和諧,一點都不突兀。
雖然臥室空間不大,但他仍然給自己安排了一個帶穀倉門的步入式衣帽間,既整潔又實用。
收納空間充足,不用為東西放不下而發愁。
臥室採用了灰色的暖木地板,就不會讓人覺得冷清。放在床頭櫃上的投影儀,投影到對面牆上,晚上躺在床上看電影還是很愜意的。
因為買了一臺洗衣機和一臺烘乾機,所以陽臺就不需要設定晾衣架來曬衣服了。
空出來的陽臺放了一把懶人椅和一個小茶几,週末下午可以坐在這裡看看窗外的風景,喝喝茶,享受美好時光。
除此之外,陽臺上還有一個收納櫃,設計的時候量好了尺寸,正好能放下出差的大型行李箱。
06
尾聲
/
在@千家萬家 看來,雖然現在住的房子很小,但精心收拾過之後,也沒覺得跟精裝的新房有什麼區別。有了這麼一個溫馨的小窩,下班回家都想早一點。
其實沒有一種設計和裝修是適合所有人的,花費和設計要根據自己的預算和實際需求來分配。
每家的經濟狀況和生活習慣不同,審美不同,裝修風格自然不一樣。
