前面是令人驚歎的海景,後面是雄偉的山脈,這是迄今為止Manta North建築中最美麗的冰島位置。Hafnarfjall 山是一座400萬年前已經熄滅的火山的一部分,火山周圍環繞著許多令人難以置信的野生動物和鳥類。這裡也是冰島風力最大的地方之一,有時風速可以超過每秒70米。
業主決定建造一個完全在工廠建造完成的房子,而不是現場建造,從而避免了在無休止的施工過程中對生活所帶來的頭痛和對周圍生態系統可能造成的破壞。由環保、可再生和綠色材料(如CLT-交叉層壓木材)預製和建造的Manta North房屋是一個完美的搭配。
Manta North的概念是基於一個精心設計的、功能齊全的、長期固定式的預製房屋的想法。這個節能、環保、配備智慧技術的房子可以在網上訂購,只需點選幾下。
從Manta North提供的兩種設計中,房主更喜歡黑色立面的RAY模組,帶有平屋頂和從天花板到地板的落地窗戶。Manta North住宅模組的設計,特別是RAY模組,正面解決了小空間的視覺和情感限制。每個模組的外觀透過比例和組成的內聚力來平衡,這為模組之間的各種空間組合創造了空間。功能清晰的設計讓使用者可以最大限度地體驗空間。內部活動以窗戶為頂點——視覺上的開口打破了內部和外部之間的界限,體現出輕盈和開放的態度。
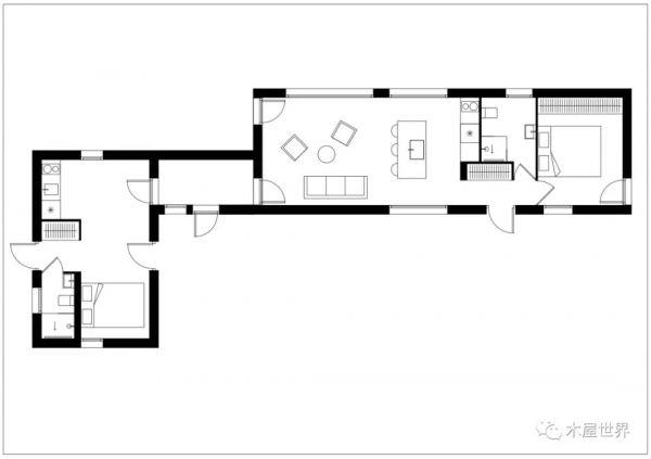
兩個尺寸為48平米+25平米的RAY模組透過一個尺寸為2x3米的通道連線起來,創造了住宅的總起居面積為79平方米。48平方米的模組有一個大客廳,Manta North裝置齊全的設計廚房,臥室和浴室。在最小的25平方米的模組中,客廳、臥室和廚房被組合成一個帶有獨立浴室的單間。房子被安置在木製平臺上,作為房子周圍的庭院,可以享受夏天的夜晚。地板加熱和帶有額外保溫絕緣的木板確保了房子全年適宜居住,即使在最冷的天氣條件下也是如此。房子的外立面由經過熱處理木材建造而成。它經久耐用,在惡劣的天氣條件和來自海洋的溼度下表現出色。
房子的主人回憶起房子到達Hafnarskogur的那天:“我們有個鄰居是個木匠,他自己建了一段時間的房子。晚上,在辛勤工作了一天之後,他回家了。就在那天晚上,我們的Manta North房子到了,幾個小時後就安裝好了。我們可以在同一晚待在家裡。第二天早上,當鄰居來到工地,看到旁邊有一座嶄新的建築時,他的驚訝和臉上的表情是無價的。我們邀請他進來,並請他在我們的新房子裡喝咖啡。”
▼建築平面圖
專案資訊
建築師:Manta North
面積:79 平方米
年份:2020
攝影:Leszek Nowakowski
首席建築師:Manta North
設計與建築概念:Reinis Saliņš
Manta North 設計團隊:Marita Sīmane、Artis Kurps、Andrejs Sokolovs
生產管理:Emīls Penēzis
地點:冰島
文字:建築師 | 翻譯:木屋世界
“木屋世界”與您一起領略世界木屋風采,感受環球美景佳作。
我們是木結構與裝配式整合建築及相關行業資訊平臺。相關木屋設計建造業務或平臺合作請留言聯絡我們。
*圖片文字源於網路,“木屋世界”採編,如有版權請聯絡我們更改。
更多精彩請關注“木屋世界”,支援我們請不吝點贊
