買房考慮樓層、地理位置、開發商等多個因素,上心買套房,才不怕掉坑裡!
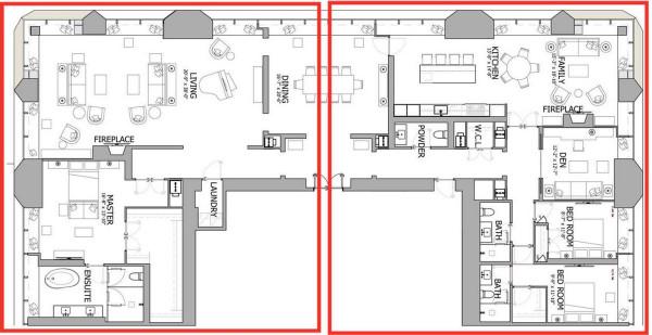
遇到奇葩戶型更是傷腦筋,見過槍型、缺角等奇葩戶型,沒想到還能遇見U型戶型,這要是入手這樣的戶型,該咋裝呢?
我們國內大部分買房,都會追求戶型方正、南北通透,這是好房型的最基本要求,如果缺角或是南北不通,便是差戶型,印象大大減分。裝修中見到的U型衣帽間、U型廚房,卻沒見過U型的奇葩戶型,它暴露出來的缺陷,大概有以下這3條:
- U型戶型,空間進深太深,採光和通風差!
- 空間長而窄,裝修發揮受限!
- 動線距離長,生活不便。
裝修的時候,除了業主的設計需求外,以上暴露出來的戶型問題得逐一解決才行,到底如何來改造裝修呢?
針對戶型進深太深的問題,四周都是公共牆和承重牆,無法拆改了,所以只能從內部來解決。這裡選擇在客廳和陽臺之間打造極窄玻璃門,儘可能讓光線更多的進到室內來,改善採光和通風。
針對空間長而窄,整個客餐廳空間做開放式佈局,沒有隔斷阻隔,同時櫃體或傢俱選擇極簡風,天花板頂面也不做複雜吊頂,吊平頂,四周走邊來裝飾,這樣一點不壓層高,空間感更敞亮一些。
針對動線問題,主要是因為U型戶型造成的,因此將U型戶型,中間分兩半,一半作為共享動區,一半作為獨立靜區,這樣動靜區不混亂,也讓動線距離儘可能的縮短。
比如客餐廳和廚房在U型戶型的同一側,會客、就餐以及烹飪鬥線距離比較短,方便生活;
比如另一半作為靜區,三個臥室+2個衛生間,讓臥室功能集中,這樣共享動區和靜區之間不會相互打擾,有利於獲得更好的睡眠,家人之間也有自己獨立的空間。
緊挨著臥室的兩個衛生間,方便晚上起夜上廁所,或者平時一起床,就能刷牙、洗漱,很方便,不用從U型戶型這邊跑到那邊,大大提高效率。
如果U型戶型兩側的進深不深的話,那麼更適合作為公寓房或者是三世同堂之家,在U型戶型中間的位置,可以打造雙客廳和餐廳,一側作為爺爺奶奶的臥室,另一側是業主和孩子的臥室,這樣三代人居住都OK,不會互相打擾,但也可以相互照料~
除了U型戶型,現在很多U型別墅或自建房,相比一般的方形房子,這樣的佈局,即使只有一層,能夠擁有更多的房間,中間空白的地面,可以用來種花草,打造成花園,或者鋪滿甲板,打造成休閒區,悠然自得日子非常愜意,退休後住上這樣的房子,想想都開心~
(圖片部分源於網路)
