關於改造總是伴隨著新與舊之間的平衡取捨,對於舊事物的態度從以往粗暴拆除的方式,到現在通盤權衡保留有價值的部分、更新過時的部分,可以說改造已經是一個相對成熟的處理手段了。往往高階的改造總是讓舊事物在煥發新的魅力的前提下,總是隱約地伴隨著舊事物的某些特質,它們或許是情感寄託、或許是保留的結構、或許是那些充滿故事的舊傢俱。而在住宅改造中,常常出現這樣的情況,或許就是因為家庭住宅的使用者從始至終都是這個空間的參與者、體驗者和變革者。今天小編就要給大家介紹一個美國鄉村別墅改造專案,看它是如何讓木結構貫穿內外,重新譜寫家庭住宅的序章的。
該專案位於美國的俄勒岡州的中部牧場,這個鄉村別墅始建於1970年代,距今已有幾十個年頭了,對於它的改造翻新迫在眉睫,以滿足現有的生活方式。該建築的改造翻新是由內而外的,內部老化的內飾層、地毯、石膏板統統被拆除,內部的木結構被完全暴露出來。這是該專案改造的核心,這些原始的木結構是原始結構的復古展現,它承載了幾代人的歷史記憶。
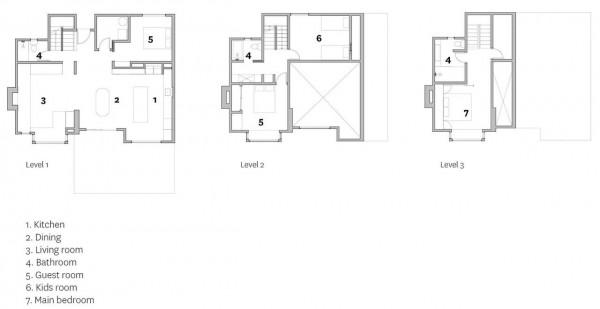
為了配合原始的木結構材質,建築師精心挑選新的木材細節,得以讓新木材與原始木材協調統一的共處在同一空間內。而改造的另一個核心議題,便是對原有的建築內部空間進行高效整合,內部有多處的牆體被拆除,以此來打通多個空間。一個開放的大空間便由此誕生,這裡是主要的生活起居空間,不僅從橫向上來促成這一空間的形成,在豎向上也進行了統一處理。廚房、餐廳和客廳共處在這裡,其中廚房和餐廳的通高挑空,讓陽光塞滿了整個空間。
這個鄉村別墅在牧場中,擁有絕美的外部景觀,對於窗戶的處理,也是一大亮點。每一個空間朝向外部景觀都有一個大窗戶,從室內看向室外,一個個景觀組成的畫面被框在視窗,讓你在內部一覽無餘。大窗戶不僅是景觀的攝取器,更是室內與陽光的介質,太陽從這些窗戶照射進來,讓溫暖和愜意貫穿整個內部空間。這才是一個家庭住宅該有的氛圍。
這個鄉村別墅改造,從始至終的改造策略都是基於對內部空間的功能需求作為出發點,沒有過多的炫技手法,而是對陽光、景觀與內部空間的關係進行重塑。這種內斂的改造手法是實用的,也是高效的。
像這樣的鄉村別墅改造,你喜歡嗎?在評論區給我留言,告訴我你最真實的想法!
專案資訊
Hacker Design Team:
Jennie Fowler – Design Principal
Sarah Post-Holmberg – Project Architect
Janell Widmer – Interior Designer
Tom Schmidt – Architect (CA)
Amelie Reynaud – Architect (CD)
Pat Thorne – Furniture Procurement
Architecture and Interiors: Hacker
Contractor: Construction Management Services
Structural Engineer: Madden & Baughman Engineering
Photography: Jeremy Bittermann
