兩居室房屋想要現代簡約風,餐廳空間較窄,業主又想要一排收納櫃做自己的“珍品收藏”,在設計師的改動下,留出餐廳單獨區域,將收納櫃嵌入牆面,形成一面新的牆體,美觀又實用。
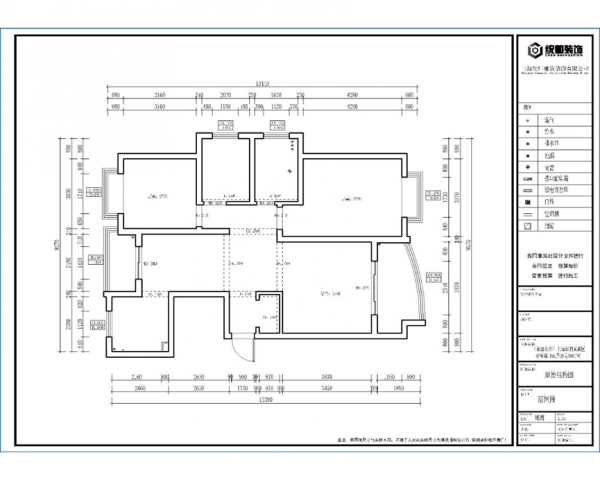
原始戶型還是比較方正的,各個空間也比較明確,但是也有值得改動的地方:
1. 餐廳區域的空間比較狹小;
2. 其中小次臥空間太小,比較難做臥室;
平面設計圖中對於該房型的戶型是沒有怎麼變化的,但是也是適當的進行了改動:
1. 將進門處增加了玄關,便於業主進出門換鞋、攜帶隨身小物件;
2. 將客廳空間面積擴大,尤其是玄關處做延伸,在視覺空間上擴大面積;
3. 衛生間做乾溼分離,便於使用與清潔;
4. 餐廳靠牆做餐桌設計,同時再搭配收納櫃,增加收納空間;
客廳做當下最流行的雙眼皮吊頂,內側增加暖色燈帶,讓屋頂自上而下呈現出溫馨的氛圍感,搭配環形金屬元素的吊頂,精緻感撲面而來,地面做比較舒適的灰色瓷磚,乾淨整潔還易於清潔,陽臺與客廳直通,大大的玻璃採光十足,通透感也滿分。
牆面使用原色白做整體的噴刷,乾淨與整潔是第一印象,搭配淺灰色沙發與白色大理石的茶几,讓空間在舒適中增添了高階感,在沙發上的兩側還預留了插座,方便後期增加檯燈或充電等其他用電的行為。
陽臺與客廳的連線處,設計師沒有選用白色或灰色的瓷磚做鋪貼,而是選用了原木的面板做鋪貼,一來比較有質感,二來也比較美觀,陽臺在延伸處做了洗衣機與烘乾機相疊加的設計,鑲嵌於收納櫃中,既節省了空間還在整體上更加美觀。
陽臺的另一側則是做了洗漱臺的設計,白色檯面搭配臺下盆,與櫥櫃融合為一體,更加的乾淨與時尚,檯面的上側牆面處還做了洗內衣的小機器,讓業主解放雙手,能夠更好的休息。
電視機背景牆做了比較時尚的設計,做深棕色的豎格為打底,白色大理石重合,電視機懸掛在大理石上,周邊佈滿燈帶,下側是白色的櫥櫃,在背景的兩側一側是燈帶設計,拉伸視覺差,另一側則是搭配墨色玻璃的收納櫃,時尚又高階。
客廳看向餐廳很“順”的設計,灰色瓷磚延伸一直到客廳陽臺處,視覺上一通到底,在白色牆面的映照下通透感十足。
由於業主想要一個玩具展示櫃,但是客廳與餐廳並沒有很合適的地方做設計,設計師乾脆就做到了餐廳一側走廊的盡頭,將展示櫃嵌入牆面搭配墨色玻璃與暖色燈帶,反襯出櫃體的設計感,而在展示櫃不過一牆之隔,便是餐廳處。
餐廳的空間並不大,所以在設計上傢俱所佔空間也不大,設計師選用了白色檯面搭配黑色腿的餐桌,白色與淺藍色絨面的椅子作為餐廳,在視覺上最大化的展示出了餐廳的舒適性,空間雖然不大,但是卻很隨意與自在。
由於餐廳空間比較窄,所以設計師在餐桌的後側靠近牆面做了小收納櫃的設計,收納櫃剛好與陽臺的承重牆位置重合,並不突兀,在收納櫃的上側還準備了可移動式的插座,便於業主在吃飯時使用熱水等物件。
收納櫃由白色光滑的板面組成,以黑色做線條,時尚又簡約,屋頂處增加墨色玻璃搭配,平時放置水杯、茶葉,使用時也比較方便。
廚房是U型佈局設計,整體以灰白色做主要設計,讓空間大氣與簡潔同享,灰色瓷磚做地面,光滑板面更容易清潔廚房的油膩汙垢,大窗臺讓廚房的採光和通風性也更好。
白色的檯面搭配淺灰色的櫥櫃,時尚感湧入,靠近窗臺處是洗菜區與做飯區,另一側是電器使用區,空間比較分類化,使用過程的體驗感更好,同時在廚房的牆面也做了灰色的瓷磚,目的除了美觀也更加的易於清潔。
主臥選用木板做地面,腳感會更加舒適一點,屋頂依然做了比較流行的雙眼皮吊頂,並在吊頂內增加了暖色燈帶,讓臥室空間更加的溫馨,屋頂中間搭配的是不奢華的環形燈飾,實用性比較強,房間的飄窗沒有做其他改動,也很美觀。
牆面沒有做其他顏色,而是隻做了原色白的乳膠漆,選用灰色床體、衣櫃與軟裝,在暖色燈帶的對映下,房間格外的溫馨與舒適,床頭雖然只放置了單面的檯燈櫃,但是卻也足夠使用。
臥室的門體選用了與客廳陽臺處封邊的同色木板,這樣整個家的連貫性與設計感就凸顯了出來,簡單一個臥室的設計,不僅設計感十足,還特別的舒適與溫馨。
次臥只做了雙眼皮吊頂,沒有燈帶的點綴,但是空間也足夠明亮,床體靠近飄窗放置,採光十足的同時視覺野也還開闊。
飄窗與床體一樣高,後期可以在飄窗上放置毯子,這樣業主在飄窗上休息的時候就可以遠望室外景,想要隱蔽性更強一點的話還可以將窗簾拉住,實用性很強。
在床體的左側是飄窗,右側則是檯燈櫃與衣櫃,檯燈櫃與床體為同色系,灰色的高階感被表露出來,搭配金屬元素,又增添了幾分精緻感,與旁邊灰色的衣櫃融為一體化設計。
衛生間是用水比較多的區域,所以設計師選用了灰雜色的大理石做地面與牆面,花雜色的瓷磚更加亮眼一點,搭配黑色細框的五金,也呈現了空間的高階感,淋浴間做推拉門設計,室內開出一個小視窗,通透氣更好一點,同時也讓衛生間更加明亮一點。
