專案資訊:
型別:70年住宅
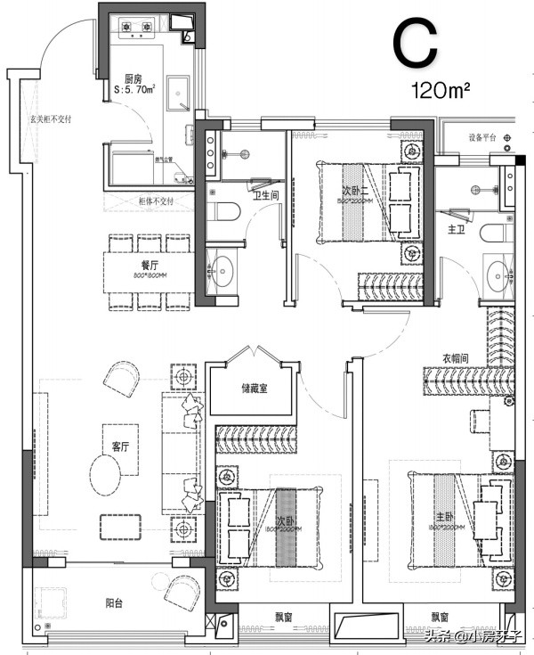
建面:95-119-120
均價:2.1萬/平
總價:185-280萬
待售:2#、6#、7#、14#
總戶數:1294
容積率:2.3
綠化率:35%
梯戶比:2梯3戶/2梯2戶
停車位:1618個
車位比:1:1.25
物業費:待定
物業公司:保利物業
交付標準:裝修交付
交付時間:預計2023年12月交付
周邊配套:
商業配套:陸家老城區;啟發廣場(電影院,大超市,連鎖餐飲,名牌服裝等),
專案西側規劃約5萬方社群商業服務中心落座,和專案東側地鐵上蓋的商業中心建成,半小時內,可以到達嘉亭薈,華潤永珍匯等商圈。
環境配套:專案東側就是吳淞江生態廊道,緊鄰專案北側,就是菉葭生態園,專案南側就是佔地約5300畝的智慧生態田園,明玥逸庭,就是在與吳淞江生態廊道為鄰,棲息在菉葭生態園中,環繞于山、林、江、草的自然景觀之間。
交通配套:軌道交通,專案距離S1規劃站點陸家站步行僅300餘米,國道,專案北邊就是G312省道陸豐東路,高速:長途出行,可以沿著陸家高速出入口至京滬高速,中環:專案距離崑山中環南線的陸家入口僅1.5公里左右。
教育配套:專案東側300米就是陸家中學,陸家中學高中部(崑山重點學校),蘇州外國語學校(崑山校區),專案西側未來也將新建一所配置優良的幼兒園,住在明玥逸庭,可以滿足您的孩子從小學到高中的各種教育需求,而且配套皆是在全崑山名列前茅的優秀學校。
醫療配套:崑山第四人民醫院,崑山紅房子醫院,是一級丙等綜合醫院;新華醫院是綜合性民辦醫院。
戶型鑑賞:
優勢:戶型方正,雙央企聯袂打造,品質有保障,離學校近。
劣勢:周邊配套目前不太齊全,地理位置有點偏僻,價格有點高。
