專案資訊
基地面積:200㎡
建築面積:240㎡
建築層數:2層
房型格局:五房三廳一廚四衛
專案背景
業主為小鎮的私營業主,之前為了生意的經營一直租住在別人家。隨著經營情況的好轉有了剩餘的財力,於是購置了一塊宅基地,將原來有50年曆史的老房子拆除後,重建別墅滿足自己一家人的居住需求。
業主要求
業主一家為三代六口人的家庭結構,上有父母下有兩個子女,功能上除了需要滿足基本的居住需求外,還需要一個活動空間可以供棋牌娛樂之用和一個健身房供健身之用。空間上要求能夠保證具有良好的採光通風條件。立面上要求避免假歐式,採用現代風格並具有獨特的個性。
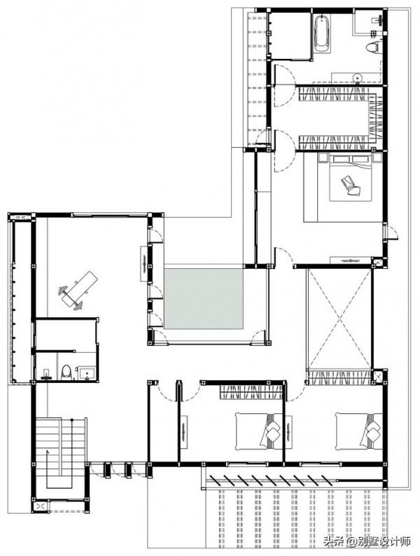
空間規劃
地塊比較方正,尺度適中,為了保證生活的品質,預留了較為開闊的庭院空間,可以作為室外放鬆遊戲的場所。建築部分為了保證室內擁有足夠的採光和通風面採用了“U”型的空間格局。以水景為中心房間繞水而布,可以讓每個房間都能夠享有美好的景觀資源,同時至少有兩個面可以開門窗,保證室內有充足的光線和新鮮空氣。
一層佈置了車庫、客廳、餐廳、廚房、公共活動廳、老人房及保姆間。
二層為三間臥室和一間健身房。
立面設計
立面採用現代的設計思路,以白牆和混凝土牆面為主要元素,透過懸挑的線框勾勒出建築的形態,翹起的屋面有一種將要起飛的視覺衝擊力,增加了建築形體變化,賦於建築更豐富的視覺張力。區域性再點綴木質牆面和格柵,即有遮擋夏季強烈陽光的功能性,也具有韻律的美感。整個建築現代而又不失獨特的個性特徵。
街景
