小戶型裝修,說簡單也簡單,說難也難。說它簡單,是因為面積小,在裝修風格上的選擇上,餘地不大,反倒會省時省事很多。說它難,也是因為面積小。只不過面積太小,所以功能安排上,就不似大房子那樣從容自由了。
不過,只要懂得取捨,能清楚地認識到什麼是自己最需要的,什麼是可以將就的,什麼是可以忽略的,功能安排上,也就沒那麼難了。
本期給大家分享的就是一套小戶型的裝修案例。雖然這套小房子的面積只有33平米,還是單面採光的戶型,但裝修完工後的效果屬實不錯,不僅該有的功能一樣都不少,還顯得十分地清爽敞亮。有需要的可以參考一下喲。
這套房子的屋主是一個95後的單身小姐姐,不擅長也不喜歡交際,平時裡除了上下班之外,就喜歡宅在家裡。
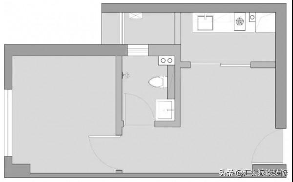
這套房子的原始戶型是客餐廳在門口,而臥室則在最裡邊,這也就意味著客餐廳既幽閉壓抑,還沒有采光。對於大多數時間都待在家裡的小姐姐來說,一個見不到光的客廳,會讓她覺得特別喪氣,而臥室在最外側,又讓獨居的她覺得十分沒有安全感。
這樣的格局,於她來說,是非常不相宜的。設計師接手這套案子後,依據她的個性和需求喜好,對原始戶型做了以下調整:
1,將廚房與客餐廳打通,然後重新劃分空間,分為了臥室、廚房與玄關三個功能區。
2,拆除原有衛生間,將衛浴功能移至原來的生活陽臺處,僅保留洗漱區。
3,將原來的臥室,改為客餐廳。
如此一來,小姐姐想要的和不想要的,就都實現了。一起來看看實景效果吧。
入戶後,玄關左側是收納區,玄關右側是一字形廚房,站在門口,一眼便可以望得到遠處的陽臺,整個空間顯得十分的通透敞亮。
玄關左側的收納區,包括一高一矮兩組櫃子,將鞋櫃、衣櫃和展示櫃的功能結合為了一體。上不到頂、下不及地的設計,增加了入戶區的通透性。
衛生間乾溼分離以後,洗漱區留在了過道中間,那洗手檯的顏值就非常重要,不然,勢必會影響到整個空間的視覺效果。
這裡設計師就採用了特別定製的方式,使洗手檯兼顧了美觀性和實用性,黑色的水龍頭和黑色的掛鏡相互映襯,更將洗漱區襯托得格調滿滿,無論從室內哪一個角度看,都與整體的家居風格十分相符,極大地提升了整體的顏值與品位。
衛生間內比較小,所以牆面和地面通鋪淺色瓷磚,既起到了放大視覺空間的效果,還顯亮堂。
臥室位於廚房後方,床墊是直接擺放在地臺上方的,側面還有一個衣櫥,再加上週圍氛圍燈光的渲染,臥室內實用性和舒適性都沒問題。
說到舒適性,可能有人覺得,臥室被困在這樣一個角落裡,又沒光又不通風,肯定不會舒適。我這裡要說一下哈,這個設計,是屋主堅持要的,她希望設計師能給她創造一個絕對封閉的睡眠空間,所以,連門都是採用的木門。如果不是她強烈要求,設計師完全可以用玻璃移門代替木門的。
可能這樣的設計,對她來說,更有安全感吧。
客餐廳這邊,沿窗臺四周定製了卡座和大量的儲物櫃體,既為室內擴充了不少的收納區,卡座還可以代替沙發,可以說是將空間利用得恰到好處了。
餐桌靠一側牆邊擺放,頂上還配有一盞暖色調的日式小吊燈,晚上,燈光亮起時,這裡更會被營造得十分的溫馨寧靜。無論是在此用餐、看書、追劇、加班,都十分有氛圍。餐廳另一側尚餘下一部分空間,可以佈置豆袋、地毯,做個休閒區,足以滿足屋主在家的一切活動需要了。
以上就是這個妹子33平小窩的全景展示了,不僅該有的功能一樣都不少,還清爽又敞亮,一個人住,安全感十足。
