本文由公眾號“尼伯龍根工廠”授權釋出
在兩次世界大戰之間的那些年,好幾個軍事強國都曾經研究過超重型坦克。這些坦克的戰鬥全重都在60噸以上,計劃中的一些型號更是有100多噸。它們造價昂貴,外形誇張,防護水平和火力遠超同一時代的其他坦克。各國軍方都對超重型坦克寄予厚望,希望它們可以在未來的戰爭當中成為決定勝負的秘密武器,但由於當時的科技和工業水平限制,以及受到戰略戰術進步和反坦克技術發展的影響,幾乎所有的超重型坦克計劃都沒走到量產階段,即便有一些僥倖造出來了幾輛,後來的實際表現也相當打臉。
    “草包十兄弟”
法國是在超重型坦克這條死衚衕中走得最遠的一個,早在1916年的索姆河戰役之前,法國的重型坦克計劃就已經秘密啟動了。1917年,法國地中海冶金造船廠(Forges et Chantiers de la Méditerranée,FCM)拿出了代號為FCM 1A/B/C的三個方案,軍方最終選定了其中最為沉重的C方案,後來命名為Char 2C,這是一個重約69噸,最大裝甲厚度30mm,4米多高12米多長的巨怪,裝備M1897野戰炮一門,機槍4挺,需要6個人來操作。雖然外觀古典,但在那個坦克剛剛開始發展的矇昧時期,它的技術水平絕對算得上世界一流——當時的坦克裝甲只能防禦機槍彈,Char 2C的裝甲卻能頂得住炮轟和反坦克步槍的射擊。它的各項指標都達到了當時法國軍方的要求,而且,它還是世界上第一款採用三人炮塔布局的坦克,第一款採用隔艙化設計的坦克……可以大膽猜想,如果Char 2C真的出現在一戰時期那塹壕密佈的戰場上,它也許會輕鬆地碾過一切障礙物,越過無人區,冒著沖天炮火正面硬懟德軍防線,而德軍將會在一段時間之內對它束手無策。總之,什麼都好,唯一不好的是,在一戰結束之前,Char 2C並沒有真正地經歷過戰火洗禮。
“貝里(Berry)”號Char 2C,所有的Char 2C都以法國行省命名。
一戰結束之後,法國政府沒有必要再繼續維持龐大的軍費開支,Char 2C的訂單被從300輛一路壓縮到10輛,除了樣車之外,其餘9輛直到1921年才交付軍方。這些坦克都被裝備給法軍第51重型坦克團,其中8輛是作戰坦克,兩輛是訓練和指揮坦克。隨著軍事科學的發展,Char 2C逐漸落伍,到1939年時,其中的一些已經報廢。縱觀其整個服役歷程,它們多數時候起到的是威懾周邊國家的“稻草人”作用,以及作為精神象徵提振法軍士氣的作用。
在Char 2C服役期間,法軍一直在對它們實施著大大小小的改進,例如加強裝甲、升級通訊系統、把德制汽油機換成法國柴油機等。在1923年,一輛名為“香檳(Champagne)”的Char 2C換裝了155mm短管榴彈炮和配套的鑄造炮塔,定型為Char 2C bis,1939年,這輛車又被改了回去,試驗炮塔被裝在突尼西亞的防線工事上充當火力點。
“香檳”號Char 2C bis,它後來被德軍運回國內展覽。
1940年5月法國戰役開打之後,法軍深知Char 2C已經落後,沒有把它們第一時間投入戰鬥。6月15日,法軍將最後6輛還能開動的Char 2C運往第戎,由於鐵路運輸受阻,乘員在坦克里布置炸藥實施自毀,但其中一輛的炸藥因故未能引爆,還有兩輛破壞得不徹底,成為了德軍的戰利品。在這之後,德軍才發現自己的3.7cm反坦克炮就足以擊穿這些“草包”的裝甲。28噸,6米多長的Char B1要比這“草包”可怕多了。
被德軍進行過射擊測試的Char 2C,其正面裝甲可以被3.7cm反坦克炮擊穿。
“自己嚇唬自己”的兩個例子。英國(上圖)認為Char 2C的發動機有1000馬力(實際上是2x250馬力),德國腦補出了一個大一圈的Char 3C。
Char 2C與Char B1 bis的同比例模型尺寸對比。
    抗線輸出
1928年,法軍啟動了新型超重型坦克的研究工作,這一次他們想要的並不是之前的“戰壕粉碎機”,而是一種類似於移動堡壘的坦克。這種坦克是配合未來的馬奇諾防線設計的,主要用途是支援防線上的固定火力點作戰。FCM的Char BB坦克就是這種思路的產物,它重約60噸,最大裝甲厚度60mm,沒有炮塔,車體為箱型結構。正面並列安裝兩門75mm長身管加農炮,頂部還有兩個機槍塔,一共需要8名乘員操作。1932年2月,55個國家在日內瓦共同召開了國際聯盟裁軍會議,Char BB坦克成了這次會議的犧牲品。1936年,法國又提出開發一種類似於縮小版現代化Char 2C的45噸級坦克,替代中途夭折的Char BB充當移動堡壘,這個計劃對後來的法國坦克發展產生了深遠的影響。
Char BB的木製模型,車頭的滾輪其實是越障輪,用來防止炮管觸地。
    三皇之戰
1937年,伊希萊姆利諾工程公司(Ateliersde construction d'Issy-les-Moulineaux,AMX)提出的重型坦克方案非但沒能比Char 2C更輕,體積反而進一步膨脹——它本質上就是全面加強的Char 2C,裝甲更厚,火炮口徑更大,一門炮還嫌不夠,又在車體上裝了第二門,這種不僅糊弄還出格的設計遭到了無情的淘汰。
AMX公司1937年的超重型坦克方案,類似於大號的Char B1。
然而,AMX公司在這之後並沒有轉變錯誤的設計思路,1939年,AMX公司設計的所謂“C型拖拉機(Tracteur C)”重量達到了140噸,正面裝甲厚達100mm,有一大一小兩個炮塔。主炮塔安裝105mm加農炮,副炮塔安裝47mm加農炮,此外還有4挺機槍。電傳動這時候已經不算稀奇,繼續堅持一肚子小直徑負重輪,無減震剛性連線的設計才算驚世駭俗……1940年的時候,AMX公司又把它的副炮塔從屁股挪到車頭,主炮塔挪到了車體中段,除此之外還有一些其他的修修改改,一直折騰到4月份競標失敗才算偃旗息鼓。
1939年的AMX公司“C型拖拉機”方案,最大的問題是兩個炮塔互相影響射界,都無法360°旋轉,Char 2C也存在同樣的問題。
1940年的AMX公司“C型拖拉機”修改版本,炮塔除了位置變動,外形也有較大變化,AMX公司的方案是1940年三個方案當中輪廓最矮的一個。
AMX公司“C型拖拉機”的另一種修改版本。
除了AMX公司之外,呂埃工程公司(Atelierde Construction de Rueil,ARL)也有自己的“C型拖拉機”設計。ARL的方案和AMX的方案基本上是半斤八兩,ARL“C型拖拉機”一開始“只有”120噸,經過改進後增長到了145噸,同樣也是雙炮塔設計,裝備90mm和47mm加農炮各一門,正面裝甲厚度達到了120mm。兩家公司的方案都是剛性懸掛,一個能跑到20km/h,另外一個能跑到25km/h,乘員都是8人。1940年4月,ARL完成了“C型拖拉機”的木製模型,它同樣也沒有得到軍方的青睞,和AMX公司的難兄難弟提前去故紙堆裡做伴去了。
ARL公司“C型拖拉機”的木製模型,它的副炮塔在主炮塔正下方,可以選裝火焰噴射器,車體是兩截可拆分的分體結構。
終結掉兩個冒充拖拉機的龐然大物的是FCM公司的新專案——FCM F1,對於法國軍方而言,這個設計的吸引力要大得多,他們計劃要訂購12輛該型坦克。FCM F1重約139噸,乘員9人,外形比另外兩個設計更加簡潔,負重輪帶有彈簧減震裝置。主炮塔安裝75mm加農炮,副炮塔安裝47mm加農炮,正面裝甲120mm,側後也有100mm。量產車輛計劃將主炮換成105mm或90mm加農炮,副炮塔改成75mm和25mm加農炮並列安裝,戰鬥全重也相應增加到145噸。與AMX、ARL兩家公司的方案相比較,FCM F1在技術上更為先進,而且炮塔尺寸也更大,防彈外形也更為合理。
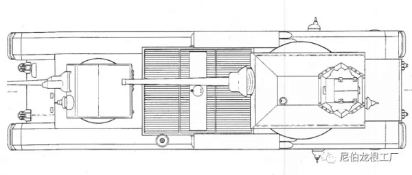
FCM F1的線圖和木製模型。法國認為,德軍的反坦克壕一般要挖到7米來寬,為了越過反坦克壕,他們自己的超重型坦克車身要足夠長。FCM的車身是三個方案當中最短的,仍然有10米多。
除了這三個方案之外,一位波蘭親王還提出了一個220噸的方案,這車有12米長,5米寬,比其他的方案寬出不少,長寬比非常理想。它的好玩之處在於,為了方便運輸,車體可以縱向一掰兩半。
法國軍方要求FCM公司在1941年5月之前完成樣車,1940年5月德軍入侵法國之後,軍方要求各公司全力生產Char B1坦克,FCM F1的建造在5月15日被叫停。
在長達20餘年的“間戰期”期間,法國軍方一直沒能搞清楚坦克本身和裝甲部隊的真正價值所在。諸如超重型坦克這樣眼高手低的專案除了浪費資源,幾乎沒有什麼實際意義——可能為《戰錘》之類的幻想作品提供設定靈感,還有為《坦克世界》等軍武遊戲提供素材就是它們的意義罷……
