今天的真實人家案例來自上海,常住一家三口和一隻可愛的修狗。
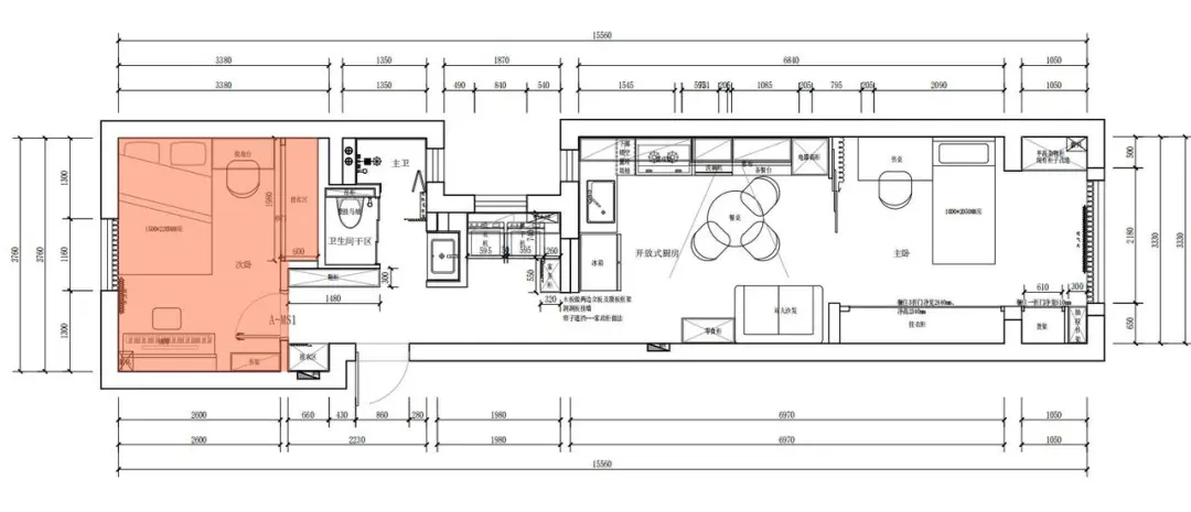
50㎡的兩室一廳老公房,成功實現近20㎡的收納空間,還有四分離衛生間和長達9米的L型廚房操作檯面。
堪稱教科書級老破小改造,快拿上小本本一起學習屋主一家的空間榨乾術吧!
原始問題:
● 沒有玄關開門見廁,鞋子只能放在陽臺鞋櫃;
● 收納不足,生活雜物無法解決;
● 原兒童房在客廳裡,孩子長大沒有私密空間;
● 戶型中間只有天井,通風較差;
● 衛生間只有2㎡,廁所和浴室無法同時使用;
● 廚房也只有2㎡,烹飪時狹窄受限;
● 陽臺被洗衣機和烘乾機佔據,浪費空間。
改造前
▼
改造亮點:
● 廚房改成洗衣房+家政間,釋放陽臺空間;
● 客餐廚一體,廚房更大、動線更順暢;
● 安裝新風系統,大大提升室內空氣質量;
● 近20㎡收納空間,解決一家人收納需求;
● 隔出南臥,孩子有自己的空間,也不影響全家 人親密互動;
● 重新規劃衛生間,不再開門見廁,三分離使用起來也更方便,更容易清潔。
改造後
▼
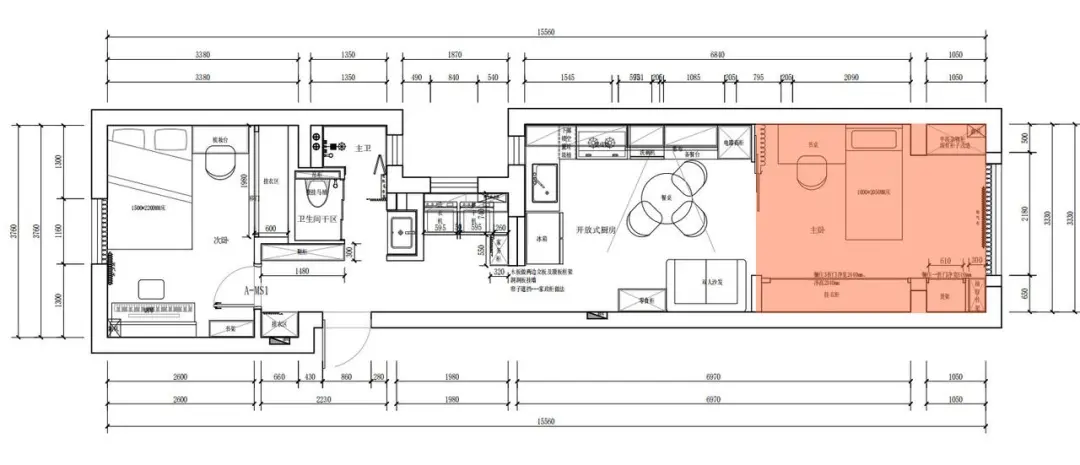
房屋位置:上海
房屋面積:建面61㎡ 套內50㎡
房屋戶型:2室1廳1衛
裝修套餐:顏值革命4.2 A系基礎套餐
全屋花費:26w(硬裝16.5w+家電軟裝9.4w)
常住人口:3人
設計經理:馬榮
01
玄關走廊
改造前沒有入戶玄關,也沒有任何可以收納的櫃子,一家人的鞋子收納,就成了問題;並且也犯了中國人的大忌—入戶門正對衛生間。
衛生間改成三分離後,解決了“開門見廁”的尷尬。在保留北臥走廊行走舒適寬度的前提下,沿著走廊兩側,一邊做了掛衣區,一邊做了頂天立地的鞋櫃。
經過屋主夫婦的“精摳”,掛衣區和鞋櫃都擺脫了現存空間限制,角角落落都得到了“超常發揮”。
先說鞋櫃,一般正常鞋櫃的深度要達到35cm以上,才能豎放鞋子;而屋主家鞋櫃總深只有30cm,減去櫃體層板後,深度只剩26cm。
因此鞋子只能橫放收納,為了最大程度利用空間,屋主根據一家人鞋子的數量和尺寸,量身定製了“斜坡式”層板,最後成功塞下全家40雙鞋靴,甚至比別人家深度更深的鞋櫃還能裝!
掛衣區縱向分割成不同的收納空間。頂部放的是小狗外出用的揹包;掛衣杆下方的收納抽屜裡,用來收納常帶戴的圍巾、穿過的毛衣等次淨衣;底部還能收納不少雜物。
進門處也有方便一家人出門時換鞋、整理儀容的換鞋凳和穿衣鏡。
推拉式穿衣鏡不用的時候可以關上,這樣晚上去洗手間經過門口,就能避免被鏡子裡的自己嚇到的情況;面板上的洞洞板還能掛帽子、圍巾、包包等常用物件。
02
四分離衛生間
原本的衛生間不到2㎡,根本轉不開身,更是完全無法容納洗衣機。如廁、淋浴、洗手空間都分開以後,可以很好地緩解一家三口的早晚洗漱高峰。
由於淋浴間面積太小,乾衣服帶進去一定會弄溼,屋主就把目光對準了淋浴間門口這個只有0.5㎡的空間,簾子一拉,就成了獨立隱私的穿衣區,而且完全不會佔用洗手池和廁所的空間。
並且,考慮到淋浴間面積小,夏天洗澡霧氣重溫度高,屋主還特意在簾子頂部裝了涼霸,這樣夏天洗澡換衣服的時候就不會覺得悶熱。
換衣區的牆面也沒有放過,上面裝了電熱毛巾架,不怕冬天或者梅雨季節毛巾晾不幹;下面是摺疊衣籃,拉開就能裝下洗澡前脫下來的衣服,不裝衣服的時候收起來也不會佔空間。
利用縱向空間擴大收納的方法,在淋浴間裡面和廁所也看得見。淋浴間的窗戶裝了置物架,用來放一家人洗澡用的瓶瓶罐罐;馬桶上方不到10cm的牆面空隙也做了薄櫃。
家政間是原戶型的廚房,窗戶外是天井,保留了可通風可採光的小窗戶,其餘空間統統利用得一處不剩。
橫放洗衣機和烘乾機,順勢get了一張大臺面,這個檯面又能承載各種不同的功能。比如,女主人化妝時的梳妝檯、錄製有聲書時的錄音間,以及給小狗修毛時的操作檯。
硬裝階段就給掃拖一體機器人留好了上下水,旁邊布簾遮起來的高櫃,也是屋主按照自家常用的清潔家電和清潔工具,親自畫圖、量身定製的。
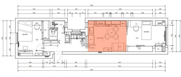
03
客餐廚
原本的客廳和南臥相連,客廳採光也全靠南臥陽臺。想要客廳採光好,南臥就毫無隱私性可言;南臥想要建牆隔開,就得犧牲客廳的採光,屋主夫婦多年來一直深受這個問題的困擾。
南臥兒童房用玻璃門做隔斷,不僅能滿足一家人的互動,也不會影響客廳的採光;而且,為了保證隱私性和隔音,玻璃門也特意採用了雙層中空玻璃。
順著客廳小窗兩側的牆體,做了L型廚房操作檯面。原本的廚房天井只有不到3㎡,現在的操作檯面有足足9m。
充分利用牆面收納空間後,零雜物的檯面用起來簡直不要太爽!
就連冰箱縫隙、窗戶也沒有放過:
值得一提的是屋主自己設計的電器櫃和零食櫃。
電器櫃是雙層可抽拉的,隨時用隨時拉,不用的時候關上又能讓廚房保持清爽不雜亂。按照最順手的高度,最常用的電器放在第一層,其次是第二層;
做完電器櫃以後只剩下30cm寬度,但深度足夠。於是就做成了多層零食櫃,家裡的零食、乾貨、調料等囤貨,都可以很好地收納。
櫥櫃右下方的空位,是留給果蔬收納筐的。帶滾輪的旋轉式收納筐,方便推進推出,也非常能裝,可以容納一家人至少一週的果蔬囤貨。
客廳一側的大桌既是一家人的餐廳也是客廳,同時還兼備媽媽的讀書角和爸爸的工作臺;把櫥櫃上方的投影幕布降下來,也能享受很棒的視聽體驗。
餐桌上的擺件也是屋主精挑細選的,黑胡桃木的材質不僅和整個客餐廳的風格非常搭配,而且它們還非常實用。小樹是三個可以取下來的隔熱墊,紙巾架還能用來放置“下飯”的手機和平板電腦。
考慮到廚房操作檯面附近容易濺油、滴水,沿著操作檯,鋪的是更方便清理的木紋磚,而餐桌區域鋪的則是木地板,交界處的極簡金屬扣條顏值也很高。
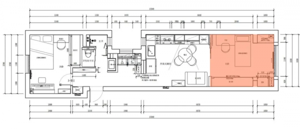
04
兒童房
隔出來的兒童房不僅讓孩子有了獨立的空間,並且採光很好,學習的間隙看看陽臺窗外的風景,心情也會更舒暢。
兒童房做了投影面積接近10㎡的整牆收納櫃,一家人的衣服、被褥,都可以輕鬆容納。
兩個櫃子砌出的牆,沿著橫樑下方形成了一個凹槽,屋主也特地囑咐設計師不要填平,裝上層板就又get了一個書櫃。
不光收納厲害,屋主也是平平無奇的省錢小能手。
原本兩個房間需要兩臺風管機,但是把出風口垂直安裝在推拉門兩側,一臺風管機就能同時搞定兒童房和客餐廳,不僅直接省了一臺風管機的四五千,還能在日常使時省電。
櫃子裡用的都是金屬掛杆,它不僅價效比遠遠高於層板,還不含甲醛。
雖然有烘乾機,但還是在陽臺做了可摺疊晾衣杆,遇到髒衣服多或者需要晾大件床品的時候也不怕。晾衣杆收起來就能一秒隱形,絲毫不影響陽臺的美觀和整潔。
05
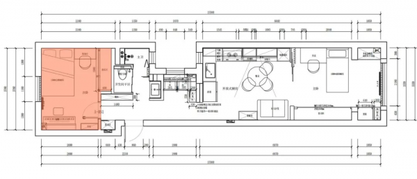
父母房
父母房的面積雖然不大,但是不僅放了雙人大床,書櫃、書桌、衣櫃也都一應俱全,關鍵是還有一架鋼琴!
屋主夫婦這次裝修,也充分考慮到了一家三口未來的變化情況—孩子很快就會離家上大學。從原來的每天都是一家三口,變成孩子只有寒暑假才回家。
所以屋主夫婦計劃等孩子踏入大學,就搬到採光更好的南臥兒童房;因此父母房的書桌+床、兒童房的書桌+床,尺寸都是計算好剛好相等的,到時候可以直接對調。
接觸過這麼多真實人家的案例,我認為真正過日子的人裝房子,還是以功能實用為主的,不然裝得再好看,不好住也是枉然。
喜歡這個改造就點個【贊】再走哦 !也歡迎在評論區留下你的想法~
