這套三居室位於一樓,因為採光不是很好,色彩上,設計師選用了高明度的馬卡龍色系,很好的解決一樓光線的問題,而且整個家都是採用馬卡龍色系,打造出清新而有活力的空間氛圍。
圖賞
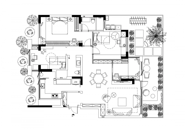
▲平面佈置圖
| 客廳 |
客廳的藍色定製櫃,米色沙發,還有千鳥格+活力橙的貴妃沙發,色彩以它獨特的視覺語言創造出空間的層次。
純淨的白色背景牆加入有秩序的線條,避免了單調,豐富了層次。沙發背景選擇了一組不同形狀大小的裝飾畫豐富視空間視覺感。
爵士白檯面的橢圓形+圓形茶几組合,質感滿滿,擺放的香氛盒與彩色果盤,讓空間更加生動活潑。
| 餐廳 |
餐廳選擇了圓形的餐桌,讓家庭更有團聚的氣氛,這樣的家,才會讓家人們緊密連線在一起。餐廳藍色櫃門定製櫃做了簡單的造型,清新不單調。
客廳的落地燈,餐廳的主燈,精美別緻,點亮著一方空間。
| 多功能房 |
多功能房採用榻榻米設計+定製櫃一體設計,能裝下很多零碎的物品,是這個家的收納主場。
| 主臥 |
主臥是一個空間的重點設計區域,也是判斷一家人生活舒心與否的地方。 馬卡龍藍色帶來的清新淡雅,與熱烈的黃色形成了強烈的對比。
床頭靠窗一側是女主人的梳妝區,無不體現著對精緻生活的追求。
飄窗邊的陽光傾瀉在抱枕與書上,揮灑出一副幸福安詳與靜謐的圖景。
| 兒童房 |
兩個房間都是以極簡的形式呈現,這樣可以最大化地讓孩子去利用自己的空間創造出更具有想象力的事物。
隨處可見的美好,不光是令人心動的傢俱,還有晴天的一米陽光,家裡的歡聲笑語。
| 衛生間 |
主衛牆面貼的北歐風的小白磚,搭配懸空的藍色衛浴櫃,小小的空間非常的清新明淨。
客衛實現三分離,洗漱區外移到過道,越長衛浴櫃+鏡櫃還有壁龕的設計,保證了充足的儲物,時刻保持空間的乾淨整潔。
設計:之境內建築設計
編輯留言
歡迎大傢俬信小編,來聊聊裝修這件事吧~
