sponsored links

北京王府井新出四合院 您喜歡這種風格嗎?

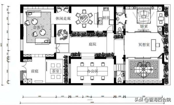
王府井新出四合院

正座院落,佔地220建面180平,3北3南2東2西;

新翻建新裝修 地暖空調

附近多個收費停車場;

距離8號線美術館站僅260米

北京王府井新出四合院 您喜歡這種風格嗎?

北京王府井新出四合院 您喜歡這種風格嗎?

北京王府井新出四合院 您喜歡這種風格嗎?

北京王府井新出四合院 您喜歡這種風格嗎?

北京王府井新出四合院 您喜歡這種風格嗎?

北京王府井新出四合院 您喜歡這種風格嗎?

北京王府井新出四合院 您喜歡這種風格嗎?

北京王府井新出四合院 您喜歡這種風格嗎?

北京王府井新出四合院 您喜歡這種風格嗎?

分類: 旅遊
時間: 2022-02-16

相關文章

回憶東北剿匪:十八九歲的姑娘窮到沒衣服穿,必須儘快消滅土匪

回憶東北剿匪:十八九歲的姑娘窮到沒衣服穿,必須儘快消滅土匪
1945年8月,日本剛剛投降,吳永福就參加了上黨戰役. 淪陷區的百姓 但他很快就得到了另一個重要任務,跟隨幹部團火速趕往東北,建立根據地.吳永福一聽到訊息就報了名,現在獲得了批准.1945年10月,幹 ...

十八歲以後才會明白的事

十八歲以後才會明白的事
那年你十八歲,年輕氣盛,好奇心重,說想到外面去看看,不顧家人的反對,獨自踏上了他鄉之旅,你說外面挺好的,餓了有飯吃,累了就睡覺,偶爾還能去酒吧玩一玩.到後來,你很快花光了身上僅有的兩千塊錢積蓄,差點沒 ...

民間故事:少女十八歲,滿頭白髮,道士見了竟是跪倒喊娘
民間故事,奇聞趣事,這裡是話神道仙的原創故事領域. 接下來請看傳奇的民間故事. 世間之大無奇不有,古往今來,民間可是發生了很多怪事,有些已經超出了人們的想象極限. 在古代,有著這麼一個怪事. 離著縣城 ...

國共第二次合作,中共番號是第十八集團軍,為什麼會被稱為八路軍

國共第二次合作,中共番號是第十八集團軍,為什麼會被稱為八路軍
1937年,國共達成第二次合作以後,中國工農紅軍改變為國民革命軍第八路軍,後來又改編成第十八集團軍.第十八集團軍就是中共軍隊的正式番號,但無論是在當時還是在後來的歷史上,敵我雙方都習慣把我軍稱之為&q ...

十八洞村:苗寨鉅變

十八洞村:苗寨鉅變
圖片來源:東方IC 經濟觀察報 記者 張曉暉 從湖南的省會城市長沙出發,一路向西,坐高鐵抵達湘西城市懷化,從懷化北上,途經沈從文的故鄉鳳凰古城,再開車走209國道,經過兩個小時彎彎曲曲的盤山公路,會抵 ...

2021《留學》名企探營第十八站 | 美中國際教育集團——深耕二十五載,成就行業老牌

2021《留學》名企探營第十八站 | 美中國際教育集團——深耕二十五載,成就行業老牌
在315國際消費者權益日當天,<留學>雜誌作為留學行業一線的專業垂直媒體,發起了針對留學行業的摸底與探查活動. 自2021年3月15日開始,<留學>將用6個月的時間,圍繞&qu ...

彭德懷問解方:“土耳其旅何物?”知道後告訴三十八軍給我全殲

彭德懷問解方:“土耳其旅何物?”知道後告訴三十八軍給我全殲
朝鮮戰爭中土耳其旅是第一個"報名"跟著美國跑到朝鮮的,而且出兵5400多人,一個旅的兵力,那是相當的積極,其中還有一支軍樂隊來鼓舞士氣. 主要原因是土耳其被打怕了,原來整個土耳其跟 ...

十八軍窯洞群遺址旁的移民新生活:家家戶戶都是庭院式民居

十八軍窯洞群遺址旁的移民新生活:家家戶戶都是庭院式民居
甘孜縣是由四川進入西藏的必經之路.1951年,為了給西進部隊提供一個穩固的空運通道,西南軍區決定搶修這裡的甘孜機場.為了不打擾當地百姓,戰士們就在附近的山坡上挖窯洞解決住宿,僅7個多月時間,就在海拔3 ...

一人之下4定檔,來和寶兒姐研究阿威十八式吧

一人之下4定檔,來和寶兒姐研究阿威十八式吧
距離<一人之下3>的播出已經過去了一年了,在粉絲們的千呼萬喚中<一人之下4>終於定檔了,將於9月24日播出. 這一期播出將是非常精彩的碧遊村篇,這一篇中的故事會非常精彩.和第三 ...

故城縣西半屯鎮十八里村:“葡萄+香瓜”致富能發家

故城縣西半屯鎮十八里村:“葡萄+香瓜”致富能發家
"聽說十八里村在葡萄園裡種起了香瓜,長得還不賴,這兩天忙著採摘往外走呢."鄰村的群眾議論紛紛. 十八里村位於西半屯鎮區西部,是典型的農業村,有良好的葡萄大棚種植基礎.為了發展壯大集 ...

羨慕忌妒啊!陽江十八子李總的新歡——Rey Audio號角音箱

羨慕忌妒啊!陽江十八子李總的新歡——Rey Audio號角音箱
故事得分二部份來說.第一部分是已收藏有數千件Hi-End音響器材的世界發燒音響博物館負責人李積回,也就是大家熟悉的陽江十八子.別看他有著彌勒佛一般的小肚子,聲音宏亮笑口常開,其實李總腦筋反應非常快,思 ...

十八歲公開,二十歲訂婚,二十二歲結婚,周峻緯會是下個任嘉倫嗎

十八歲公開,二十歲訂婚,二十二歲結婚,周峻緯會是下個任嘉倫嗎
在娛樂圈,大部分明星戀愛都會選擇不公開,因為會影響事業,但有一位明星卻非常特殊,他十八歲公開戀情,二十歲訂婚,二十五日歲結婚,看到英年早婚的周峻緯後,很多網友都認為他會成為下個任嘉倫,你怎麼看呢? ( ...

貓大十八變,來看看小眼緬因貓的蛻變史

貓大十八變,來看看小眼緬因貓的蛻變史
喜歡貓咪可以關注下"老胡說貓",分享養貓知識.救助故事.種草貓物,帶你走進貓的世界! 要說視覺衝擊最大的喵星人是誰?那體型碩大的緬因貓一定是可以排得上名次的! 還記得老胡第一次親眼 ...

尋訪十八軍足跡之一

尋訪十八軍足跡之一
中國西藏網訊 桑達寺位於西藏自治區那區市比如縣羊秀鄉普宗溝,是一座歷史悠久的苯教寺院,已有800餘年的歷史.該寺是普宗部落首領的寺廟,在歷史上實行活佛家族世襲制,由首領委任一位兒子為寺院活佛,主持宗教 ...

樊梨花的武藝到底有多強?她的實力與十八好漢相比是什麼水準?

樊梨花的武藝到底有多強?她的實力與十八好漢相比是什麼水準?
在羅通掃北時最強的戰將就是猛羅仁,號稱小裴元慶的的他與羅通的差距有很大.在唐軍徵東時期第一勇將絕對是巔峰時期的薛仁貴,唐軍勁敵蓋蘇文遇到了他也顯得弱不禁風.而到了薛丁山徵西中最厲害的人物,卻不是薛丁山 ...

《旗幟》第二十八集 | 仝保民:用體育弘揚傳統文化

《旗幟》第二十八集 | 仝保民:用體育弘揚傳統文化
"偉大的旗幟"系列第二十八集 仝保民 | 用體育弘揚傳統文化 小小柔力球,內含大學問.為推廣這項既有中華傳統文化內涵又與現代球類有氧活動相結合的運動,國家級社會體育指導員.北京市柔 ...

如何保護我們一生有限的二十八顆牙齒
大家好,我是小病不求人,今天來和大家聊聊如何保護我們一生有限的二十八顆牙齒! 隨著年齡的增長,我們的牙齒多多少少都會有一些小毛病,我最近就發現我不能吃太酸了東西了,以前最愛吃了,現在只要吃酸的東西,牙 ...

解析臨滄茶區:勐庫十八寨,寨寨出好茶,冰島茶何以冠絕天下?

解析臨滄茶區:勐庫十八寨,寨寨出好茶,冰島茶何以冠絕天下?
雲南的普洱茶知名產區,根據地域位置,可大致劃分為西雙版納.普洱.臨滄三大茶區.其中,臨滄貴為普洱茶原料的最大產地,被譽為"天下茶倉". ▲茶山 今天,旗艦店"藏品普洱&q ...

覽大觀園,觀奢靡風,解甘苦味——觀紅樓品古今之十八

覽大觀園,觀奢靡風,解甘苦味——觀紅樓品古今之十八
筆名光影,本名程光瑩,山東省單縣人,中學高階教師,單縣第二中學語文教師,單縣作家協會會員,單縣黨外知識分子聯誼會理事. 覽大觀園,觀奢靡風,解甘苦味 --觀紅樓品古今之十八 文/光影 大觀園好氣派! ...

憑《山路十八彎》爆火的李瓊,到底是誰毀了她的前程?

憑《山路十八彎》爆火的李瓊,到底是誰毀了她的前程?
大山的子孫喲,愛太陽喲~ 這首<山路十八彎>曾經是紅極一時的春晚歌曲, 那個圓臉的小個子姑娘李瓊,也憑藉這首歌走紅. 這首歌后來多次被翻唱,但沒有人能超越李瓊的原唱, 她清亮又高亢的嗓音, ...