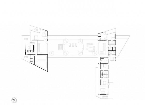
CARLAHOUSE最初的主要設計目標是最大限度地欣賞洛杉磯這個山頂地塊以東的戲劇性和廣闊的景色。我們沒有將1800平米的房子鋪在整個地塊上,而是將住宅設計成前面開敞的合院式住宅。住宅設立在合院對立且平行的兩翼,就像旋轉的翅膀,其末端向外伸出,而它們則構建成了水平視覺框架。我們將專案中公共區域(即客廳,廚房,餐廳和入口)放置在現代合院的正面,透過FLOOR TO CEILING的玻璃推拉門,是的起居室、客廳、餐廳營造出無限開放的感覺。正如無邊泳池在天際線上下降一樣,走進去時的景色也是如此。人們不僅站在這些空間裡,還隨時可以欣賞洛杉磯一覽無餘的全景:洛杉磯連綿起伏的丘陵,標誌性的好萊塢標誌,格里菲斯天文臺,甚至不遠處更大的謙卑的安吉利斯山脈,以及洛杉磯的日起日落。
這些懸垂的突出的翅膀美學上可以透過簡單的白色混凝土牆來達到。這些牆壁捕捉透過天窗層疊的自然光。光線在一天中的運動與混凝土的原始表面協同作用,照亮了所展示的相反紋理的互補性。樓梯本身採用橡木裝飾,無縫嵌入橡木扶手,旨在展示我們對細節的高度考慮。一旦到達山頂,很明顯,兩個擁有大型懸臂的翅膀,雖然完全獨立的生活空間,作為同伴在山坡上盤旋。
公共空間部分(即廚房、餐廳、起居室),的房屋表皮材料為原木色的雪松,為房屋提供了一個平衡的溫暖試金石。公共空間的頂部是一個連線空間。我們將此空間設定為一個巨大的戶外活動場所,可以做各種方式運作,如果他們願意的話,可以在上面進行各種娛樂活動,比如在投影儀上觀看戶外電影,或觀星。同時亦可以作為從一個翼到另一個翼的交通空間。電動推拉門的使用在房屋周圍創造了一種戲劇性的無阻礙的開放感。在前院,進入房子後,我們放置了一個環繞前門的四英尺倒影池。在黃昏時段和下午,來自游泳池的光線反射到屋頂中間平原的西部紅雪松覆蓋的天花板上,正式這種陽光,使得紅色的雪松更加凸顯,格外有一番風味。在房子的另一側,也恰好是地平線的全景推拉門,我們放置了一個寬敞的甲板,以及一個八十四英尺的無邊泳池。這個無邊泳池還定義了專案佔用的可用土地的邊緣。除了游泳池附近幾步之遙的較低樓層的一小片空地,成為了狗和孩子玩耍的地方。
今天凡叔分享就到這裡,如果喜歡,還請各位小哥哥小姐姐關注轉發點贊及評論。非常感謝
