專案資訊
基地面積:95㎡左右
建築面積:300㎡
建築層數:4層
房型格局:四房兩廳一廚五衛三露臺
專案背景
此專案為三兄妹的花園別墅,三兄妹本來與父母及爺爺奶奶一起居住,由於年齡的增長年輕人的生活方式及觀念與長輩有了很大的不同,在父親的支援下將同一條街上不遠處的自留宅基地用來建別墅作為三兄妹的住所,距離不遠可以相互照顧,也解決了因作息時間不同造成的相互干擾問題。
業主要求
與父母居住的房子不遠,業主提出可以將客餐廳簡化,只需滿足簡單食物加熱,簡單聚會即可。臥室都要自帶衛生間並需要滿足學習和工作的需求。需多留一個房間作為朋友偶爾來訪的留宿使用。希望能夠有更多的綠化空間,房間都能有良好的採光和通風。
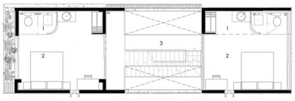
空間規劃
結合當地只能建四層的規劃要求,我們將的功能空間進行了分析及大致的排布,提出按樓層將空間劃分為四個盒子,透過盒子的前後錯動形成空中花園,再將豎向的樓梯置於中部進行中空化處理,頂部及牆面以玻璃圍合,並引入水景形成了通高的豎向內部庭院空間,保證了室內良好的採光和通風。
一層從入口形成客餐廳→庭院→衛生間的空間序列。
二層以中庭樓梯為界前方靠道路為空中花園,後方為臥室。
三層以中庭樓梯為界前後方都是臥室。
四層房間邊界進行了退讓,除了庭院臥室,其餘都是屋頂花園及庭院的玻璃頂。
材質表達
因專案地處沿海,導致城市處於一種高鹽度的空氣和土壤環境,所以我們提出以混凝土和紅磚作為表面材料,充分利用材質的耐候性特點。年輕人對新的嘗試接受度比較高,接受了我們的建議。建築空間呈現一種質樸的工業化狀態。結合空中花園的設計整個建築已經是極具個性化的存在,已經成為當地標識性的住宅。
