本期,甜茶為大家分享的就是一套很有代表性的「去客廳化」裝修案例,全屋面積約89㎡,常住人員是一家三口。屋主夫婦希望家裡能有足夠的活動區域,能滿足他們和孩子的日常互動,當然儲物空間也不能少,裝修風格簡簡單單即可。
//戶型分析//
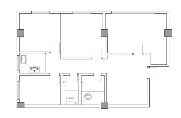
這套房子的面積約89㎡,屬於舊宅改造案例。房子的前身是商住辦公,從原戶型圖中也可以看出來,全屋有5間臥室,想要正常居住就需要進行大改造。
//設計亮點//
①打通原戶型中的三間臥室,做開放式客餐廚和書房。
②客廳取消電視機,保留沙發,並增加書架和飄窗櫃。
③原廚房借用一部分走廊空間,改為三分離式衛生間。
    客廳:打造溫馨實用的互動式空間
屋主夫婦平時工作比較忙,他們希望回到家的閒暇時光,能夠儘可能多地去陪伴孩子。所以,在打造客廳時,他們建議設計師增加一些互動性空間,方便一家三口在一起遊樂、讀書或交流。
客廳和書房之間,用較窄的雙面櫃隔開,靠近客廳的部分用作書架;另一面則作為隱藏式收納櫃,用來儲存生活雜物和囤貨。
客廳、餐廳、廚房和書房四個空間打通以後,整體的採光、通風性得到了很大的改善。考慮到層高只有2.9米,為了減少高度上的壓抑感,設計師選擇了無主燈設計,室內照明主要來自於筒燈和燈帶。
客廳原本是沒有飄窗的,為了提升舒適性,設計師沿著窗戶做了一組休閒飄窗,兩側分別與書櫃相連。飄窗上方定製海綿墊,柔軟舒適,可作為沙發的補充;內部鏤空嵌入隱藏式燈帶,可搭配收納盒使用。
沙發背景牆做成了開放式書架,上面擺放著屋主的藏書和收藏品,坐在沙發上就能隨手拿取,非常方便。淺灰色的一字型沙發,採用了無扶手設計,看起來很輕盈。
簡約圓形茶几和單人休閒椅,小巧且不佔空間,搭配在一起呈現出閒適的美感。
    餐廚:開放式空間,寬敞通透
餐廳和廚房是開放式設計,櫥櫃呈一字型排開,餐桌規劃在廚房和餐廳中間。平時,男主在廚房做飯,女主可以和孩子在客廳玩耍,相互之間交流起來很順暢。
原木色的廚下櫃搭配白色吊櫃,色彩清新,收納能力強。餐桌也充當了操作檯的功能,其檯面是黑色巖板,硬度強、且耐髒耐磨。
    書房:兼顧兒童遊樂室,功能豐富
書房也是開放式的空間,它和客廳之間隔了一個雙面櫃,保證了一定的獨立性。做開放式書房的好處有兩點,一是空間會變得更寬敞,二是能夠提升室內採光和通風。
書桌和書櫃,緊靠窗戶擺放,將窗邊的空間運用得淋漓盡致。書桌的位置不僅採光好,而且遠離生活動區,比較安靜,適合屋主日常居家辦公或孩子寫作業。
在書房內擺上一組小桌椅,這個空間就立馬變成了兒童遊樂室,夫妻二人可以陪伴孩子搭積木、拼圖,幫助提升孩子的發散性思維和想象力。
    臥室:佈局簡潔,但書桌不能少
屋主有一點做得非常明智,就是儘可能多地去定製書桌,這樣無論在哪個房間,都能隨時開啟辦公、閱讀或寫作業模式。主臥和次臥,都定製了書桌,且長度佔據了整面牆,可容納3-4人,非常寬敞。
次臥空間較小,做榻榻米剛剛好,窗邊也有一張定製大書桌,如果想要使用書桌,可以直接坐在床上。
    衛生間:三分離式主衛設計,配置齊全
家裡共兩個衛生間,一個主衛,一個客衛。主衛是三分離式設計,內部有清洗區、洗手檯和淋浴區;客衛則只有馬桶和洗手檯,功能劃分齊全,使用也比較方便。
兩個衛生間的配色保持一致,以淺灰色為主色調,地磚和瓷磚都是水墨大理石,耐髒耐磨,方便日常清理衛生。
【本期總結】
回顧本案,“去客廳化”的設計賦予了屋主一家人更豐富的居家功能,且室內的每一處細節設計都是從生活的實用性出發,不僅顏值高,而且越住越舒服。如果你也喜歡本期內容,歡迎點贊收藏!




















 
			 
			 
			 
			 
			 
			 
			 
			 
			 
			 
			 
			 
			 
			 
			 
			 
			 
			