理想的生活早在心裡生根發芽,
在設計與空間的間隙裡,
勇敢熱忱讓它在現實開出璀璨的花。
¯¯¯¯¯
浪.漫
Project Details
專案面積丨140㎡
風格定位丨簡約法式
樓盤位置丨錦麟九里
主筆設計丨殷燁
¯¯¯¯¯¯¯¯¯¯¯¯¯¯¯
本案是一家三口居住,恩愛的夫妻,一個可愛的孩子;對於家,希望環保、實用,不喜歡過於複雜的裝飾,簡單就好;愛溫柔的氛圍,最終定下細膩精緻的簡約法式風,希望找尋到自己不被定義的精緻生活。
¯¯¯¯¯¯¯
客廳
入戶的玄關櫃中空處方便擺放隨身物件,讓歸家的人放下疲憊。
奶油白、雅緻棕、自然木,拉滿客廳獨一無二的氛圍,去除客廳後面的房間,做成衣帽間,把客廳擴大,讓空間整體通透開闊舒服大氣。
陽臺有一處簡餐區,讓一人食的恬淡自在充分享受,閒暇時刻,烤一盤點心煮一杯咖啡,在光陰裡,學會熱愛生活。
¯¯¯¯¯¯¯
餐廳&廚房
開放式的廚房佈局,讓下廚成為一件快樂有愛的事情。餐桌延伸吧檯,選用白色為主色、輕盈簡約的,舒適幸福的感覺。
開放式凸顯空間的整體性,也易於打理,保持整潔。
¯¯¯¯¯¯¯
臥室&衛生間
主臥以簡約的白色成就業主的典雅氣質,素雅的白牆與石膏線護牆碰撞,不對稱的床頭置物佈局,充分展現業主內心的個性與不羈,典雅的高腳造型,為睡眠空間增添一絲優雅,也催生一場甜甜的夢。
衛生間做出乾溼分離使馬桶淋浴空間變大寬敞,大理石加壁龕,以最簡單的狀態滿足生活需求。
尊重空間,重塑生活,看陽光穿透室內,聽微風拂過紗簾,生活、浪漫、儀式感,空間的每一寸,都是恰到好處的驚喜。
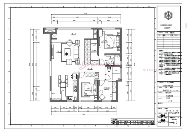
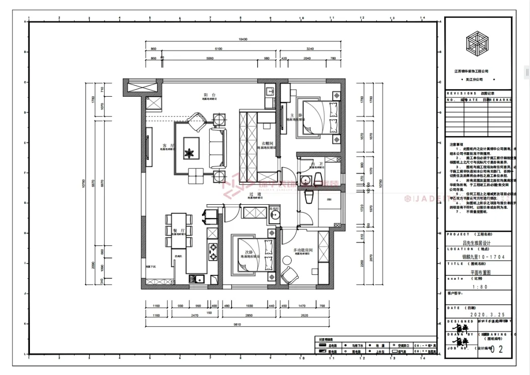
本案原始圖&佈置圖:
















 
			 
			 
			 
			 
			 
			 
			 
			 
			 
			 
			 
			 
			 
			 
			 
			 
			 
			