現在裝修新房,都講究越簡潔越耐看。乾淨整潔,不僅住著舒服,還可以減少很多不必要的打掃問題。今天分享一套70㎡的兩居室新房,裝修很簡潔,沒有花哨的設計。但是她家卻因為陽臺火了。故意抬高15cm,不僅美觀實用,簡直像多出了一間房。
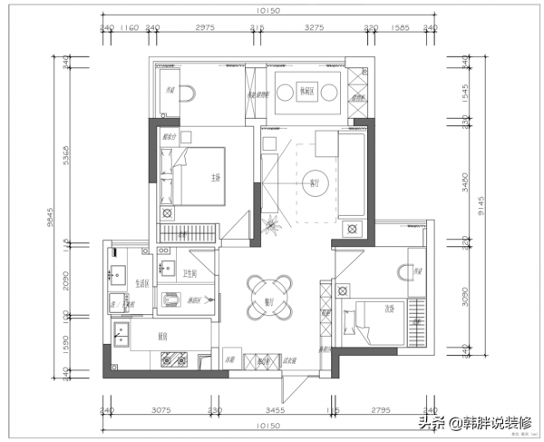
新房的戶型並不大,兩室兩廳一廚一衛的格局,不過帶有兩個大陽臺。
入戶並沒有玄關,一進門就看到餐廳。為了實現入戶的收納功能,把餐廳的餐邊櫃和鞋櫃結合在一起。不僅擁有強大的收納效果,還把電冰箱嵌入在裡面。電冰箱的邊上有一扇穀倉門,後面就是廚房。
全屋裝修以原木風為主,靜謐自然營造出柔和的居家氛圍。餐廳的中間擺放一套原木打造的圓形餐桌椅,素雅的色調,顯得靜謐舒適。
餐廳和客廳是開放式設計,裝修風格一致。全屋木地板,牆面只刷大白牆。顏色和風格很搭配,讓小小的空間顯得更加清爽大氣。
客廳的外面帶有一個陽臺,裝修的時候把客廳和陽臺打通。讓原本並不大的客廳,在視覺上面得到了延伸。並且陽臺故意抬高了15cm,打造成了地臺。擺放上蒲團和桌几,兩邊牆面定製收納功能。休閒、實用兩不誤,簡直相當於多出了一間房。
客廳的沙發背景牆沒有做多餘的造型,掛了兩幅裝飾畫做簡單的點綴,更加清爽耐看。灰色的布藝沙發啊,精緻的茶几,搭配地毯,搭配出來的效果時尚又溫馨。
廚房的空間並不大,L型的工作臺,安裝了櫥櫃和吊櫃。原木色的櫥櫃搭配白色的方塊瓷磚,視覺效果整潔又清新。因為面積緊湊,放棄了單獨的油煙機,而採用集合好幾種功能的整合灶。
臥室的裝修設計,延伸了客餐廳的效果。原木+白牆的主基調,沒有多餘的色彩,也沒有繁瑣的造型、裝飾。整體效果顯得整潔清爽,營造出了溫馨舒適的睡眠環境。主臥室的陽臺也抬高15cm設計成地臺,並且佈置了梳妝檯和收納櫃,有效劃分功能區。
床頭背景牆做了簡單的造型,木地板貼上牆1米。不僅可以保護牆面,還可以當床靠。
次臥的面積比主臥室緊湊了不少,現場定製床鋪,這樣可以避免空間浪費。床頭可以擺放物品,不需要單獨再準備床頭櫃,節省了不少空間。
最後看看衛生間,全屋採用統一的灰色瓷磚。浴室櫃採用懸空設計,不僅好看,還不會形成衛生死角,方便打掃。淋浴區設計了玻璃隔斷,乾溼分離效果非常出眾。
