香港作為一座中國的高度繁榮的國際大都市,是國際性的一線城市。而香港的佔地面積不算大,人口卻眾多,在2020年香港人口數量就達到了747萬左右,香港的地可以說是“寸土寸金”,房價更是高到“嚇人”。今天我們要參觀一下三口之家在香港定居後,裝修的43㎡小家吧。
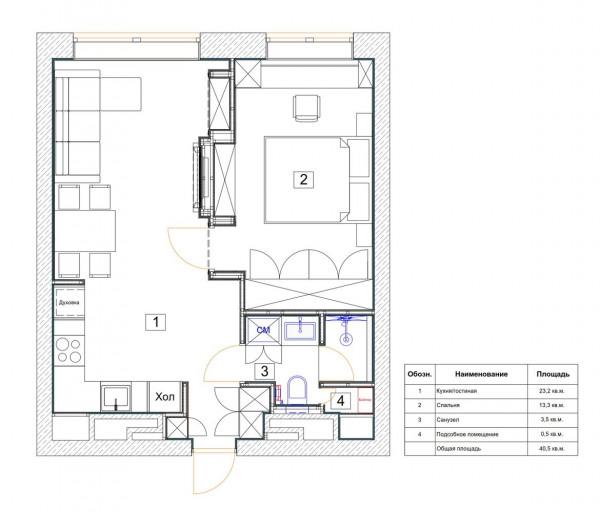
戶型平面圖
我們先來看看他們家的戶型圖,43㎡的房屋主要被分為四個區域,用餐區、客廳、臥室、衛生間,小小的屋子滿足了三口之家在香港的基本生活,小家功能齊全,給人很踏實溫馨的歸屬感。
開啟這家大門,進入玄關,我們可以看到左右兩側都按照了落地鏡,這樣的鏡面牆裝飾很有技巧,如果家裡玄關空間較小也可以這樣試試,能給空間有視覺上的擴大感。
進入屋子就可以將客廳和餐廳一覽無餘,室內裝修風格主要以簡約為主,對於面積較小的房屋來說,簡單的風格更能讓空間看起來整潔美觀舒適。客廳背景牆做了石膏線裝飾,格子的形狀讓視覺上增加了設計感。
客廳的沙發選擇的亮黃色布藝沙發,鮮明的顏色讓簡約為主的室內裝飾看起來更加明亮有色彩活力。
電視機背景牆做成了壁爐式樣的,一面牆的位置不僅放了電視機,還放了取暖器,既美觀又做到了空間利用的合理化。電視牆邊上開闢了一個書架的位置,利用本來的閒置空間增加了儲物功能,而且書架靠近陽臺,主人挑選書籍的時候,有自然的光線。
客廳邊上就是餐廳,擺放了一張四人餐桌,並且能給客廳和廚房做一箇中間隔斷,避免客廳沾染過多油煙味。餐桌燈非常別緻,葡萄藤的造型為靈感,很有設計感,提升了整體空間的檔次。
餐桌邊上就是廚房了,由於空間不足,九安裝了開放式廚房,L字型的廚房檯面設計能利用到廚房的牆面空間,也不會顯得廚房空間擁擠。
廚房的櫥櫃門選用的是胡桃木的面料材質,這樣的板材帶給整體空間一種美式裝修的風格,讓本來簡單的設計更加的多元化,看起來也很溫馨。
廚房的冰箱使用的嵌入式冰箱,隱藏在廚房的櫥櫃裡面,讓空間看起來整體有質量。廚房的地面鋪的是地磚,如果廚房鋪地板,那麼會變得很難清潔,給生活增加負擔。
好了,我們來看看三口之家的臥室。因為孩子好小,不能獨立睡覺,就和父母一起住在主臥,主臥擺放了一張兩米的床,三口之家住在一起完全沒有負擔。
臥室的床頭牆面安裝了整面牆的胡桃木面飾板,非常精緻,滿滿的生活的儀式感,木紋的牆面比起大白牆來說,更能給人溫馨的家的感覺。
臥室床頭的牆面被改造成書櫃和儲物櫃,上面可以放書和一些裝飾品,下面的櫃子放一些寶寶的用品,很整潔有序。側面的牆就打了整排的衣櫃,衣櫃使用白色移門,當衣櫃開門空間較小的時候,移門就是個很好的選擇。
臥室窗臺的空間改造成了一個簡單的書桌工作臺,主人在帶孩子之餘,也能在書桌上閱讀書籍或者完成一些工作內容,書桌側面也打了一個小書架,屋主真是不放過臥室的任何一個空間。
臥室沒有安裝主燈,直接安裝了吸頂燈,能達到照明效果的時候,也能節省一筆購買燈具的費用。而且頂面不裝主燈,會讓空間看起來不那麼侷促。
最後我們來看看衛生間,衛生間是在進門玄關的位置。
衛生間在屋內部,沒有窗戶,所以屋主安裝了足夠的燈具來達到照明效果,更能方便女主人化妝護膚等需要。
由於空間限制,衛生間安裝的淋浴房,後期砌了半面牆,做到了衛生間的乾溼分離,大理石紋的牆面非常精緻美觀。
衛生間的大門背面安裝了一張整面的鏡子,可以充當全身鏡,這個設計既美觀,又能節約空間,一舉多得。進門的牆面也打了半面牆的櫃子,平常可以擺放家裡的洗漱用品、浴衣、紙巾之類的東西。
馬桶安裝在櫃子和淋浴房之間,合理利用了衛生間的空間,並且還留出來了足夠的活動空間,這個設計實在是精緻巧妙。
不得不說,香港房價之貴眾所周知,而這樣的小屋住一家人在香港市區非常多見,這樣小而精緻的設計確實不多見。
