為每一個愛家的客戶,打造一個完全屬於您自己的家!
室內外完整家居設計!
做有溫度的設計!
設計點亮生活!
——木子設計!
這些天一直在發微頭條,在聊一些室內裝飾的風格特點和傢俱色彩搭配.今天,把兩個月前剛談的一個古琴老師家的裝修設計案例分享出來,一起學習,一起進步!
第一次見客戶的時候,透過給客戶溝通,大概瞭解了客戶的需求,心裡覺得她比較適合現代簡約和有意境的新中式風格.於是找了些意向圖片給客戶看了一下.沒想到,當看到最近網路上流傳的侘寂風時,客戶一下就吸引了.說要的就是這種感覺.於是,就有了以下的設計思路和中心思想.
一.客情分析:
1.常住人口為4個人,
(男女主人:白領人士,對生活品質有一定的要求.
大兒子:上初一;小兒子:小學一年級)
2. 男女主人好客,喜歡喝茶.喜歡練書法.
女主人彈古琴及古琴老師,喜歡種植.旅行.
不怎麼看電視,喜歡健身,有收藏愛好.
3. 不需要刻意做電視牆,喜歡開放式的客廳.
喜歡禪意的空間.簡單但溫馨.自然.
由於之前的溝通,所以風格定位為:侘寂風!
二.風格定位:
侘寂風
侘寂(Wabi-sabi),是一種思想,一種美學,一種世界觀。它指的是一種直觀的生活方式,強調在不完美中發現美,接受自然的生死迴圈。
侘,指的是和諧寧靜。其意為描述某種有意的謙卑,與自然和諧共處的狀態。侘,字面意思是說,一個侘之人可以“用更少做更多”,滿足於擺脫物質牽絆的生活。
寂,指的是時間的自然演進,從而領悟到所有的一切都會變老,容顏不再依舊。寂的中心理念就是真實。
侘寂風,是一種健康的生活方式!是一種坐看雲捲雲舒的淡泊與寧靜.
三.人物概念:
| 健康 |溫暖| 現代藝術 | 自然美學
四.原始結構圖:
戶型為一樓的106平方的室兩廳雙陽臺.透過對客戶的瞭解與分析,客戶兩人和孩子一起住,老人不住在這裡.因為是一樓,一樓的院子可以給客戶使用.所以我們第一次平面方案設計思路是:
1.封上原有進戶門,從院子向室內進的時候,是從客廳陽臺進入.
2.室內變三室為兩室.一間主臥,一間孩子房.
3.開啟的那間小臥室和餐廳合二為一,這樣客戶的社交活動(插花,茶藝.手工.寫字.)都可以和餐廳融為一體.這樣整個客餐廳也更通透,大氣.
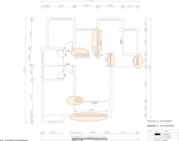
五.牆體拆改圖:
六.平面方案佈置圖一:
案一平面設計說明:
1.原入戶通道隔起來,變成衣帽間.為整個空間的儲物功能增加一個空間.
2.原有小臥室開啟後.成了一個多功能區.集各種功能為一體.
3.原客廳陽臺的一邊小牆垛打掉,從陽臺入戶的地方,設計成一踏式的石材地臺,一直連線到客廳電視牆.做為統一的地臺式電視櫃.
4.主臥室,正常功能分割槽.有儲物,休息,梳妝的區域.和乾溼分離的衛生間.
5.兒童房設計成高低床,這樣兩個小孩各有自己的休息空間.鄰近窗戶的位置,設計了一組衣櫃,和一個長條書桌.滿足兩個人學習需求.
6.原有廚房位置不變,把原餐廳陽臺改成西廚區和吧檯.這樣,在這個空間裡滿足中西廚的功能需求.
七.平面方案佈置圖二:
因為有了第一個思路後,在重新整理客戶需求的時候,發現,室內沒有彈琴.練瑜伽和參禪的地方.於是又有了第二個平面設計思路.
案二平面設計說明:
1.把上個平面設計的衣帽間取消,把原有廚房開啟,變為開放式廚房,這裡我們設計為西廚區域.
2.把方案一的多功能區縮小,在原有小房間的位置上,設計成一個彈琴和練瑜伽的功能分割槽.
3.把方案一的西廚區域和吧檯都取消,然後設計成參禪和寫字的區域.
4.另一個餐廳陽臺的思路是把它變成中廚區域.(注:此思路為備用方案)
八.彩色平面佈置圖:(附帶一樓廳院的簡單平面思路設計)
友友們,你們喜歡哪一個彩平方案呢?評論區討論一下!
九.總體設計的6大系統功能:
十.意向參考方案:
十一.總結:(由於客戶一直在做生意,期待著我們的第二次見面)
在看慣了城市中鋼筋水泥,燈紅酒綠,也品透了人生的冷暖自知後,更加渴望——家,的重要性.家,是溫暖港灣,是我們的最後一方淨土!質樸,溫暖,是我們對生活品質的提升,同時也是自己對生活的一種態度!
友友們,這兩個方案,你們更喜歡哪一個呢?喜歡的話,點個關注,我們一起學習有關室內外的整裝設計知識!
為每一個愛家的客戶,打造一個完全屬於您自己的家!
室內外完整家居設計!
做有溫度的設計!
設計點亮生活!
——木子設計!














 
			 
			 
			 
			 
			 
			 
			 
			 
			 
			 
			 
			 
			 
			 
			 
			 
			 
			 
			