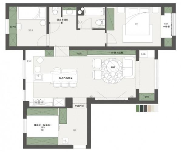
這是一套面積為96平米的三居室,屋主兩口子都是大學教師,他們對家有著明確的暢想和追求。如夢想中的美妙和現實生活的煙火氣息
家裡客廳的色調選擇性很多,比如米色、淺綠色等,看起來都很大氣,而且整體看起來很儒雅。沙發顏色可以選擇的清新一點,這樣讓人有耳目一新的感覺。
客廳佈置打破常規,不以電視為中心,更加註重對話交流。大面積書櫃滿足主人藏書所客廳佈置打破常規,不以電視為中心,更加註重對話交流。大面積書櫃滿足主人藏書所需,也讓整個空間充滿了書香氣。中古藤編單椅與焦糖色皮沙發,其復古的質感,有歲月流淌的痕跡。需,也讓整個空間充滿了書香氣。中古藤編單椅與焦糖色皮沙發,其復古的質感,有歲月流淌的痕跡。
臥室裡一般要放置大量的衣物和被褥,因此裝修時一定要考慮儲物空間,不僅要大而且要使用方便。舒適度是臥室裝修的首要考慮標準。
飄窗下面可以安放最近閱讀的一些書籍,倚靠在軟綿綿的飄窗墊上看一本好書,品一盞好茶。
主臥背景選擇了暖暖的薑黃色,搭配暖色調窗簾及柔和質樸舒適的床上用品,感覺超級溫馨舒適。
次臥為男孩房,裡面的功能除了睡眠還增加了學習區域,儲物空間。
裝修時,衛生間是重點,如果裝修不到位,後果不堪設想,會帶來一系列大大小小的麻煩事。當然,衛生間裝修也是具有一定難度的,裝修時我們要小心謹慎,不可馬虎。
餐廳是我們用餐的場所,餐廳裝修設計將會影響到我們的食慾,因此需要精心設計,打造出浪漫、溫馨的環境,這樣可以讓人胃口大增。如果你的餐廳靠近另一個居住空間。這時最好讓兩個空間用同樣的顏色做主色調,再選擇一些不同的,但接近主色調的小裝飾點綴。
開放式的餐廚空間,大量木色定製櫃,臥室門也隱藏其中,動靜分割槽明顯,整體給人的感覺是非常自然和諧的。
有人會問廚房裝修大概花多少錢,其實只要滿足了需求,預算是可控的。廚房裝修時儲物空間一定要足夠,並且能方便日常使用,各種小空間小角落都不能浪費,抽屜和置物架組合利用,如果掛牆的話也要注意遮擋灰塵和油煙。
餐桌、島臺、吧檯形成L型連線,自由、舒適,隨手可得是餐廳的關鍵詞。
想要家不被鄰居一覽而光就要設定玄關,玄關是外界和屋內的分界線,也是保護家裡隱私的屏障,也可以增加家裡的視覺面積。玄關是用來放置我們的衣物、鞋子和鑰匙等零碎東西的地方,所以在設計的時候要考慮這些功能。
改造後的玄關區域,明亮通透。設計師用復古感十足的海棠玻璃做為推拉門形成門廳與榻榻米房的隔斷,有所遮擋,又不影響採光。
96㎡美家
改造後的玄關區域,明亮通透。設計師用復古感十足的海棠玻璃做為推拉門形成門廳與榻榻米房的隔斷,有所遮擋,又不影響採光。
㎡美家






 
			 
			 
			 
			 
			 
			 
			 
			 
			 
			 
			 
			 
			 
			 
			 
			 
			 
			