![]()
△專案外觀 Mohammad Hassan Ettefagh
Cantilever House是一座位於伊朗達馬萬德的現代獨立住宅,位於距離伊朗德黑蘭60公里、海拔2400米,擁有強勁寒冬的達馬凡德市摩沙。土地面積約為600平方米,尺寸為30 x 20米,坡度為20%。根據業主的描述,uc21 Architects瞭解到這是一個全新的挑戰,將在這充滿限制的建築基地上盡利用土地最大優勢,透過設計獲得更多可用的空間,以滿足客戶的需求。
![]()
△專案外觀 Mohammad Hassan Ettefagh
![]()
△懸臂式空間 Mohammad Hassan Ettefagh
透過實地考察瞭解,uc21 Architects決定將土地分為三部分:最大的一部分位於土地的北部,用於將建築物安置在有相關道路的地方;第二部分用於戶外娛樂活動,第三部分為地塊綠地。
最好的設計是建造一座與周圍山脈融合的別墅,給它一個與周圍山脈相似的形狀,使其能夠將一些樓層的面積擴大1米,使其相互交替,這樣就形成了球型的場地,不僅促進了雨水的排放,並且與周圍環境非常協調。此外,決定將建築設計成一棟完全白色的建築,冬天與紛飛的大雪融為一體,讓夏天變得更有重要的意義。建築玻璃的表面被用來欣賞美麗的山景。
在此基礎上,設計師將娛樂區設計於住宅的地下一樓,並能夠直接連線到室外的娛樂空間,地下室娛樂區由按摩浴缸和微型酒吧吧檯組成,室外娛樂區則包含了加熱游泳池、供暖壁爐和一個多功能區。
![]()
△地下室樓梯 Mohammad Hassan Ettefagh
![]()
△由室內看向泳池 Mohammad Hassan Ettefagh
![]()
![]()
△凸出的建築體量 Mohammad Hassan Ettefagh
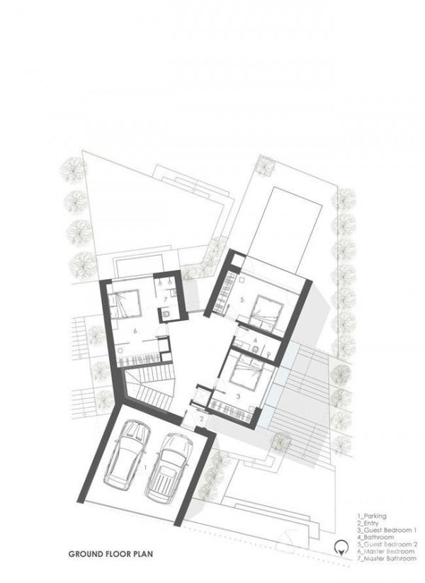
設計師將整體空間劃分兩個不同的體量空間,分為私人區域與公共區域,小體量用於設計客戶主臥室,大體量則用於設計住宅出入口和客房。
為了建築能夠增加更多空間和功能,設計師將其南部擴充套件兩個體量並旋轉30°,以便在西部多出一間臥室,同時擁有更大的主臥室。此外,建築的延伸部分覆蓋了部分游泳池,當寒冷的冬季來臨,可為整個壁爐區域抵擋住下雪天,不影響在寒冷的冬天圍著壁爐欣賞雪景。
最後,設計師將住宅入口建於體量最大的北部部分,並將第三部分綠地用於停車。居住室垂直於較低的體量,容納了日常生活需求的廚房和餐廳,延伸的功能附加了兩個大型露臺,可以欣賞到周圍景觀的壯觀景色。
![]()
△建築正面入口及綠地停車場 Mohammad Hassan Ettefagh
![]()
![]()
△餐廳看觀賞室外景色 Mohammad Hassan Ettefagh
![]()
![]()
△頂樓空間 Mohammad Hassan Ettefagh
平 面 圖
Project Name:Cantilever HouseOffice
Name:uc21 architectsFirm
Location:ItalyCompletion
Year:2021Gross
Built Area (m2/ ft2):458 m2
Project location:Mosha, Damavand, IranLead
Architects:Amin Haghighat
GouConstructors:Milad Ahmadian, Amin Haghighat
GouElectrical:Mehdi
SafeMechanical:Amir Hossein
BorjiGraphic:Amin Haghighat
GouPhoto Credits:Mohammad Hassan Ettefagh
關於uc21 Architectsuc
21 Architects成立於2008年,是一家由12人組成的工作室,致力於在世界各地設計有意義的空間。該工作室位於一個有著豐富歷史的傑出設計之城——羅馬。設計包括且不限於住宅、辦公大樓以及創造性的餐廳、公共領域和混合用途的開發。通過了解客戶需求和飛躍進步的巨大設計和特定客戶密切合作。以真實性、堅韌不拔的積極性提供有影響力與社會相關的設計方案,塑造身處的城市。
