第一眼看到這個家,腦海裡的念頭是:不當日劇取景地可惜了。
這次裝修,住友@丸子不可愛了 最慶幸的就是將次臥與客廳打通,實現了心心念唸的榻榻米。夢想中的日系小屋,被搬進了現實,不僅畫風治癒,實用性也一點不拉垮。
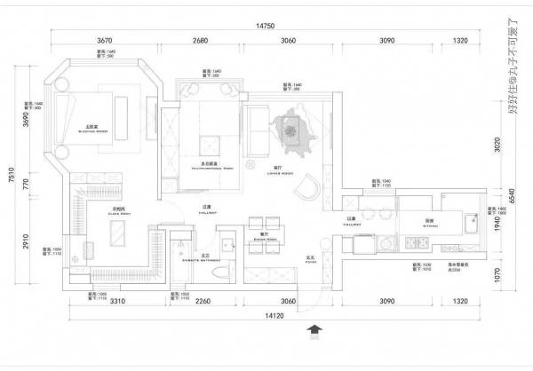
80㎡三居改兩居,
少間房更實用了?
房齡 20 年的小屋,原始戶型客廳朝南,但被隔壁樓遮擋,採光不佳;沒有陽臺,廚房、臥室狹小。且原來的洗衣機是放在廚房外的小陽臺上,洗衣服需要穿過廚房,很不方便。
改造前
我一個人住,不需要太多條條框框,改造的核心需求就是舒服實用。最終定下來的設計方案,最打動的幾個點:
tips
改造亮點
01. 書房改成衣帽間,因為我本身沒有辦公需求,衣帽間顯然更實用;
02. 次臥定製榻榻米,和客廳打通,光線互借,平時作為休閒區和聚會區使用,爸媽來住把移門拉上就能變成臥室;
03. 廚房外推,把小陽臺包進來,冰箱、洗衣機、烘乾機、電器高櫃和水吧檯整合在一起。這樣一來廚房區域的採光更好,動線也更舒適。
改造後
第一次自己負責裝修,從頭到尾歷經六個多月,傾注了不少心血和精力。
看著破舊的老房子一天天變化,心愛的傢俱從收藏夾搬進現實,從租房到正式入住屬於自己的小家,躺在心心念唸的榻榻米上感嘆,再多辛苦都被幸福取代了。
開門見廳無玄關,
兩個櫃子滿足採光+儲物。
原戶型進門就是餐廳,沒辦法做單獨的玄關,而且儲物空間特別少。
於是左邊打造了一組通頂高櫃,收納非當季的鞋、家務用具和隔夜衣。
為了不擋光線,右邊則放了個成品鞋櫃,防盜門用的是子母門,有一段是固定不開的,所以鞋櫃選了 28cm 厚度的,尺寸剛好,並不會擋到過道。
這個鞋櫃雖然看著不大,但是能放下 20 來雙鞋,下面兩層櫃門板是透氣藤編,最上層櫃門板是自帶的磁吸小黑板,我貼了很多動漫和旅行紀念照,顏值和實用兼具。
鞋櫃旁邊的尺寸正好放下一面全身鏡,可以掛牆可以落地,不過上面有壁燈,我就直接斜靠了,超方便的。
左邊餐廳橫放了四人位的小餐桌,爸媽來也夠用了。
客廳與榻榻米聯動,
增添傢俱反而更寬敞了?
客廳和榻榻米的聯動是我覺得改造最成功的一部分。雖然原始戶型是朝南,但客廳的採光實際不如次臥(也就是榻榻米區域)。
打通之後不僅光線更好,客廳整個的空間感也提升不少。多了個茶几,看著卻比原來寬敞。電視牆還是比較簡潔,方便投影。可以直接躺在榻榻米上看電影,幸福感飆升。
沙發特意選了一款坐深比較寬的,適合盤腿坐、葛優躺。在灰色和綠色裡面糾結後還是定了這款苔蘚綠地,家裡有點綠色才比較有生機。
沙發絨布材質,這幾天上海降溫,感覺尤其應景。藤編邊櫃+落地燈,溫馨的小角落。
電視牆靠走道一側做了半開放書櫃。書櫃頂上的格柵其實是個bug,施工銜接時出了問題,不得已的補救方案。
提醒大家以後在裝置定位、交底的時候一定要留心空調出迴風口的位置。
我當時設計師和施工隊交底的時候裝置方沒能安排人去現場三方交底,後來做吊頂的時候發現這裡定位偏了,擋住了一部分櫃子。為了不影響機器迴風口,設計師和全屋定製設計師溝通後在櫃子頂上專門定製了格柵板。雖然最後問題得到解決,但其實原本能避免的。
榻榻米是一體定製的,高度 35cm,中間帶升降桌,偶爾會約朋友一起打牌或者玩桌遊。
過道用了格柵吊頂,視覺上與榻榻米房的整體感更強。
過道比較狹長,所以裝了不少mini的小筒燈,想打造成星空頂的感覺,弱化縱深感,實地感受挺有氛圍的。
晾衣服要穿過廚房?
對調位置,動線更合理了。
裝修前的小廚房,門外是陽臺,放洗衣機和熱水器。側面也有窗,但採光不是特別好,空間也比較侷促。
於是把廚房整體往裡推,分割成兩個區域。採光比較好的部分作為中廚,外面部分把冰箱、洗衣機、烘乾機、電器高櫃和水吧檯整合在一起,這樣一來採光合理,動線也更流暢。
廚房內部冰箱、烤箱之類電器涉及到尺寸問題,在設計師深化圖紙前就需要定好品牌、型號。
沒有內陽臺,因此一早就確定要烘乾機。窗前的水吧檯本來是想做成早餐吧檯的,但考慮到在家用早餐的頻率不高,且門口就是餐桌,所以替換成水吧檯,放些小電器,增加儲物空間。
平時攢了不少牛皮紙袋子,不佔空間、防水,還有不同規格,剛好用來收納。
書房改衣帽間,
少間房,功能卻更合心。
主臥有兩面窗,前面主人把床頭這扇窗封掉,浪費了這麼好的採光條件。但如果不封掉的話,很沒有安全感,而且窗臺容易變成衛生死角,所以折中一下、只封了一半。
原本打算用百葉,但擔心遮光不夠,還是選擇了布簾。
考慮好需求,把書房改成衣帽間,和主臥打通。中間直接用櫃子來做隔斷,節省牆體佔地空間。不但擴充了儲物容量,還拓寬了過道。
衣帽間定製和主臥同款的暖灰色衣櫃,臨窗的位置原本想定製一體式梳妝檯,但我裝修前就收藏了這套梳妝檯,最後還是想滿足自己的喜好。雖然整體感稍欠缺,可確實很實用。
衛生間重新調整了佈局,裝了掛壁馬桶,掛壁馬桶後面用來隱藏水箱的半高牆延伸到臺盆側面,和臺盆中間稍微隔開。
