當您的生活、工作空間很小時,公寓的內部設計無疑是一個挑戰。 我們都知道一個家應該儘可能讓住戶感到舒適,但是當我們只有幾平方米的工作空間和家的基本功能需要分配時,找到一個有效的佈局並不容易。
這裡將展示15 種介於 20 ~50 平方米之間的小戶型,照片及平面圖的參考,以激發您自己的空間挑戰設計。
因為空間的侷限,以及使用的需求,主要只適合於單身人士或無小孩的夫妻人群。其最大化保留客廳及餐廳區,以適應工作及生活的雙重需要。
戶型1 (28平方米)
戶型2 (25平方米)
戶型3 (29平方米)
戶型4 (22平方米)
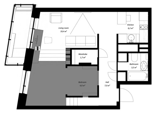
戶型5 (49 平方米)
戶型6 (27 平方米)
戶型7 (25 平方米)
戶型8 (47 平方米 )
戶型9 ( 45平方米)
戶型10 ( 35 平方米)
戶型11 (36平方米)
戶型12 (46平方米)
戶型13 (45平方米)
戶型14 (38 平方米)
戶型15 (36 平方米)






































































 
			 
			 
			 
			 
			 
			 
			 
			 
			 
			 
			 
			