地址丨Location:泰安·普照佳苑
面積丨Square Meters:138平
風格 | Project style:美式風格
主案設計丨Designer:馮建豪
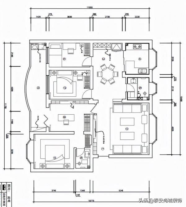
這是一套位於泰安普照嘉苑小區的舊房改造方案,原本的老舊空間在設計師的重新規劃下重獲新生,以美式風格為基底,搭配簡潔幹練的裝飾佈局,溫暖的飽和色調,營造舒適自由的居家氛圍,為業主重塑居家空間,打造和諧美好的美式生活環境。
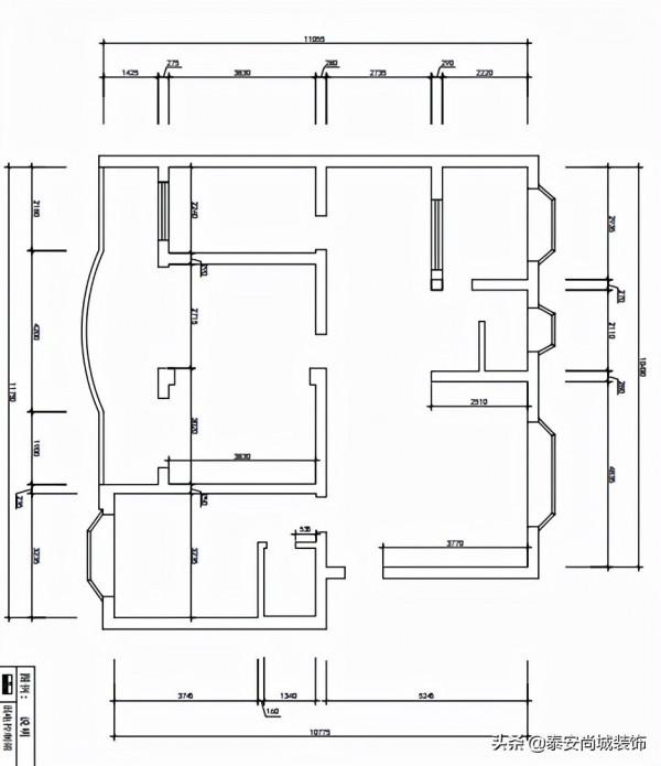
    原始結構與平面佈局圖
    客廳
高飽和度色調的運用使空間充滿了溫馨的居家感,搭配灰色軟裝,形成色彩的層次對比,凸顯空間的活躍氛圍。安置了簡約而實用的美式傢俱,對稱式設計讓空間更顯穩重與大氣,石膏線的使用讓牆面更具美式氛圍,獨特的設計佈局讓空間利用大大提升。整體空間層次分明,錯落有序,溫馨而浪漫。
    餐廳
連通的客餐廳提升了溫馨的居家氛圍,開放式設計讓空間佈局更加合理,充滿美式風格的石膏線點綴是客廳的延續,與牆面裝飾掛畫搭配,充滿了和諧感,圓形美式餐桌椅的使用讓用餐更具格調。
    臥室
素雅的臥室整體採用了米色作為主色調,搭配深色的抱枕等軟裝,更能營造靜謐而溫暖的效果,石膏線與壁燈的搭配也更加舒適而自然,精緻的飾品搭配讓生活品質感得到提升,溫馨的睡眠環境油然而生。
今天的裝修案例就分享到這了,歡迎大家說說自己的看法,瞭解更多裝修資訊,歡迎關注、諮詢尚城裝飾!(關注+私信,領取30套設計方案效果圖)













 
			 
			 
			 
			 
			 
			 
			 
			 
			 
			 
			 
			 
			 
			 
			 
			