今天齊家小菜分享的是一套100㎡的三居室裝修,取消傳統的客廳,入住後發現實在是太實用了!
經典案例
面積:100㎡
戶型:三居室
風格:現代簡約
亮點:堅持捨棄客廳,100㎡的家被極致利用,太有遠見了!
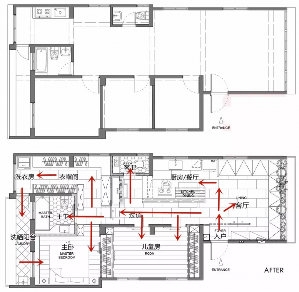
戶型圖
房屋使用面積有100㎡,三室兩廳一廚兩衛格局。業主一家四口居住,設計師透過巧妙的佈局,打造出非常宜居的環境。
客廳
白色半透明推拉屏風巧妙遮擋入戶視線,規劃玄關區域。鞋櫃取代電視櫃,解決入戶門廳收納的需求。
對於現代家庭而言,客人非常少,所以,客廳閒置的機率很高。基於這一點,業主不走尋常路,放棄常規客廳佈局。
卡座取代沙發,捨棄茶几,客廳功能多樣化。這裡可以當成孩子的遊樂園,也可以當成休閒書房,同時還具備待客的功能。
卡座設計完美利用邊角的區域,減少衛生死角,方便清潔打理。而且,有了抱枕和軟墊,卡座一樣可以當成沙發舒適入座。
粉綠色的背景牆自然清新,搭配木質卡座,再加上綠植點綴,整個起居室營造出超解壓的氛圍。
餐廳
餐廳的設計也是比較巧妙的,餐桌和櫥櫃一體式設計,整體感很強。同時,餐桌還可以當備餐檯,提高空間利用率。
餐廳空間不大,但可以滿足一家四口用餐需求。整體動線流暢,緊湊卻不壓抑。
廚房
廚房採用開放式設計,大吸力的油煙機安全又方便清潔。而且,開放式設計可以增進家人的互動,方便父母照看孩子。
櫥櫃下方朝向過道的區域,設定開放式書架,除了收納書籍,也能存放玩具、生活用品等,細節滿滿。
廚房旁邊過道空間也充分利用,靠牆擺放鋼琴,搭配護牆板設計,整個家充滿文藝氣息。
檯面轉角上空設計酒架,增添空間格局感。綠植點綴,極具生活氣息。
主臥
為了節約空間,主臥和主衛都採用隱形推拉門設計,整體效果很贊。
主臥不買床,直接在地臺上放鬆軟的乳膠床墊,睡起來特別舒適,簡單又實用。
考慮到家裡兩個孩子年齡尚小,平時經常和父母睡一起。所以地臺旁邊擺放備用床墊,一家四口睡也不擁擠。
主衛定製水磨石臺面,搭配大理石牆磚,呈現出輕奢又摩登的氣息。
衣帽間
衣帽間成L型,在靠近主臥門口的區域,除了設定過道兩側的衣櫃,還設計了一組轉角書桌。
衣帽間同時兼顧梳妝、臨時辦公的功能。牆面採用米色,和主臥牆面色調一致,在燈光照射下,倍顯溫馨。
再往裡走可以看到開放式衣架設計,這裡專門用於收納常穿的、準備洗的衣物。因為頂角就是一個洗衣房,設定了洗烘一體機。
衛生間
客衛面積很小,不足以打造一個淋浴房。只保留了洗手和如廁功能,乾淨衛生。
兒童房
兩個雞肋的小房間合併成大的兒童房,高低床設計,讓兩個孩子互相陪伴,溫馨滿滿。
大面積的活動區域可以讓兩個孩子自由玩耍,空間色彩活潑,童趣無限。
結語:本案的設計堅持不走尋常路,沒有常規的客廳,主臥甚至沒有床,但不得不說,這樣設計真的很實用。
齊家栗子提供更多裝修資訊,喜歡我的朋友記得收藏和關注哦!(素材來源網路,無法核實真實出處,如有侵權,請直接聯絡齊家栗子刪除。謝謝!)
