簡約輕奢
Maria Belousova新作,46㎡的公寓設計,運用不同的材質色彩,打造兩套簡約輕奢的設計方案。
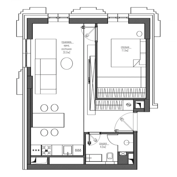
(方案一)
平面佈局
▽
兩個方案中,這套方案得到業主的認可。室內概念很有藝術感和個性,主要飾面採用深色木材和黃銅元素,營造出平靜的奢華氛圍。結合極簡主義風格,每個元素的運用剛剛好。
小面積空間客廳的佈置散發著時尚的氣息,懸空小電視櫃掛牆式的設計,不會佔用太多的空間,美觀大氣的格調也很不錯。
小面積空間客廳的佈置散發著時尚的氣息,懸空小電視櫃掛牆式的設計,不會佔用太多的空間,美觀大氣的格調也很不錯。
室內的設計根據業主的生活方式、習慣,石材元素和黃銅元素的搭配看起來很高檔,而深木色的基調背景平靜舒適,設計師以一種微妙的方式處理現代裝飾美學,沒有一絲炫耀。
進入私領域,內部是從功能和感覺層面考慮的,適應業主習慣和個人特徵的內飾,透過床頭櫃上方的開關控制窗簾。
軟包的床頭背景,以有質感的淺灰床品,以簡約為主,構築一個讓人放鬆的場域,溫暖閒適讓人沉醉其中……
衛生間的Rosso Levante大理石是重點,追求極簡主義並不意味著拒絕設計的舒適性。
(方案二)
這個方案雖然沒有得到客戶的認可,但材質色調同樣運用得很出色,淺色木材與石材相呼應,營造出和諧的一對,空間輕盈、自由、乾淨。
設計師
Maria Belousova
Maria Belousova擅長打造溫柔中性的空間美學,在最原始的設計目標上,賦予生活的意義。同時非常注重細節,注重視覺純淨感和自由感,設計以極簡優雅、自然清新為主,創造時尚、明亮、溫馨、細膩的空間。
其他佳作
ROUND WALL
66㎡的公寓設計,該專案的主要飾面材料:石膏、木材、大理石、珠飾和絲絨面料營造出一種舒適溫馨的溫馨氛圍。
平面佈局
▽
Maria Belousova把每個元素都搭配得非常好,簡潔而富有美感,空間的細部設計,更是令人讚歎不已,很好體現了現代低調奢華的極致品質。
