轉眼間又要週末了,大家的裝修計劃進行得怎麼樣啦?如果想選個中意的設計師可以掃描文章底部的二維碼新增客服哦~
房屋資訊
案例面積:96平米
案例戶型:兩室一廳
設計主題:居酒屋
本作的屋主是三口之家,之前屋主夫妻是深夜食堂的忠實粉絲,所以在新房到手後就對家的主題有了方向,擁有一個屬於自己的居酒屋。本案核心設計是居酒屋,但是日式的元素並不多,接下來讓我們欣賞一下戶型圖吧
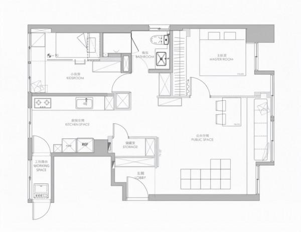
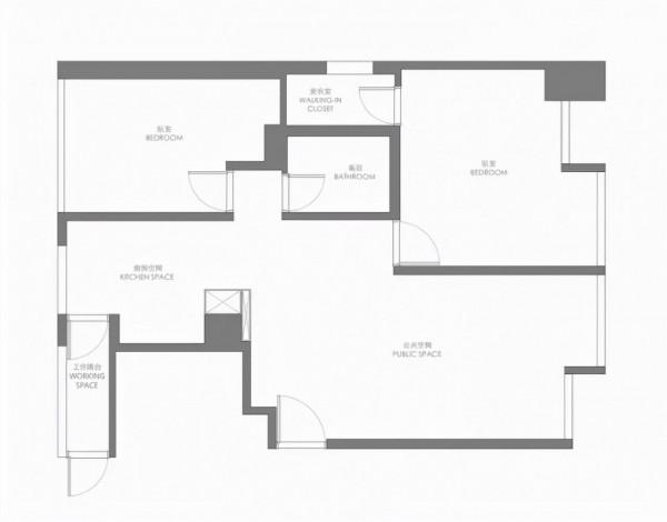
戶型圖
原始戶型
平面佈置方案
客廳
從玄關進入室內就是我們的客廳,居酒屋的核心是在繁忙的工作中給予人一個可以安靜發洩的空間。
原先低矮的梁下畸零地,選用赭色文化石和黑色格子窗拼貼出特色「臥榻區」,並結合書櫃與上掀式收納,成為平日裡用餐、閱讀、午睡的複合式平臺。
模組化沙發設計宛如俄羅斯方塊一般,平常是靠牆擺放的L 型,讓活動範圍最大化,或置中一字型排列,打造雙向使用情境,也可以合併成一張床。洞洞板讓客廳的收納與擺設變得特別靈活,可以隨著屋主心情進行改變
廚房
廚房的顏色搭配選擇了深灰+淺灰,且靠顏色就能感受到層次分明
一字型的廚房設計,拿→洗→切→煮動線一氣呵成
不同角度下觀察廚房會收穫不同的感覺
主臥
左面門內是兒童房,帶小門的是衛生間,而右面就是我們的主臥啦
室內整體對於居住的需求是夠用就好,也沒費心思做定製櫃直接做個軌道,內部做支架一個方便又快捷的衣櫃就完成了
臥室的配色選擇的是比較具有活力的藍色,雖然我們都在逐漸長大。但是心態還儲存著一絲童真。
兒童房
家裡的小公主還處於成長階段,所以對於兒童房我們也給予了一定的成長性
下方空間目前是屬於孩子的一個獨立玩耍空間,未來可以像主臥一樣做成一個收納間
衛生間
衛生間的門有專門給家裡的貓貓留有貓門,而貓砂則是在洗手檯下還親切地留了個臺下燈,讓我們起夜的時候不會被光晃得睜不開眼
淋浴區是一個獨立的小空間,再也不怕水濺的到處都是啦
需要裝修設計?私信即可預約設計師上門量房哦~
by:北都國際裝飾
